Bildegalleri

Velkommen til Maskinistveien 5!
Solgt
Rena - Trivelig enebolig på et plan med dels innredet kjeller, ca. 6,5 km fra Rena sentrum. 3 sov. Inntilbygget carport.
Prisantydning1 980 000 kr
Nøkkelinfo
- Boligtype
- Enebolig
- Eieform
- Eier (Selveier)
- Soverom
- 3
- Primærrom
- 124 m²
- Bruksareal
- 176 m²
- Etasje
- 1
- Byggeår
- 1971
- Energimerking
- F - Rød
- Rom
- 4
- Tomteareal
- 577 m² (eiet)
Fasiliteter
Balkong/Terrasse
Barnevennlig
Garasje/P-plass
Hage
Peis/Ildsted
Rolig
Bademulighet
Fiskemulighet
Turterreng
Om boligen
Velkommen til Rena og Maskinistveien 5!
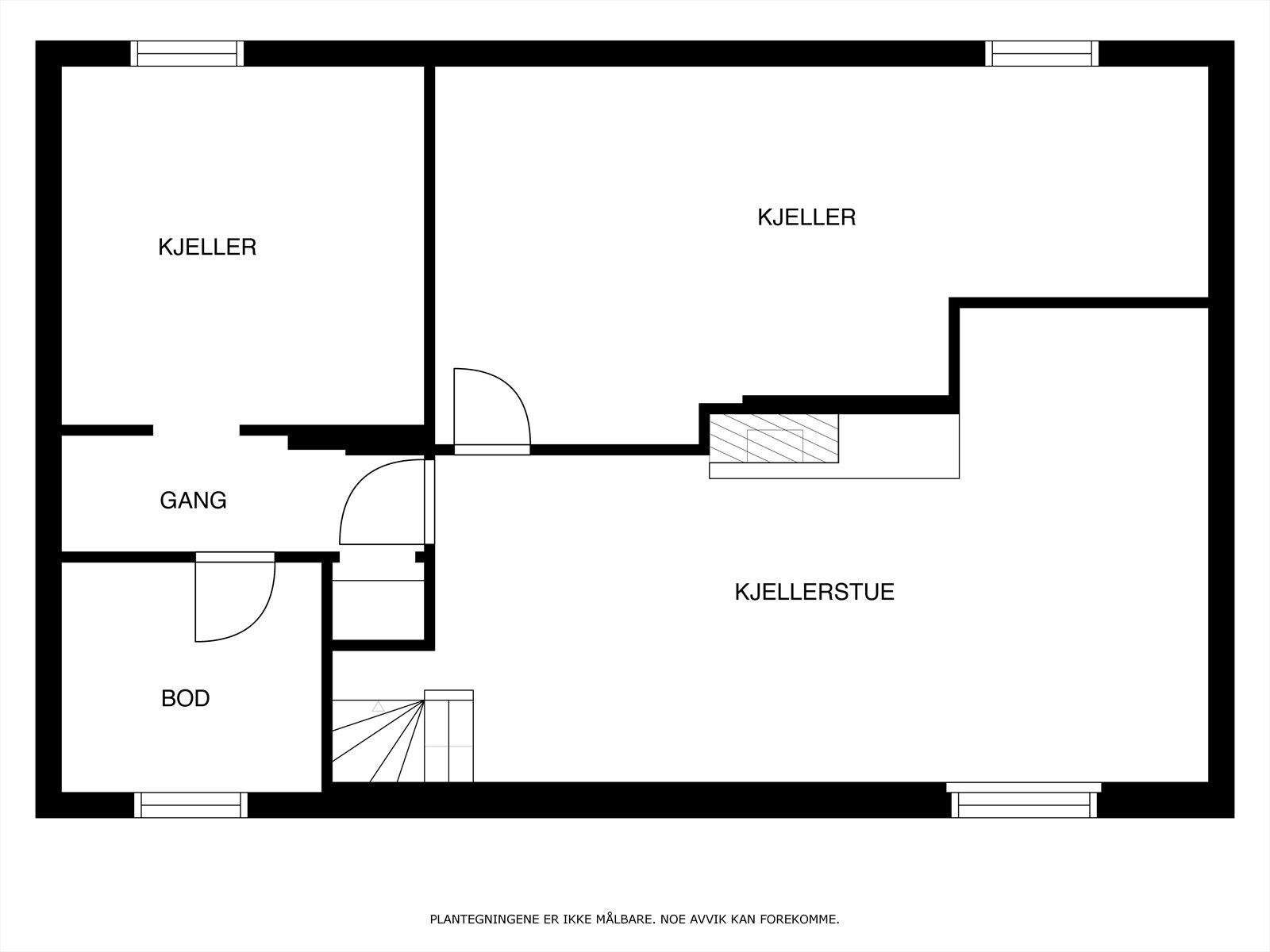
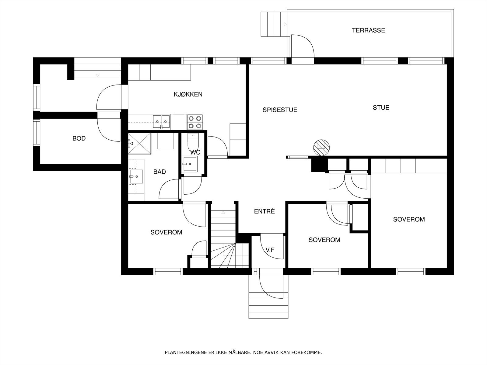
Her kan vi presentere en trivelig og familievennlig enebolig på et plan med dels innredet kjeller. Boligen har stue, kjøkken, tre soverom, bad og toalettrom i 1.etasje, samt kjellerstue og flere boder i kjelleren. Oppvarming med både vedfyring og varmepumpe. Romslig, overbygget og koselig terrasse. Inntilbygget carport. Kjøkkeninngang på baksiden av boligen i tillegg til inngangsparti på fremsiden.
Eiendommen ligger ca. 6,5 km nordøst for Rena sentrum, som har både skole, barnehage, dagligvare, togstasjon, kirke restaurant, pub og flere småforretninger.
Velkommen til visning!
Benytt egen knapp for visningspåmelding eller ta kontakt med eiendomsmegler MNEF Hans Petter Carlsson på tlf. 911 25 518.
Her kan vi presentere en trivelig og familievennlig enebolig på et plan med dels innredet kjeller. Boligen har stue, kjøkken, tre soverom, bad og toalettrom i 1.etasje, samt kjellerstue og flere boder i kjelleren. Oppvarming med både vedfyring og varmepumpe. Romslig, overbygget og koselig terrasse. Inntilbygget carport. Kjøkkeninngang på baksiden av boligen i tillegg til inngangsparti på fremsiden.
Eiendommen ligger ca. 6,5 km nordøst for Rena sentrum, som har både skole, barnehage, dagligvare, togstasjon, kirke restaurant, pub og flere småforretninger.
Velkommen til visning!
Benytt egen knapp for visningspåmelding eller ta kontakt med eiendomsmegler MNEF Hans Petter Carlsson på tlf. 911 25 518.
NB: Knappen for å vise hele beskrivelsen har kun en visuell effekt.
NB: Knappen for å vise hele beskrivelsen har kun en visuell effekt.
Salgsoppgaven beskriver vesentlig og lovpålagt informasjon om eiendommen
Se komplett salgsoppgaveNyttige lenker
Nærområdet
Meglerhuset Østlandet AS
Prisstatistikk
Maskinistveien 5
2 588 klikk
på annonsen
15 967 kr
prisantydning per kvadratmeter
Prisfordeling
Pris per m² ligger 4 967 kr over snittet for eneboliger i Åmot.
Grafen viser antall eneboliger solgt i Åmot siste året fordelt på pris per m² - totalt 59 eneboliger
Antall boliger
Kvadratmeterpris tilsvarer prisantydning pluss fellesgjeld per kvadratmeter (p-rom eller BRA-i). Prisene i grafen er avrundet til nærmeste 1000 kr.
Annonseinformasjon
| FINN-kode | 296755611 |
|---|---|
| Sist endret | 26. juni 2023 08:00 |
| Referanse | GAR14.2330 |
Annonsene kan være mangelfulle i forhold til lovpålagt opplysningsplikt. Før bindende avtale inngås oppfordres interessenter til å innhente komplett informasjon fra meglerforetaket, selger eller utleier.

























