Bildegalleri

Binder1.pdf_Side_07
Bakkedalen 1 BRL - HUS A
Asper Hage&by - for alle deler av livet. 61 vestvendte leiligheter sentralt på Kløfta.
Prosjektets status
Planlegging
-
Salgsstart
-
Byggestart
- Bygging igangsatt
Overtakelse
- 1. kvartal 2024
Nøkkelinfo
- Boligtype
- Leilighet
- Etasje
- 3
- Soverom
- 2
- Rom
- 3
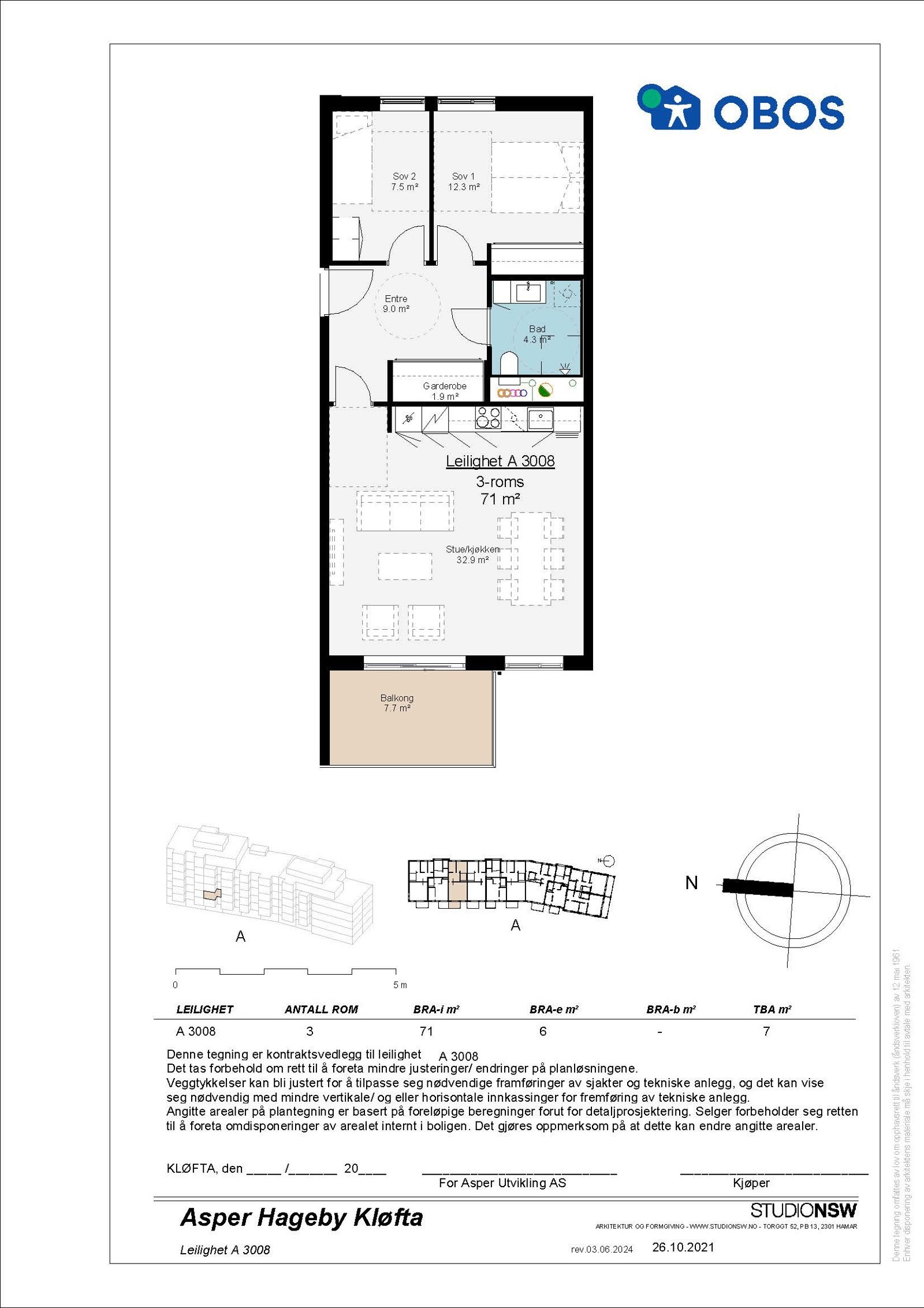
- Internt bruksareal
- 71 m² (BRA-i)
- Bruksareal
- 0 m²
Fasiliteter
Beskrivelse
Prisinformasjon
Ordinærpris
Totalpris: 4 588 268,-
Innskudd: 1 905 000,-
Fellesgjeld: 2 670 000,-
Omkostninger: 13 268,-
Fellesutgifter år 1-5: 15 369,-
Fellesutgifter etter år 6: 17 494,-
OBOS Deleie
Totalpris: 2 294 518,-
Innskudd: 952 500,-
Fellesgjeld: 1 335 000,-
Omkostninger: 7 018,-
Leie per måned: 7 750,-
Fellesutgifter år 1-5: 7 685,-
Fellesutgifter etter år 6: 8 747,-
OBOS Bostart
Totalpris: 3 673 268,-
Innskudd: 990 000,-
Fellesgjeld: 2 670 000,-
Omkostninger: 13 268,-
Fellesutgifter år 1-5: 15 369,-
Fellesutgifter etter år 6: 17 494,-
Adresse
Asper hageby - Kløfta, lnr 3008 - *OBOS Bostart 20% rabatt
2040
Kløfta
Trenger du en snarvei inn i boligmarkedet?
OBOS tilbyr OBOS Deleie, OBOS Bostart og OBOS Boligbytte i flere prosjekter. Med Deleie kan du kjøpe halve boligen, eller mer, og bo i hele. Med Bostart kan du kjøpe en helt ny bolig til en lavere pris enn markedspris - mot at OBOS får retten til å kjøpe den tilbake. Med Boligbytte kan du kjøpe ny bolig av oss, mot at OBOS kjøper din gamle til markedspris. Les mer om kjøpsalternativene på våre nettsider, eller kontakt prosjektselger for informasjon om dette konkrete prosjektet.
Om prosjektet
Opplev det beste fra to verdener. Familiehygge i grønne omgivelser - og spennende impulser fra byen. Gode pendlermuligheter til Oslo sentrum gir
deg mer kvalitetstid. Sentralt på Kløfta planlegges idylliske Asper Hageby - et nytt boligprosjekt med flotte og moderne leiligheter, omkranset av
grønne lunger i et rolig område. Samtidig har du Oslo bare et steinkast unna, med alle urbane opplevelser du kan tenke deg.
Asper Hageby legger til rette for en enklere og hyggeligere hverdag i rolige og grønne omgivelser. Her bor du trygt og godt, samtidig som du har lett tilgang til et urbant levesett.
Salgstrinn 1 vil omfatte hus A med til sammen 61 borettslagsleiligheter på 44 m2 til 120 m2.
Bygget vil være plassert sør-øst i Asper Hageby og bestå av fem til syv etasjer. De aller fleste leilighetene vil vende mot vest, alle leilighetene har balkong eller terrasse, og mange vil ha utsikt mot Romeriksåsen.
Om området
Kløfta ligger i Ullensaker kommune, og med sine trygge og barnevennlige bokvaliteter har stadig flere boligkjøpere fått øynene opp for dette spennende området. I Asper Hagebys umiddelbare nærhet finner du både skole og barnehage. Rett i nærheten finner du også flunkende nye Bakkedalen Idrettspark (under utbygging), med et rikt og allsidig aktivitetstilbud.
En biltur på knappe 15 minutter tar deg til det nordøstlige Nordmarka og Romeriksåsen - som er et populært utfartssted året rundt. Matbutikken er Asper Hagebys nærmeste nabo, og innen få minutters gangavstand finner du Romerikssenteret, med fasiliteter som kafé, shopping, helse og velvære. Området byr også på en rekke restauranter.
Pendler du til Oslo eller Oslo Lufthavn, vil en bolig i Asper Hageby gjøre hverdagen din enkel. Bussholdeplass bare 50 meter unna døren gjør det lett å komme seg rundt, og fra hagebyen er det bare 400-500 meter til jernbanestasjonen på Kløfta. Derfra kan du reise raskt og effektivt til både flyplassen og hovedstaden.
Slik blir boligene
Velg mellom attraktive 2-roms, 3-roms og 4-roms leiligheter i Asper Hageby. Felles for alle leilighetene er smarte planløsninger og høy kvalitet, med en urban følelse. Det vil bli parkeringsplasser for bil og sykkel, samt lademuligheter for el-bil. Garasjen vil ligge under bakken, noe som åpner for
grønne og barnevennlige fellesarealer.
Leilighetene har store vinduer som inviterer dagslyset inn, og du har utsyn til grøne pene fellesarealer. Vannbåren gulvvarme (i hovedsak) og et balansert ventilasjonsystem som gjør din nye leilighet lun og behagelig. I leilighetene er det smarte oppbevaringsløsninger, og i tillegg disponerer du en egen sportsbod i p-kjelleren.
Fellesarealer
Asper Hageby vil bestå av omtrent 280 flotte leiligheter fordelt på flere blokker. Nybyggene har parkeringskjeller pluss fem til syv etasjer, og bebyggelsen vil trappes ned fra øst (høyest) mot vest (lavest), planlagt ut fra hagebyideen - med vekt på gode utearealer, tilgjengelighet og siktlinjer.
Boligene fordeles på en stor tomt, grensende mot et allerede ferdigutviklet og etablert område, bestående av boligbebyggelse, skole/barnehager og noen næringsbygg. Hagebyen får to tun; søndre og nordre med lekeplasser og et felles parkdrag med torg, lekeplass, dam og offentlig gjennomgang.
Parkering
Parkering vil etableres i parkeringskjeller, beliggende under bygningsmassen og gårdsrommet. Det vil også bli anlagt parkeringsplass på terreng med et begrenset antall gjesteparkeringsplasser. Parkeringskjelleren vil ha innkjøring fra Børserudveien. Det er planlagt totalt ca. 225 parkeringsplasser, som fordeles blant et utvalg av de ca. 281 leilighetene som er planlagt i prosjektet. Det er således ikke alle leiligheter i prosjektet som leveres med parkeringsplass.
For leilighetene i salgstrinn 1 er det avsatt ca. 49 parkeringsplasser, og hvilke leiligheter som leveres med parkeringsplass fremgår av prislisten for salgstrinn 1, og vil bli nedfelt i kjøpekontrakten for den enkelte leilighet.
Kvalitet, standard og tilvalg
Kjøkkenet vil få Sigdal Vidde innredning eller tilsvarende, med hvite, glatte fronter. Integrerte hvitevarer (induksjon koketopp, stekeovn, oppvaskmaskin og kjøl/frys).
Badene får 30x30cm fliser på vegg og 30x60cm fliser på gulv. I dusjsonen er det 5x5cm fliser på gulv. Evt gjestebad leveres med samme standard. Badene har innredning med servant og skuffer, dusj med innfellbare dusjvegger og dusjgarnityr, opplegg for vaskemaskin og vegghengt wc. Enkelt bad leveres også med høyskap (se tegning). Badene er enten prefabrikerte (våtboks) eller plassbygd.
Soverommene leveres med 1 meter hvite garderobeskap pr. sengeplass.
Overflater generelt:
Himling:
Pusset og malt betonghimling med synlige v-fuger, eller nedforet himling. Platehimling på baderom der det er prefabrikerte bad og systemhimlig på bod/teknisk rom.
Gulv:
3-stavs lyspigmentert eikeparkett med tilpasset eikelist. Fliser på baderom.
Vegg:
Sparklet og malte betong eller gipsflater. Hvite utforinger og gerikter.
Balkonger:
Trykkimpregnerte tretremmer av 28x120mm (royalimpregnert eller liknende).
Belysning:
Downlights i gang/entrè med nedforet himling samt på baderom. Takpunkt på soverom og gjestebad/wc. I stue/kjøkken leveres det med belysning over kjøkkenbenk og takstikk med bryter for egen belysning.
Vannbåren varme og balansert ventilasjon sørger for et godt inneklima året rundt.
Det vil være muligheter til å gjøre enkelte individuelle tilpasninger av boligen innenfor gitte frister og mot tillegg i prisen. Hver enkelt kjøper får tilbud om et eget møte med selger for avklaring av tilvalg. Tilvalgsprosessen foregår i en tidsbegrenset periode etter vedtatt byggestart.
Se forøvrig leveransebeskrivelse og romskjema i salgsoppgaven.
Oppvarming
Vannbåren gulvvarme i alle oppholdsrom foruten på soverom tilknyttet fjernvarme. Mulighet for panelovner som tilvalg på soverom. Man betaler fjernvarme à konto hver måned som avregnes 1. gang pr. år etter eget forbruk.
Energimerking
Det er utstedt energiattest for den enkelte leilighet. Boligens varmetap og energibehov er dimensjonert iht. teknisk forskrift av 2017, TEK 17. Energimerkingen er beregnet til på ligge i kategori C. Det tas forbehold for at avvik kan forekomme spesielt i leiligheter med mye vindusflate.
Innflytting
Planlagt innflytting 2 halvår 2024.
Matrikkelinformasjon
Gnr. 29, bnr 995 og 1094 i 3033 - Ullensaker kommune.
Nyttige lenker
Nærområdet
OBOS eiendomsmeglere - Hamar
Annonseinformasjon
| FINN-kode | 296646461 |
|---|---|
| Sist endret | 22. des. 2025 12:53 |
| Referanse | 715210361 |
Annonsene kan være mangelfulle i forhold til lovpålagt opplysningsplikt. Før bindende avtale inngås oppfordres interessenter til å innhente komplett informasjon fra meglerforetaket, selger eller utleier.
