Bildegalleri

Rødsethagen
Tomt 4
Prosjektets status
Planlegging
Til salgs
Salgsstart
Prosjektet er salgsklart
Byggestart
Etter godkjent byggesak
Overtakelse
Ca. 12 mnd etter igangsetting
Nøkkelinfo
- Boligtype
- Enebolig
- Etasje
- 2
- Soverom
- 4
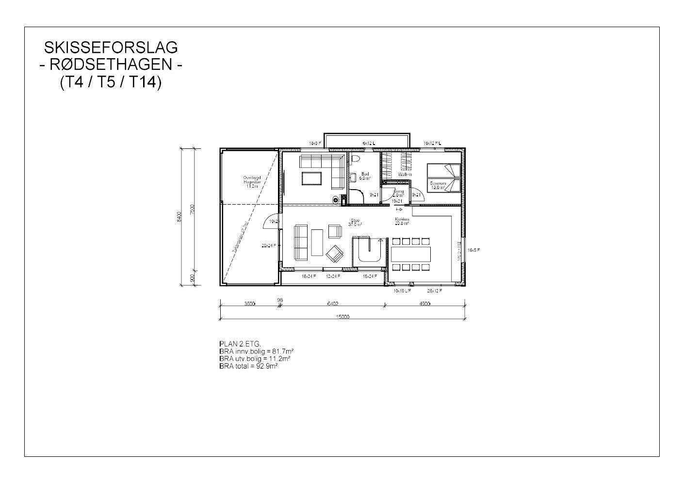
- Primærrom
- 162 m²
- Bruksareal
- 207 m²
Fasiliteter
Visning
Ta kontakt for å avtale visning.Beskrivelse
Lekker bustad i funkisstil med garasje, skjerma terrasse og privat hageareal. Bustaden er romsleg og går over to etasjar, og har eit bruksareal på totalt 207,3m² inkl. garasje/sportsbod og utvendig bruksareal. Delar av den store terrassen får ei overbygd hagestove. Her er fire soverom, eventuelt tre om ein vil nytte det eine til kjellarstove. På soverom i 2. etasje er det walk-in-garderobe.
Bustaden vert i utgangspunktet levert klar for eigeninnsats med sparkling, maling, tapetsering, flislegging og golvlegging, men kan om ønskeleg leverast heilt eller delvis klar til innflytting. Kjøparane vil sjølv kunne bestemme flis, parkett, innvendige fargar, utførelse på trapp samt kjøkken- og baderomsinnreiing.
Nærområdet

Systemhus - Møre Hus AS
Annonsene kan være mangelfulle i forhold til lovpålagt opplysningsplikt. Før bindende avtale inngås oppfordres interessenter til å innhente komplett informasjon fra meglerforetaket, selger eller utleier.










