Bildegalleri

Solgt
Sveingårdstølen
BUD MOTTATT - Halvpart av tomannshytte i attraktivt hyttetun - tett på langrenn og alpint
Prisantydning5 390 000 kr
- Omkostninger
- 136 150 kr
- Totalpris
- 5 526 150 kr
- Kommunale avg.
- 16 072 kr per år
- Felleskost/mnd.
- 500 kr
- Eiendomsskatt
- 3 114 kr per år
- Formuesverdi
- 1 140 000 kr
Nøkkelinfo
- Beliggenhet
- På fjellet
- Boligtype
- Hytte
- Eieform
- Eier (Selveier)
- Primærrom
- 89 m²
- Bruksareal
- 97 m²
- Renovert år
- 2020
- Tomteareal
- 14 782 m² (eiet)
- Byggeår
- 2017
- Soverom
- 3
- Rom
- 4
- Energimerking
- C - Rød
- Overtakelse
- Etter nærmere avtale med selger. Vær vennlig å angi ønsket overtagelsesdato i vedlagte budskjema.
Fasiliteter
Alpinanlegg
Barnevennlig
Bilvei frem
Rolig
Utsikt
Innlagt strøm
Offentlig vann/kloakk
Turterreng
Om boligen
Super beliggenhet rett ved langrennssporet, med gode solforhold og fin utsikt mot Geilo og Ustedalen. Pariserløypa fra Kikut kommer ned rett vest for tomten og fremtidig alpinløype er planlagt like bortenfor, noe som vil gjøre at denne hytten vil få ski inn/ski ut.
Det er gangavstand til Geilo sentrum og jernbanestasjon.
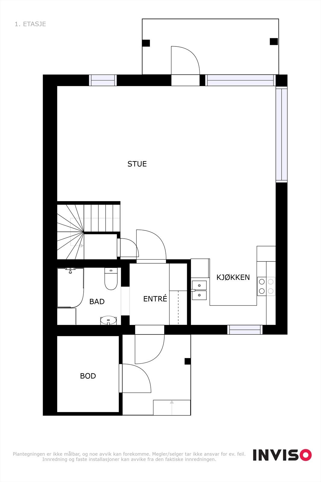
Hytten er velholdt med minimal slitasje og inneholder stue/spisestue, kjøkken fra Sigdal kjøkken, 3 soverom, 2 bad/wc og 2 boder hvorav en med adkomst utenfra. Bod i 2. etg er innredet som et 4. soverom - dette er ikke godkjent som soverom.
Det er gangavstand til Geilo sentrum og jernbanestasjon.
Hytten er velholdt med minimal slitasje og inneholder stue/spisestue, kjøkken fra Sigdal kjøkken, 3 soverom, 2 bad/wc og 2 boder hvorav en med adkomst utenfra. Bod i 2. etg er innredet som et 4. soverom - dette er ikke godkjent som soverom.
NB: Knappen for å vise hele beskrivelsen har kun en visuell effekt.
NB: Knappen for å vise hele beskrivelsen har kun en visuell effekt.
Salgsoppgaven beskriver vesentlig og lovpålagt informasjon om eiendommen
Se komplett salgsoppgaveNyttige lenker
Nærområdet
EIE Fjellmegleren Geilo
Annonseinformasjon
| FINN-kode | 295945351 |
|---|---|
| Sist endret | 08. aug. 2023 10:14 |
| Referanse | 1530230025 |
Annonsene kan være mangelfulle i forhold til lovpålagt opplysningsplikt. Før bindende avtale inngås oppfordres interessenter til å innhente komplett informasjon fra meglerforetaket, selger eller utleier.









































