Bildegalleri

Velkommen til Hesteskoen 6
Solgt
Vinstra
Stor enebolig med sentral og fin beliggenhet på Vinstra.
Prisantydning2 100 000 kr
Nøkkelinfo
- Boligtype
- Enebolig
- Eieform
- Eier (Selveier)
- Soverom
- 4
- Primærrom
- 188 m²
- Bruksareal
- 233 m²
- Etasje
- 2
- Byggeår
- 1976
- Energimerking
- G - Oransje
- Rom
- 3
- Tomteareal
- 1 006 m² (eiet)
Fasiliteter
Balkong/Terrasse
Barnevennlig
Garasje/P-plass
Hage
Offentlig vann/kloakk
Peis/Ildsted
Sentralt
Utsikt
Turterreng
Om boligen
Velkommen til Hesteskoen 6.
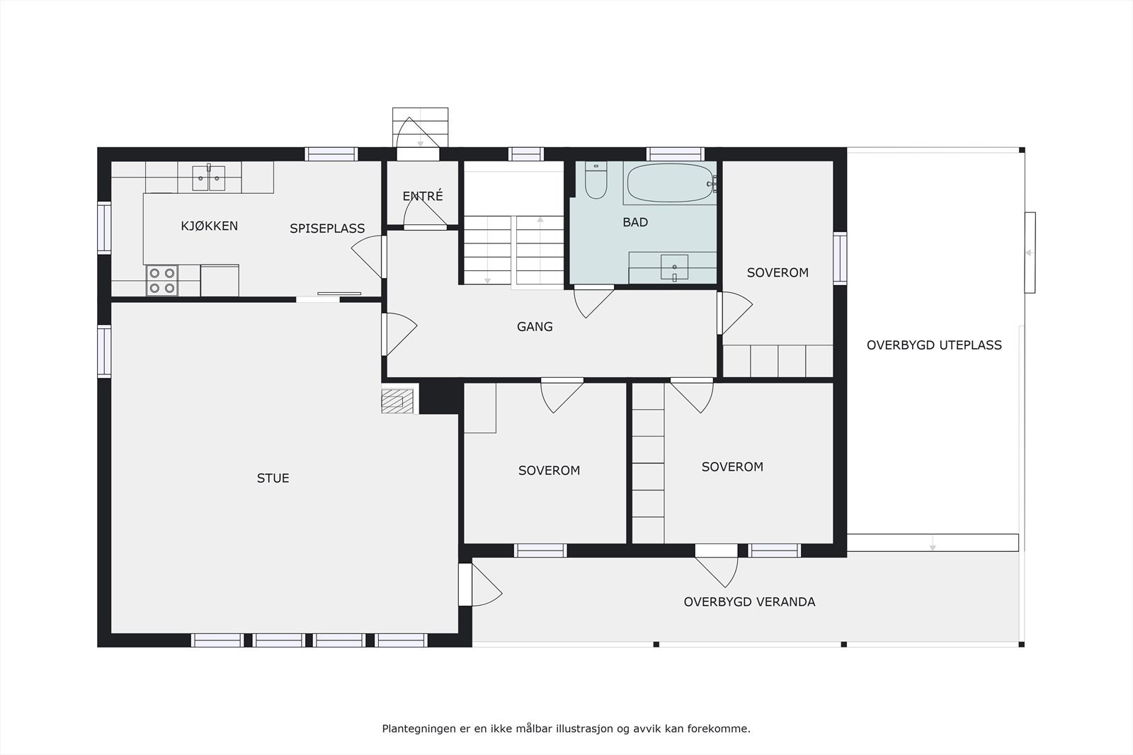
Enebolig fra 1976 med standard og kvalitet fra byggeår. Boligen har god planløsning og god størrelse på rommene : 1. etg.: Kjøkken , Stue , Bad , 3 Soverom , Gang m/trapp, Vindfang. Underetasje: Vindfang , Hall m/trapp , Soverom , Vaskerom , Bad , Kjellerstue Teknisk rom , Bod , Garasjerom. Det er overbygget veranda og terrasse. Boligen er i god stand men man må påregne oppgradering i forhold til dagens standard. Eiendommen har meget sentral beliggenhet og ligger flott til i nedre del av Øvre Vinstra, med gangavstand til alle sentrumsfasiliteter, skoler, barnehager og idrettsanlegg. Flott utsikt og god solgang. Meget fine turmuligheter i umiddelbar nærhet.
Vi sees på visning!
Enebolig fra 1976 med standard og kvalitet fra byggeår. Boligen har god planløsning og god størrelse på rommene : 1. etg.: Kjøkken , Stue , Bad , 3 Soverom , Gang m/trapp, Vindfang. Underetasje: Vindfang , Hall m/trapp , Soverom , Vaskerom , Bad , Kjellerstue Teknisk rom , Bod , Garasjerom. Det er overbygget veranda og terrasse. Boligen er i god stand men man må påregne oppgradering i forhold til dagens standard. Eiendommen har meget sentral beliggenhet og ligger flott til i nedre del av Øvre Vinstra, med gangavstand til alle sentrumsfasiliteter, skoler, barnehager og idrettsanlegg. Flott utsikt og god solgang. Meget fine turmuligheter i umiddelbar nærhet.
Vi sees på visning!
NB: Knappen for å vise hele beskrivelsen har kun en visuell effekt.
NB: Knappen for å vise hele beskrivelsen har kun en visuell effekt.
Salgsoppgaven beskriver vesentlig og lovpålagt informasjon om eiendommen
Se komplett salgsoppgaveNyttige lenker
Nærområdet
EiendomsMegler 1 Lillehammer og Gudbrandsdal - avd Gudbrandsdal
Annonseinformasjon
| FINN-kode | 295685013 |
|---|---|
| Sist endret | 01. des. 2023 08:00 |
| Referanse | 1311230016 |
Annonsene kan være mangelfulle i forhold til lovpålagt opplysningsplikt. Før bindende avtale inngås oppfordres interessenter til å innhente komplett informasjon fra meglerforetaket, selger eller utleier.










































