Bildegalleri

Inaktiv
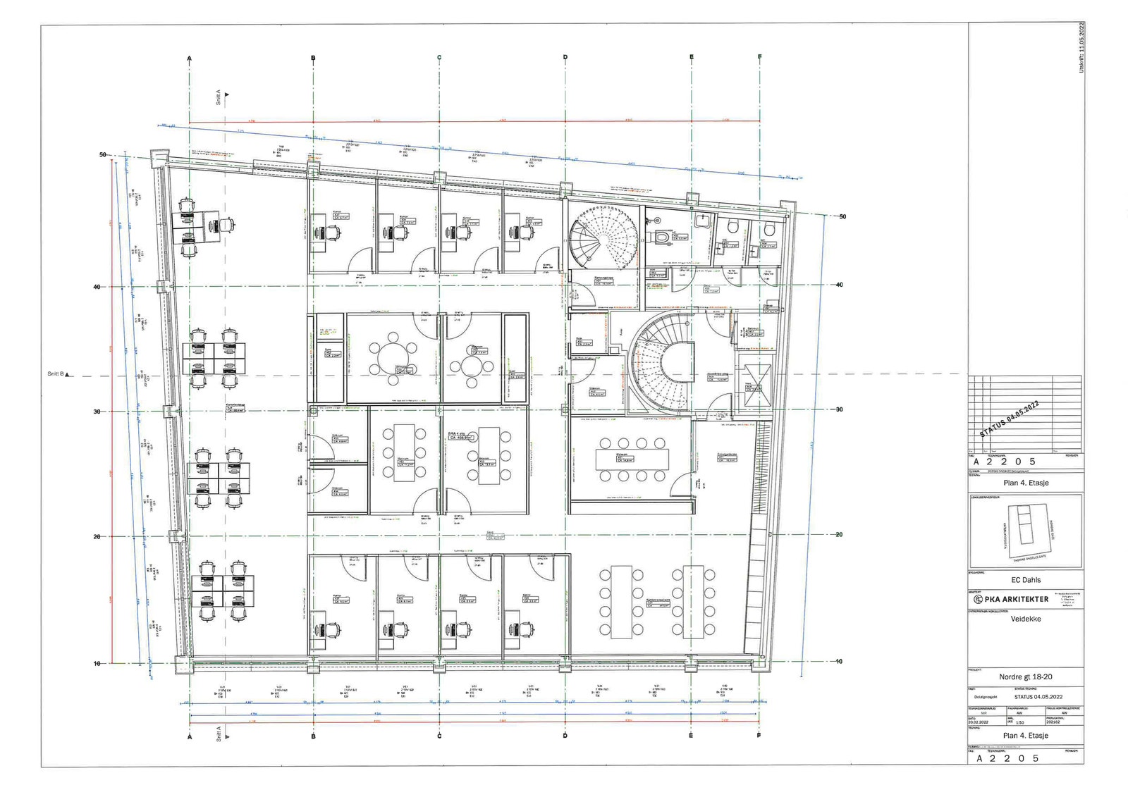
Totalrehabilitert kontorlokaler midt i Nordre gate. Breeam Sertifisert.
Nøkkelinfo
- Areal
- 430 - 890 m²
- Etasje
- 3.
- Renovert år
- 2023
- Overtakelse
- 01.08.2023
Type lokale
Kontor
Om eiendommen
Totalrehabilitert kontordel i Nordre gate 18/20.
Bygget er totalrehabilitert fra 3.etg og oppover og framstår som et nytt kontorbygg som møter dagens tekniske krav.
Store vinduer gir lyse og effektive kontorlandsskap. Leveres med god kontrostandard, kan også tilpasses etter leietakers ønske.
Bygget er sertifisert med Breeam very good.
Byggets 3. og 4.etg er ledig, og kan enten leies hver for seg eller som en større enhet.
Bygget er totalrehabilitert fra 3.etg og oppover og framstår som et nytt kontorbygg som møter dagens tekniske krav.
Store vinduer gir lyse og effektive kontorlandsskap. Leveres med god kontrostandard, kan også tilpasses etter leietakers ønske.
Bygget er sertifisert med Breeam very good.
Byggets 3. og 4.etg er ledig, og kan enten leies hver for seg eller som en større enhet.
Beliggenhet
Bygget ligger midt i Trondhjems handlegate, på hjørnet av Thomas Angells gate og Nordre gate, med nærhet til kollektivtilbud og parkering, samt med veldig god synlighet.
Herfra når man alle byens tilbud på kun få minutter.
Herfra når man alle byens tilbud på kun få minutter.
NB: Knappen for å vise hele beskrivelsen har kun en visuell effekt.
NB: Knappen for å vise hele beskrivelsen har kun en visuell effekt.
Visning
Ta kontakt for å avtale visning.E C Dahls Eiendom AS
Nærområdet
Annonsene kan være mangelfulle i forhold til lovpålagt opplysningsplikt. Før bindende avtale inngås oppfordres interessenter til å innhente komplett informasjon fra meglerforetaket, selger eller utleier.


