Bildegalleri

Velkommen til Venabygdsvegen 238!
Inaktiv
Ringebu
Enebolig med stor tomt og fin beliggenhet i landlige omgivelser på Kjønås.
Prisantydning1 790 000 kr
Nøkkelinfo
- Boligtype
- Enebolig
- Eieform
- Eier (Selveier)
- Soverom
- 2
- Primærrom
- 120 m²
- Bruksareal
- 228 m²
- Etasje
- 1
- Byggeår
- 1965
- Energimerking
- G - Oransje
- Tomteareal
- 2 401 m² (eiet)
Fasiliteter
Barnevennlig
Garasje/P-plass
Hage
Peis/Ildsted
Utsikt
Turterreng
Visning
Vi legger til rette for gode visninger med tid til alle. Kontakt megler på telefon for å avtale tidspunkt eller via visningspåmeldings-linken. Det vil ikke bli avholdt visning uten påmelding. Siste frist for påmelding er mandag 10.07 kl. 12.00.
VisningspåmeldingOm boligen
Enebolig med landlig og fin beliggenhet på Kjønås rett nord for Ringebu sentrum. Området består av spredt bebyggelse med både boliger og landbruk. Fra eiendommen er det flott utsikt og gode solforhold. Barne- og ungdomsskole, butikker og andre servicetilbud ligger i Ringebu sentrum, ca 6 minutters kjøretur unna. Ringebu sentrum kan by på koselig gågate med flere butikker og serveringssteder. I tillegg ligger kommuneadministrasjonen i Ringebu. Det er kort vei opp til Venabygdsfjellet med flotte skiløyper og turmuligheter.
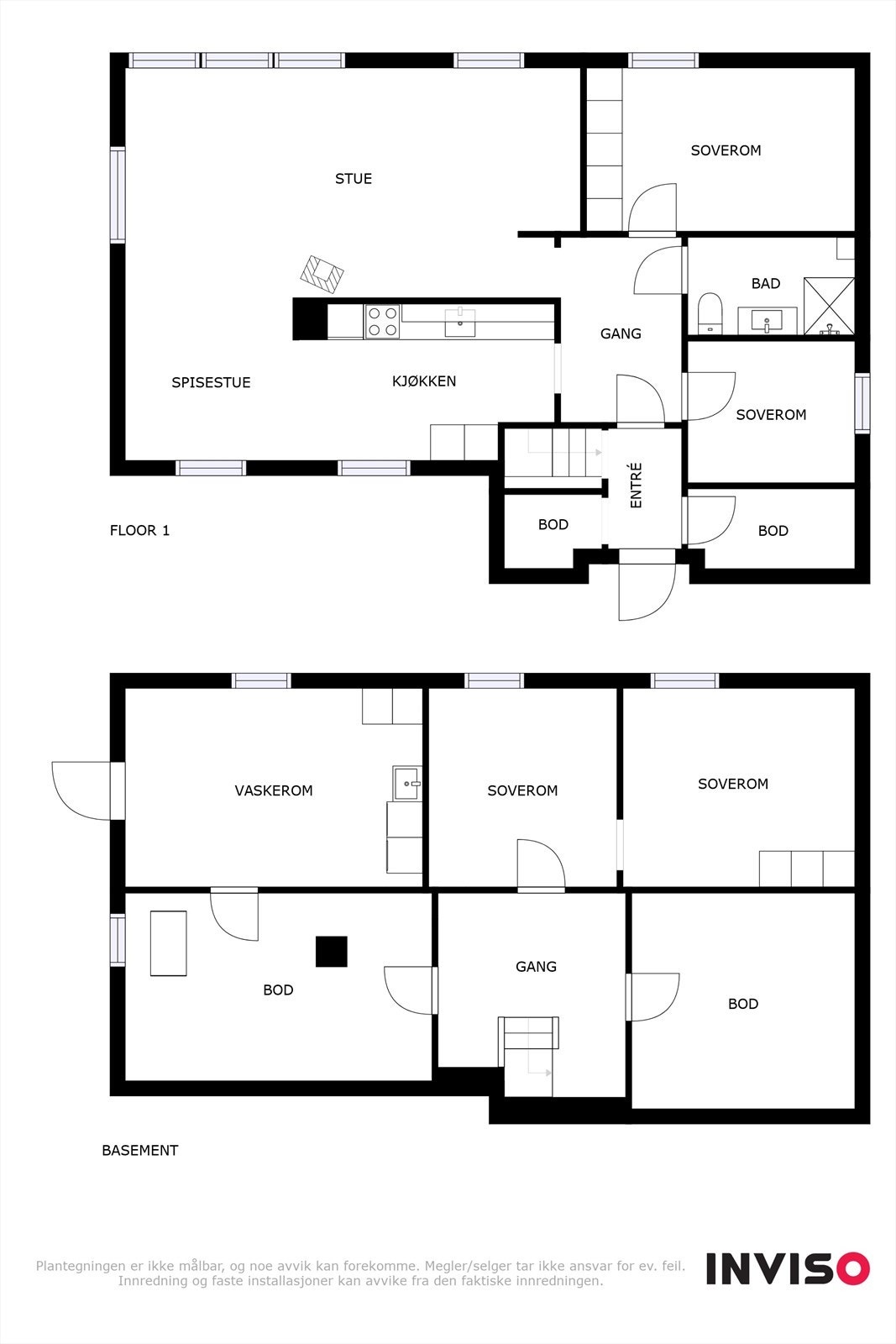
Boligen inneholder følgende:
1.etg.: Vindfang, gang, 2 soverom, bad, stue, kjøkken og bod.
Kjeller: Vaskerom, hobbyrom, bod og to rom som har vært benyttet som soverom.
Uthus med to enkle garasjer, bodplass og vedskjul.
Velkommen til visning!
Boligen inneholder følgende:
1.etg.: Vindfang, gang, 2 soverom, bad, stue, kjøkken og bod.
Kjeller: Vaskerom, hobbyrom, bod og to rom som har vært benyttet som soverom.
Uthus med to enkle garasjer, bodplass og vedskjul.
Velkommen til visning!
NB: Knappen for å vise hele beskrivelsen har kun en visuell effekt.
NB: Knappen for å vise hele beskrivelsen har kun en visuell effekt.
Salgsoppgaven beskriver vesentlig og lovpålagt informasjon om eiendommen
Se komplett salgsoppgaveNyttige lenker
Nærområdet
EiendomsMegler 1 Lillehammer og Gudbrandsdal - avd Ringebu
Vi er der du er - EiendomsMegler 1
Annonseinformasjon
| FINN-kode | 293971830 |
|---|---|
| Sist endret | 03. juli 2023 12:38 |
| Referanse | 1313230005 |
Annonsene kan være mangelfulle i forhold til lovpålagt opplysningsplikt. Før bindende avtale inngås oppfordres interessenter til å innhente komplett informasjon fra meglerforetaket, selger eller utleier.





























