Bildegalleri

Moderne og fleksibelt kontor - Sentralt på Skøyen
Nøkkelinfo
- Areal
- 500 m²
- Byggeår
- 1996
Type lokale
Fasiliteter
Om eiendommen
Vi har gleden av å presentere et flott kontorareal i eiendommen Drammensveien 123 på Skøyen i Oslo. Lokalet fremstår med gjennomgående gode kvaliteter og fleksibilitet.
Eiendommen er en velholdt kontoreiendom beliggende meget sentral på Thune, et veletablert kontorkluster på Skøyen hvor mange av Norges største selskaper har sine hovedkontorer. Kontorbygget er på 6 etasjer med trivelig kantine i atriumdelen. Flotte felles utearealer.
Lokalene vil kunne tilpasses etter behov.
Parkering
Mulighet for leie av parkeringsplasser i eiendommens parkerings-kjeller om ønskelig også med egen el-bil lader.
Gateparkering i umiddelbar nærhet, samt i bakenforliggende villaområde.
Beliggenhet
Her er det kort vei til alle fasitliteter.
Skøyen har blitt et svært attraktivt næringsområde med et rikholdig tilbud til alle som bor og jobber her. Området er under stadig utvikling med tilvekst av store og små virksomheter.
Adkomst
Svært enkel adkomst med bil eller offentlig transport. Kommunikasjonsnettet er godt utbygget i området. Rett utenfor eiendommen finner man stoppestedet Thune hvor trikk 13 og bussene 20 og 31 har stoppested. Kort vei fra eiendommen ligger Skøyen stasjon, som er stoppested for en rekke busser, tog, lokaltog, regionaltog, samt flytoget som tar deg til Oslo lufthavn på ca. 30 minutter.
Enkel tilgang med bil fra både E18 og Ring 2. Parkeringsmuligheter i byggets parkeringskjeller.
Standard
oppvarming via fjernvarme og elektrisk.
Innhold
Ledig lokale i Drammensveien 123:
- 3 etg. 500 kvm
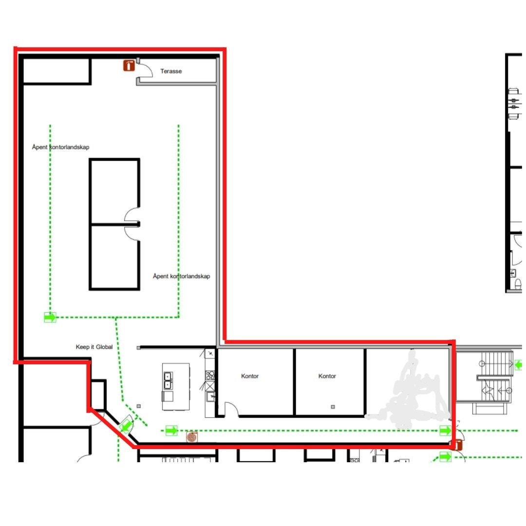
Lokalet ligger i 3. etg. og har med sin utforming en god fleksibilitet i forhold til mulig inndeling.
Lokalene kan tilpasses nye leietakers ønsker og behov. Se vedlagte plantegniner i PDF for nærmere illustrasjon av de ledige arealene.
Mulighet for leie av arkivlager i kjeller.
Matrikkelinformasjon
Visning
Realnor
Nærområdet
Annonseinformasjon
| FINN-kode | 293838730 |
|---|---|
| Sist endret | 10. aug. 2023 13:25 |
| Referanse | Drammensveien 123 |
Annonsene kan være mangelfulle i forhold til lovpålagt opplysningsplikt. Før bindende avtale inngås oppfordres interessenter til å innhente komplett informasjon fra meglerforetaket, selger eller utleier.

















