Bildegalleri

- Velkommen til Skjelderups gate 16 B - presentert av Eiendomsmegler MNEF / Fagsjef / Partner Bjørnar Mikkelsen (tlf 938 98 132) hos Schala & Partners -
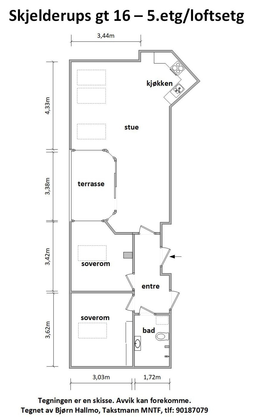
Særdeles lys og luftig 3-R loftsleil. | Solrik, sydvestvendt takterrasse | Hems | 100 m² gulvareal | Oppussingsobjekt
Nøkkelinfo
- Boligtype
- Leilighet
- Eieform
- Andel
- Soverom
- 2
- Primærrom
- 56 m²
- Bruksareal
- 56 m²
- Etasje
- 5
- Byggeår
- 1897
- Rom
- 3
- Tomteareal
- 702 m² (eiet)
- Grunnflate
- 100 m²
Fasiliteter
Om boligen
Velkommen til Skjelderups gate 16 B og denne 3-roms topp-/ loftsleiligheten med moderniseringsbehov og sentral, rolig beliggenhet med gangavstand til alt Grünerløkka og Oslo sentrum har å tilby.
- Særdeles lys og luftig 3-roms med svært god takhøyde (3,8 meter) og store vindusflater som gir gode lysforhold, hyggelig utsikt og en åpen, luftig atmosfære
- 6,5 m² privat, sørvestvendt takterrasse med sol fra morgen til kveld
- Stor og romslig hems på hele 32 m² gulvareal
- Totalt gulvareal i leiligheten er 100 m²
- Kun en eier siden leiligheten ble bygget i 1991
- Nye takvinduer 2022
- Pipeløp
- Eldre kjøkken og bad
- Brl gir tilskudd på kr 35.696,- ved oppussing av bad
- Varmtvann og fibernett inkl
- Felles takterrasse, platting og selskapslokale
- Dyrehold er tillatt
- Lave omkostninger
- SJELDEN SJANSE!
Salgsoppgaven beskriver vesentlig og lovpålagt informasjon om eiendommen
Se komplett salgsoppgaveNyttige lenker
Nærområdet
Schala & Partners Grünerløkka
Prisstatistikk
Skjelderups gate 16 B
på annonsen
prisantydning per kvadratmeter
Prisfordeling
Pris per m² ligger 25 236 kr under snittet for leiligheter i Grünerløkka - Sofienberg.
Grafen viser antall leiligheter solgt i Grünerløkka - Sofienberg siste året fordelt på pris per m² - totalt 2 423 leiligheter
Antall boliger
Kvadratmeterpris tilsvarer prisantydning pluss fellesgjeld per kvadratmeter (p-rom eller BRA-i). Prisene i grafen er avrundet til nærmeste 1000 kr.
Annonseinformasjon
| FINN-kode | 291072246 |
|---|---|
| Sist endret | 28. nov. 2023 10:33 |
| Referanse | 16230002 |
Annonsene kan være mangelfulle i forhold til lovpålagt opplysningsplikt. Før bindende avtale inngås oppfordres interessenter til å innhente komplett informasjon fra meglerforetaket, selger eller utleier.















































