Bildegalleri

Bolig 7 - Illustrasjonen kan avvike fra faktisk leveranse
HAMAR/VILLA TELJES HAVE
Villa Teljes Have - Bolig 7
Prosjektets status
Planlegging
-
Salgsstart
-
Byggestart
-
Overtakelse
-
Nøkkelinfo
- Boligtype
- Enebolig
- Soverom
- 3
- Primærrom
- 223 m²
- Bruksareal
- 246 m²
Beskrivelse
Nøkkelinformasjon
EIE har gleden av å presentere Villa Teljes have - et helt unikt prosjekt med sju ulike eneboliger i et av Hamars mest attraktive områder. Fire av boligene er solgt, og kun tre fantastiske eneboliger står igjen! Dette er en sjelden mulighet til å sikre seg en særegen enebolig i flotte omgivelser i nærhet til Hamar sentrum og herlige rekreasjonsmuligheter langs Mjøsa.
Tomtene vil ligge rundt Villa Telje, en villa i dragestil som skal bevares. Boligene får et moderne preg med arkitektur som står i stil med villaen og området rundt. Ved å variere utformingen av boligene, samtidig som at materialvalg og fargepalett er inspirert av Villa Telje, vil man kunne bo i et unikt boligprosjekt med eksklusive eneboliger. Boligene er tegnet av WIR Arkitektene.
Tomtene ligger på et høydedrag og terrenget er godt utnyttet slik at alle tomtene vil få fantastiske sol- og utsiktsforhold. Her bor du i nærhet til historiske Domkirkeodden og Mjøsa med flotte tur- og rekreasjonsområder, samt fine bademuligheter på sommerhalvåret. Hamar sentrum og alle servicefasiliteter er også kun en liten spasertur fra eiendommene.
Dette prosjektet passer godt for deg som ønsker en lettstelt hverdag i et sentralt, men rolig område.
Hovedoppdragsnummer
72-22-9017
Eiendom
Olav Myntmesters gate 25-39, 2315 Hamar
Matrikkel
Gnr. 1 Bnr. 7679, 7680, 7681, 7682, 7683, 7684, 7685 og 7686 i Hamar kommune.
Eiendommene er ferdig fradelt. Se vedlagt situasjonskart.
Gnr. 1 Bnr. 7686 vil bli felles adkomstvei til eiendommene og er organisert som et realsameie. Hver bolig blir eier med ideell andel av realsameie, tinglyst mot den respektives gårds- og bruksnummer. Kjøperne blir gjennom sin eierandel ansvarlig for felles drift og vedlikehold.
Boligtype
Eneboliger.
Eierform
Selveier
Ferdigstillelse
I etterkant av salg av hver enkelt enhet/bolig må byggesøknad sendes til kommunen. Når kommunen har gitt igangsettelsestillatelse og utbygger har frafalt sine forbehold kan byggearbeider begynne. Ved igangsetting av tømrerarbeid (etter grunn- og betongarbeider er ferdig støpt) vil byggetiden være ca. 8 måneder.
Ansvarlig megler
Daglig leder / Eiendomsmegler MNEF / Partner Inger Helene Simensen
Selger/Utbygger
Credo Boligutvikling AS
Hjemmelshaver
Credo Boligutvikling AS
Arealer
Totalt BRA 0 kvm består av:
- BRA-i (internt bruksareal):
- BRA-b (innglasset balkong):
- BRA-e (eksternt bruksareal):
I tillegg kommer TBA (terrasse-/balkongareal):
Vedlagte plantegninger er ikke målbare. Eventuelle betegnelser på rom er angitt ut fra faktisk bruk, uavhengig av hva som er godkjent hos bygningsmyndighetene.
Det gjøres oppmerksom på at boenhetens totale BRA er større enn summen av arealene fra hvert enkelt rom. Dette skyldes at boenhetens totale BRA også inneholder/medtar arealer for innvendige vegger. Se prislisten for detaljert oversikt over de enkelte boligene.
Priser fra - til
Priser fra kr. 14 200 000,- til kr. 18 500 000,-.
Arealer
Primærrom: 184,30 kvm - 231,30 kvm
Bruksareal: 207,40 kvm - 259 kvm
Kommunale avgifter
Kommunale avgifter for eiendommene er ikke satt. Hamar kommune fakturerer per i dag kommunale avgifter fire ganger pr. år. Beløp som vil inngå i kommunale avgifter er eiendomsskatt, renovasjon, feie- og tilsynsgebyr, samt vann og kloakk.
Eiendomsskattesatsen i Hamar er 4 promille for bolig- og fritidseiendom. Renovasjonsavgiften vil avhenge av hvilke type beholdere boligen har (for eksempel: middels beholder på 140 l kr. 3 784,- pr. år). Feie- og tilsynsgebyr vil utgjøre kr. 775,- årlig, og kr. 405,- for tilsyn. Vann og avløp vil betales etter forbruk med ca. kr. 42,2,- pr. m3 for vann og ca. kr. 48,82,- pr. m3 for kloakk. I tillegg påløper abonnementsgebyr på vann kr. 659,- og på avløp kr. 741,-.
Beløpene er hentet fra prislisten til Hamar kommune 02.01.2023.
Energimerke
Energimerking av boligen skal utføres av selger og vil foreligge ved overtagelse.
Innhold
Areal og fordeling bolig 2:
Totalt: 207,4 m² BRA / 184,3 m² P-rom
1. etasje: 87,5 m² BRA / 87,5 m² P-rom
2. etasje: 87 m² BRA / 87 m² P-rom
3. etasje/takterrasse: 9,8 m² P-rom
Garasje og sportsbod: 23,1 m² BRA
Følgende rom er inkludert i P-rom:
1. etasje: Ganger, fire soverom, to bad, omkledningsrom og vaskerom/teknisk rom.
2. etasje: Stue, kjøkken, gang og WC.
3. etasje: Takstue.
Følgende rom er inkludert i S-rom:
1. etasje: Garasje og sportsbod.
Areal og fordeling bolig 3:
Totalt: 208,9 m² BRA / 186,2 m² P-rom
1. etasje: 88,1 m² BRA / 88,1 m² P-rom
2. etasje: 88,3 m² BRA / 88,3 m² P-rom
3. etasje/takterrasse: 9,8 m² BRA / 9,8 m² P-rom
Garasje og sportsbod: 22,7 m² BRA
Følgende rom er inkludert i P-rom:
1. etasje: Ganger, fire soverom, to bad, omkledningsrom og vaskerom/teknisk rom.
2. etasje: Stue, kjøkken, gang og WC.
3. etasje: Takstue.
Følgende rom er inkludert i S-rom:
1. etasje: Garasje og sportsbod.
Areal og fordeling bolig 4:
Totalt: 252 m² BRA / 229,3 m² P-rom
1. etasje: 115 m² BRA / 115 m² P-rom
2. etasje: 114,3 m² BRA / 114,3 m² P-rom
Garasje og sportsbod: 22,7 m² BRA
Følgende rom er inkludert i P-rom:
1. etasje: Ganger, stue, fire soverom, omkledningsrom, to bad og vaskerom/teknisk rom.
2. etasje: Kjøkken, stue og WC.
Følgende rom er inkludert i S-rom:
1. etasje: Garasje og sportsbod.
Areal og fordeling bolig 5:
Totalt: 251,3 m² BRA / 223,9 m² P-rom
Underetasje: 124,6 m² BRA / 115,2 m² P-rom
1. etasje: 98,5 m² BRA / 98,5 m² P-rom
2. etasje/takterrasse: 10,2 m² BRA / 10,2 m² P-rom
Garasje: 18 m² BRA
Følgende rom er inkludert i P-rom:
Underetasje: Gang, to bad, stue, tre soverom, garderobe, vaskerom og omkledningsrom.
1. etasje: Stue, kjøkken og WC.
2. etasje: Takstue.
Følgende rom er inkludert i S-rom:
Underetasje: Bod og teknisk rom.
1. etasje: Garasje.
Areal og fordeling bolig 6:
Totalt: 242,3 m² BRA / 201,8 m² P-rom
1. etasje: 78,3 m² BRA / 73,3 m² P-rom
2. etasje: 118,3 m² BRA / 118,3 m² P-rom
Garasje: 35,5 m² BRA
Følgende rom er inkludert i P-rom:
1. etasje: Ganger, stue, to soverom, bad, sluse og vaskerom.
2. etasje: To soverom, ganger, bad, WC, stue og kjøkken.
Følgende rom er inkludert i S-rom:
1. etasje: Garasje og bod.
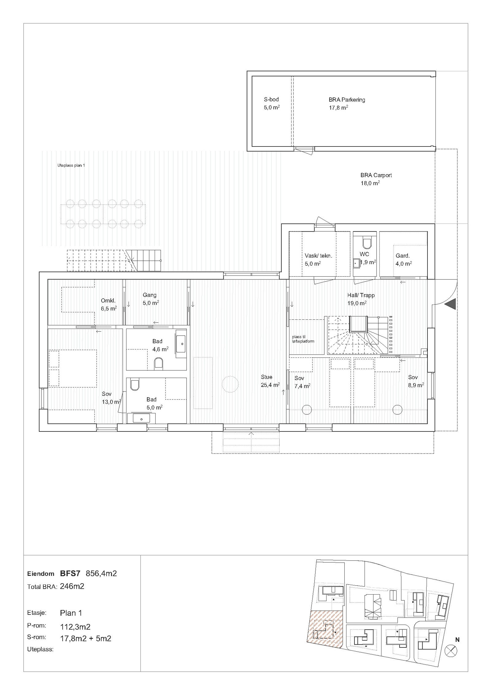
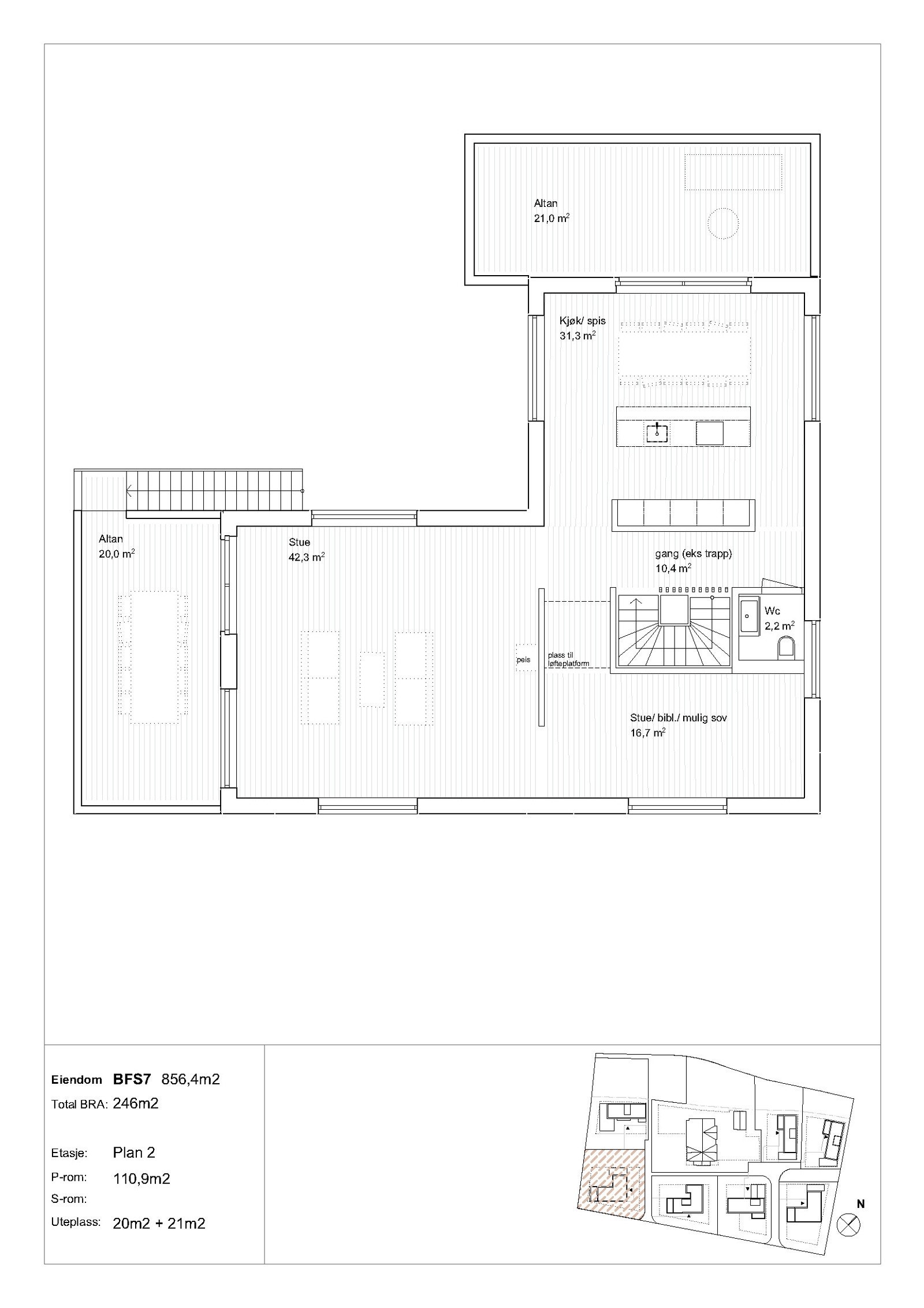
Areal og fordeling bolig 7:
Totalt: 246 m² BRA / 223,2 m² P-rom
1. etasje: 112,3 m² BRA / 112,3 m² P-rom
2. etasje: 110,9 m² BRA / 110,9 m² P-rom
Garasje og sportsbod: 22,8 m² BRA
Følgende rom er inkludert i P-rom:
1. etasje: Ganger, tre soverom, omkledningsrom, garderobe, to bad, stue, WC og vaskerom/teknisk rom.
2. etasje: Kjøkken, stue og WC.
Følgende rom er inkludert i S-rom:
1. etasje: Garasje og sportsbod.
Areal og fordeling bolig 8:
Totalt: 259 m² BRA / 231,3 m² P-rom
1. etasje: 117,1 m² BRA / 117,1 m² P-rom
2. etasje: 104,3 m² BRA / 104,3 m² P-rom
3. etasje/takterrasse: 9,9 m² BRA / 9,9 m² P-rom
Garasje og sportsbod: 27,7 m² BRA
Følgende rom er inkludert i P-rom:
1. etasje: Ganger, tre bad, stue, fire soverom, omkledningsrom og vaskerom/teknisk rom.
2. etasje: Stue, kjøkken og WC.
3. etasje: Takstue.
Følgende rom er inkludert i S-rom:
1. etasje: Garasje og sportsbod.
Vedlagte plantegninger og tegninger er ikke målbare. De oppgitte arealer er hentet fra vedlagte tegninger.
Beliggenhet
Eiendommene ligger ved Domkirkeodden i et av Hamars mest attraktive boligområder. Fra eiendommene er det kort vei til barnehager, skoler, idrettsanlegg og butikker. Hamar sentrum og alle servicefasiliteter er også kun en liten spasertur fra området. Rett utenfor døren finner du fantastiske tur- og rekreasjonsmuligheter langs Mjøsa. Turstien langs vannet går hele veien til Jessnes og Hamar. Domkirkeodden byr også på store og flotte friarealer i museumsparken og på Koigen. Ellers kan man skilte med kort veg til både Furuberget og Ankerskogen. Furuberget har fine turstier på sommerhalvåret og lysløype på vinteren. I Ankerskogen er det svømmehall med helse- og velværeavdeling, samt tennisbaner. Ute er det opplyste turstier, skiløyper, skøytebane, akebakke og frisbeegolfbane.
I Hamar sentrum finner du handlegater, kjøpesenter, servicefunksjoner, et stort kulturtilbud og et rikelig utvalg av caféer og restauranter. Verdt å nevne er Resturanthuset Stallgården hvor du får en flott smaksopplevelse med lokale råvarer i sesong, Larsen hvor du får god kaffe og koselig atmosfære, ellers har man Royal India med indisk mat, samt Nagomi med nydelig sushi og italienske Il Teatro i Victoriakvartalet. Verdt å nevne er også Matkvartalet, en nyrenovert bygård i Hamar med blant annet ølbryggeri, kaffebrenneri, slakter, kolonial, samt bakgård med streetfood fra ulike deler av verden. Her får du blant annet falafel, sushi, taco, BBQ, italiensk og asiatisk mat. Hamar kulturhus med kino, bibliotek og forestillinger ligger også i sentrum. I kulturhuset er det normalt et godt tilbud av aktiviteter for både liten og stor, med blant annet diverse konserter og øvingslokaler for kulturskolen.
Skysstasjonen ligger i sentrum med bussforbindelser til distriktet og tog med meget gode forbindelser til Gardermoen og Oslo.
Tomt
Olav Myntmesters gate 29 (Bolig 2 - Gnr. 1 Bnr. 7680): 739 kvm
Olav Myntmesters gate 27 (Bolig 3 - Gnr. 1 Bnr. 7679): 718 kvm
Olav Myntmesters gate 25 (Bolig 4 - Gnr. 1 Bnr. 7681): 741 kvm
Olav Myntmesters gate 33 (Bolig 5 - Gnr. 1 Bnr. 7682): 706 kvm
Olav Myntmesters gate 35 (Bolig 6 - Gnr. 1 Bnr. 7683): 716 kvm
Olav Myntmesters gate 39 (Bolig 7 - Gnr. 1 Bnr. 7684): 856 kvm
Olav Myntmesters gate 37 (Bolig 8 - Gnr. 1 Bnr. 7685): 1079 kvm
Felles adkomstvei på Gnr. 1 Bnr. 7686 (organisert som realsameie): 1029 kvm
Tomtestørrelse/-areal er hentet fra digitalt kartverk. Det gjøres oppmerksom på at denne type kart kan være noe upresise og at man dermed kan få avvik ved en eventuell fremtidig oppmåling. Mangel grunnet arealsvikt, jfr. avhendingslovas § 3-3, kan derfor ikke påberopes.
Utomhusarealet leveres iht til situasjonsplan vedlagt salgsoppgaven. Toppdekke av asfalt på parkeringsarealer. Gangveier leveres gruset. Plenarealer leveres med ferdigplen.
Opparbeidelsen vil skje i takt med utbyggingen og ferdigstilles til overtakelsen så langt det lar seg gjøre innenfor årstiden. Dersom arealet ikke lar seg ferdigstille skal det gjøres et overslag over gjenstående arbeider som vil bli tilbakeholdt på meglers klientkonto til arbeidene er ferdig. Selger skal og er forpliktet til å gjøre ferdig arbeidene så snart det lar seg gjøre.
Leveransebeskrivelse
EIE har gleden av å presentere sju prosjekterte eneboliger på et av Hamars mest attraktive områder. Boligene vil ligge på et høydedrag i Olav Myntmesters gate hvor vi kan love flotte sol- og utsiktsforhold. Her bor du i gangavstand til fine tur- og rekreasjonsområder, samtidig som Hamar sentrum og alle servicefasiliteter er i kort avstand fra hjemmet.
Alle boligene i prosjektet er ulike, men felles for de alle er gode materialvalg og løsninger. Her kommer et utdrag av leveransebeskrivelsen. Fullstendig leveransebeskrivelse ligger vedlagt salgsoppgaven og kjøkkentegninger for hver enhet kan utleveres på forespørsel.
Gulv
Stue, kjøkken, soverom og gang i boligene leveres med 1-stavs parkett i lys, hvit eik. På bad leveres støpt betong med elektriske varmekabler. 30x30 cm flis på gulv på bad (Grespor Minos Vulcanic matt), 5x5 cm på gulv i dusjnisje (Grespor Minos Vulcanic matt), og 30x60 cm flis på gulv i entré (Grespor Minos Vulcanic matt).
Innvendige vegger og himling
Himling blir kledd med gips som skjøtesparkles og males to strøk i én farge. Innvendige vegger (på tørre rom) leveres med 13 mm gips som skjøtesparkles og males to strøk i én farge. Kjøper kan selv velge hvilken farge som er standardfarge. Tillegg kan oppstå dersom kjøper ønsker flere enn én farge på veggene i boligen. Vegger på bad får flis 30x60 cm (Vitra Plain Color matt) og vaskerom får slette og hvite baderomsplater.
Listverk
Til taklist leveres 12x45 mm hvitmalt klattkant. Mot tak kan det leveres listefritt mot tillegg. Til vindu-, dør- og fotlist leveres 12x45 mm hvitmalt glattkant. Gulvlist kan leveres som parkett mot et pristillegg.
Oppvarming
Boligene vil få elektriske varmekabler på bad og vaskerom. Øvrig oppvarming med elektrisitet og vedfyring. Boligene får pipe og leveres med peisovn type Curve 100 eller lignende.
Kjøkken og bad
Kjøkken leveres i henhold til egne tegninger og leveransebeskrivelse fra HTH. Tegninger utleveres på forespørsel.
For bad se beskrivelse av flis ovenfor. Bad 1 leveres med vegghengt toalett, servant med ettgreps blande-batteri (Vikingbad Ada 120 thin servant), dusj på vegg, 90x90 cm dusjvegger. Bad 2 leveres med vegghengt toalett, servant med ettgreps blandebatteri (Vikingbad Ida 90 Slim Std servant), dusj på vegg og 90x90 cm dusjvegger. WC får vegghengt toalett og servant med ettgreps blandebatteri (Vikingbad Ida 40 Slim Std servant). Innredningene kan leveres i forskjellige farger (hvit matt, hvit høyglans, lys eik og mørk grå). Toalett og servant leveres i hvit farge. Kraner og batterier leveres forkrommet.
Parkering
Bolig 2, 3, 4, 5, 7 og 8 får garasje med plass til én bil og carport. Bolig 6 får to garasjeplasser.
Formuesverdi
Formuesverdien er ikke fastsatt. Formuesverdien fastsettes av skatteetaten etter en beregningsmodell om boligen er primær eller sekundær. Formuesverdien for primærbolig utgjør 25% av boligverdien opp til kr. 10 000 000,- og deretter 70 % av den overskytende boligverdien. Ved sekundærbolig vil formuesverdi være 100 % av boligverdien. Det gjøres oppmerksom på at kjøper selv må sende inn opplysninger om adresse, areal, boligtype og byggeår til skattemyndighetene. Det tas forbehold om endring av satser.
Vei / Vann / Kloakk
Eiendommene vil få adkomst fra offentlig veg, via felles internveg. Vegen vil bli organisert som et realsameie med felles ansvar for drift og vedlikehold.
Eiendommene blir tilknyttet kommunalt vann- og avløpsnett via private stikkledninger. Det kan bli felles private stikkledninger til enkelte av eiendommene. Alle arbeider og kostnader vedr. dette er inkludert i kjøpesummen.
Reguleringsforhold / Offentlig godkjenning
Eiendommene omfattes av kommuneplanens arealdel 2018-2030, planid. 20170001. Området eiendommene ligger i er avsatt og utnyttet til boligbebyggelse. Eiendommen ligger innenfor hensynsone for båndlegging etter lov om kulturminner (H730_310) og er dermed fredet eller foreslått fredet med hjemmel i Kulturminneloven. Byggetiltak innenfor hensynsone H730 kan bare skje ved særskilt tillatelse.
Eiendommene omfattes også av kommunedelplan for kulturminner og kulturmiljøer innenfor byvekstgrensen, planid. 20110002.
Prosjekttomten er detaljregulert "Detaljreguleringsplan for Olav Myntmesters gate 31", planid. 083000. Hele området er regulert til frittliggende småhusbebyggelse, felles uteoppholdsareal, vei, gang/sykkelvei og annen veigrunn/grøntareal. Det er også avsatt grønnstruktur og naturområde. Eiendommen ligger under følgende hensynsoner:
- Frisikt H140
- Bevaring kulturmiljø H570
- Båndlegging etter lov om kulturminner H730
Kopi av situasjonskart og reguleringsplaner m/bestemmelser kan fås hos megler. Vi oppfordrer interessenter til å gjøre seg kjent med disse.
Stipulert overtagelse
I etterkant av salg av hver enkelt enhet/bolig må byggesøknad sendes til kommunen. Når kommunen har gitt igangsettelsestillatelse og utbygger har frafalt sine forbehold kan byggearbeider begynne. Ved igangsetting av tømrerarbeid (etter grunn- og betongarbeider er ferdig støpt) vil byggetiden være ca. 8 måneder.
Ved igangsettelse av tømrerarbeidet vil selger varsle kjøper skriftlig om overtagelsesdato, som vil være å regne som en frist iht. bustadoppføringslova. Selger kan likevel kreve overtakelse inntil 4 måneder før den avtalte fristen dersom boligen er klar for overtakelse.
Selger vil holde kjøper orientert om fremdriften. Selger plikter, senest 8 uker før ferdigstillelse av boligen, å meddele kjøper skriftlig om fast overtakelsesdato. Denne varslede dato gjelder da som bindende overtakelsesdato, er evt. dagmulktutløsende.
Selger kan ved ekstraordinær hendelse eller omstedigheter utenfor deres kontroll (for eksempel som følge av koronapandemi eller krigen i Ukraina) sende ut varsel om force majeure. Dette kan gi fristforlengelse og vil ikke utløse mislighold fra selgers side.
Forsikring
Frem til overtagelse vil eiendommen være forsikret av utbygger. Etter overtagelsen må kjøper selv sørge for at boligen er forsikret.
Forpliktelser, rettigheter og servitutter
Kommunen har lovbestemt første prioritets pant (legalpant) i eiendommen for eventuelle ubetalte kommunale skatte- og avgiftskrav.
Følgende er tinglyst på eiendommene pt.:
- Dagboknr. 900209, tinglyst den 05.10.1918. Gjelder rettigheter iflg. skjøte. Bestemmelse om gjerde.
- Dagboknr. 109011, tinglyst den 23.12.1974. Gjelder rettigheter iflg. skjøte. Bestemmelse om bebyggelse.
Dokumentene kan ses hos meglerforetaket eller utleveres etter forespørsel.
Det gjøres oppmerksom på at selger har anledning til å tinglyse nødvendige dokumenter i forkant av overtagelse.
Prisantydning, omkostninger og evt. fellesgjeld
Fra kr. 14 200 000,- til kr 18 500 000,- (Prisantydning/fastpris)
Omkostninger
585,- (Tingl.gebyr pantedokument)
585,- (Tingl.gebyr skjøte)
200,- (Pantattest kjøper)
2,5 % av tomteverdi - se prisliste (Dokumentavgift)
Betalingsbetingelser
Det forutsettes at 10% av kjøpesummen innbetales som forskudd ved kontraktsinngåelse. Innbetalingen skal være fri egenkapital, det vil si at det ikke forutsettes pant i boligen som kjøpes. Påløpte renter vil tilfalle kjøper frem til skjøte er tinglyst, med mindre selger får disposisjonsretten over beløpet som følge av at det stilles garanti ihht. Bustadoppføringslova §47.
Fullstendig kjøpesum samt omkostninger skal være disponibelt på meglers klientkonto innen dato for overtagelse. Kjøpesummen skal innbetales fra norsk finansinstitusjon og/eller kjøpers konto i norsk finansinstitusjon. Eventuell egenkapital skal innbetales i én samlet betaling fra kjøpers egen konto i norsk finansinstitusjon.
Vederlaget
Følgende er avtalt om meglers vederlag:
Hus 1-3 kr. 42 500,-
Hus 4-6 kr. 47 000,-
Hus 7 kr. 55 000,-
Markedspakke kr. 20 000,-
Oppdragsgiver dekker kostnader for innhenting av opplysninger.
Beløpene er eksklusiv mva.
Dersom handelen ikke kommer i stand eller at oppdraget sies opp har megleren krav på dekning for påløpte timer, påløpte visninger, grunn og markedspakke samt utlegg.
Avbestilling
Kjøp etter bustadoppføringslova innebærer en avbestillingsrett for kjøper. Dersom denne retten benyttes vil kjøper kunne bli holdt ansvarlig for selgers merkostnader og tap som følge av avbestillingen. I stedet for erstatning kan det være fastsatt et avbestillingsgebyr. Erstatning og avbestillingsgebyr reguleres av bustadoppføringslova §§ 53 og 54.
Garantier
Garanti etter buofl. § 12 stilles ved bortfall av forbehold, men senest ved igangsettelse av byggearbeidene.
Garantien skal være pålydende 3% av kjøpesummen i byggetiden og 5% i 5 år etter overlevering av boligene til kjøper. Garanti etter buofl. § 47 forutsettes stilt om selger ønsker utbetalt forskudd/delinnbetaling/sluttoppgjør før hjemmelsovergang.
Selgers forbehold
Selger tar forbehold om følgende:
- Hver enkelt bolig/eiendom må motta endelig offentlig godkjenning og igangsettelsestillatelse. Kjøper er forpliktet til å godta de endringer for boligene som måtte følge av at kommunen ikke godkjenner byggetegninger. I så tilfelle må kjøper skriftlig varsles angående endringene.
- At det innvilges tilfredsstillende byggelånsfinansiering og åpning av byggelån.
I forbindelse med kontraktinngåelse settes det en tid for når forbehold bortfaller for den aktuelle boligen. Ved en forlengelse av frist må dette avtales skriftlig med kjøper. Kjøper skal skriftlig varsles når grunnlaget for forbehold er bortfalt. Selger kan også løfte forbehold, selv om grunnlaget for dette ikke er bortfalt. Dersom forbehold gjøres gjeldende eller fristen går ut, bortfaller kjøpekontrakten og avtalen mellom partene.
Øvrige forbehold:
Selger tar forbehold om at endelig produkt kan fravike i forhold til opplysninger i prospekt, tegninger og leveransebeskrivelse. Endringer skal ikke forringe kvaliteten på boligen eller være til særlig ugunst for kjøperen. Siden detaljplanlegging ikke er utført på det tidspunkt når denne beskrivelse er utarbeidet, tas det forbehold om endringer i fasadeutforminger/-uttrykk og at veggtykkelser kan bli endret for å tilpasse seg nødvendige fremføringer av sjakter og tekniske anlegg.
Tegninger og illustrasjonsbilder av boligen er kun ment som illustrasjoner. Disse bør således ikke benytte som grunnlag for nøyaktig mål eller forventet produkt. Leveransebeskrivelsen gjelder i de tilfeller illustrasjonsbildene og beskrivelsen ikke samsvarer.
Illustrasjoner er ikke retningsgivende for detaljer rundt leveranser. Perspektivtegninger i 3D er illustrasjoner og kan avvike fra leveransen.
Det gjøres oppmerksom på at svinnsprekker og riss kan oppstå en tid etter overlevering. Spesielt gjelder dette i overgang mellom yttervegg og himling og i hjørnet på gerikter. Dette er i utgangspunktet ikke reklamasjonsberettiget. Dette vil bli befart i forbindelse med 1-årsbefaring hvor det gjøres avtale om en eventuell utbedring.
Mer detaljert dokumentasjon av innredninger i kjøkken, bad og garderobe vil bli fremlagt på forespørsel.
I tillegg kan det vise seg nødvendig og kasse inn mindre vertikale og/eller horisontale tekniske føringer for fremføring av tekniske anlegg. Plassering av tekniske anlegg vil primært bli plassert i teknisk bod, men detaljprosjekteringen kan medføre at plasseringen vil måtte justeres noe.
Viktig informasjon
Ved salg til forbruker selges boligene iht. bustadoppføringslova. Selger skal overlevere boligene i ryddig og byggerengjort stand, og uten noen form for leieforhold. Kontakt meglerforetaket ved spørsmål knyttet til hvilke lovverk som skal gjelde ved kjøp. Det er ikke mulig å tegne boligselger- og boligkjøperforsikring ved salg/kjøp etter bustadoppføringslova.
Videresalg av kontraktsposisjon
Videresalg av kontraktsposisjon aksepteres ikke av selger.
Tilvalg
Adgang til tilvalg eller endringer begrenset opp til 15% av kontraktsverdien ihht. Bustadoppføringslova §9. Slike tilvalg leveres mot pristillegg.
Tilvalg må bestilles ift. oppsatt produksjon, og mulighetene begrenses etter hvert som produksjonen igangsettes. Det vil bli satt opp egne tilvalgsmøter for kjøperne. Alle tilvalgsavtaler avtalefestes direkte mellom kjøper og entreprenør/ underleverandør.
Prosjektets gjennomføring og offentlige tillatelser gir begrensninger i hvilke valg av tekniske løsninger og materialer som er mulig. Dette begrenser hvilke tillegg og endringer kjøper kan forvente å få gjennomført, og innenfor hvilke tidsrom arbeider kan bestilles. Eksempler på tilvalg som ikke tillates er endring av fasade, vindusform, plassering av vann og avløp mv. Dersom selger krever tilvalgskostnadene utbetalt før hjemmelsovergang, skal det stilles §47 garanti ihht. bustadoppføringslova direkte ovenfor kjøper.
Ferdigattest / midlertidig brukstillatelse
Ved overtakelse skal det foreligge midlertidig brukstillatelse. Selger er ansvarlig for å innhente ferdigattest, men kjøper er innforstått med at denne normalt ikke foreligger før etter overtakelse. Kjøper er gjort uttrykkelig kjent med og aksepterer at boligen vil kunne bli klar for overtakelse før det totale prosjektet, herunder hele eller deler av fellesarealet utomhus, kan ferdigstilles. Dette innebærer at kjøper vil kunne få rett og plikt til å overta boligen før det foreligger ferdigattest og at selger kan måtte søke om midlertidig brukstillatelse/ dispensasjon om krav til ferdigattest ved overtakelse. Dersom kjøper overtar boligen på midlertidig brukstillatelse har selger krav på oppgjør i henhold til kjøpskontrakten, mot at det holdes tilbake et beløp som sikkerhet for at ferdigattest blir gitt. Selger plikter å fremskaffe ferdigattest når utomhus ferdigstilles.
Arealangivelser
Prislister er angitt i ca. bruksareal BRA (salgbart areal BRA-S) som er boligens mål innvendig, innbefattet innvendige boder, sjakter og innvendige vegger, men ikke medregnet yttervegger og vegger mot andre bruksenheter. I tillegg opplyses ca. P-rom i prislisten. Arealet for P-rom er inklusive innervegger men fratrukket areal for sjakter og boder. Selger tar forbehold om at mindre avvik kan forekomme.
Budgivning
Faste priser. Se egne dokumenter for prisliste og kjøpsbekreftelse i salgsoppgaven. Selger/megler kan fritt endre prisliste uten varsel. Det er til en hver tid den siste versjonen som er gjeldene.
Lovgrunnlag
Boligene selges i henhold til Bustadoppføringslova som regulerer kjøpers (forbrukers) rettigheter og plikter ved avtale om oppføring av bolig og kjøp av fast eiendom der bygningen ikke er fullført når avtalen inngås. Ved salg til aksjeselskap legges Avhendingslovens bestemmelser til grunn.
Oppdragsnummer
72-22-0317
Hvitvasking
Eiendomsmegler er underlagt lov om hvitvasking og tilhørende forskrift. Hvitvaskingsloven pålegger megler å gjennomføre kundetiltak av både selger og kjøper. Dersom kjøper ikke bidrar til at megler får gjennomført kundetiltak, og dette medfører at transaksjonen ikke kan gjennomføres eller blir forsinket misligholder kjøper avtalen. Dette vil kunne gi selger rettigheter etter avhendingsloven, herunder rett til å heve kjøpet og gjennomføre dekningssalg for kjøpers regning dersom misligholdet er vesentlig. I tilfeller der det er selger som ikke bidrar til at megler får gjennomført løpende kundetiltak underveis i oppdraget må megler stanse gjennomføringen av transaksjonen. Selger vil i så fall ha misligholdt sine forpliktelser, og kjøper vil kunne ha krav mot selger etter avhendingslovens bestemmelser om mislighold og forsinkelse.
Dersom kundetiltak ikke lar seg gjennomføre vil EIE eiendomsmegling ikke kunne bistå med handelen eller foreta oppgjør.
Personvern
Som interessent, budgiver og kjøper vil dine personopplysninger bli registrert og lagret. Som eiendomsmeglingsforetak har vi plikt til å oppbevare kontrakter og dokumenter i minst 10 år, jf. eiendomsmeglingsforskriften § 3-7 (3). Dette innebærer at mulighetene for å få slettet personopplysninger er begrenset. Du kan lese om vår behandling av personopplysninger i vår personvernerklæring på https://eie.no/eiendom/personvernerklaering
EIE vekst
EIE AS, og i noen tilfeller eiendomsmeglerforetak som er tilknyttet kjeden EIE eiendomsmegling, har eierinteresser i selskaper som leverer produkter og tjenester som våre kunder tilbys i forbindelse med eiendomstransaksjonen. Les mer om dette på https://eie.no/eiendom/eie-investerer
Nærområdet
EIE eiendomsmegling Innlandet
Annonseinformasjon
| FINN-kode | 290965066 |
|---|---|
| Sist endret | 13. aug. 2025 16:41 |
| Referanse | 72220317 |
Annonsene kan være mangelfulle i forhold til lovpålagt opplysningsplikt. Før bindende avtale inngås oppfordres interessenter til å innhente komplett informasjon fra meglerforetaket, selger eller utleier.




