Bildegalleri

Velkommen til Gabels gate 48
VISNING AVLYST | Solrik terrasse på 25 kvm med flott utsyn | Peis inne og ute | Soveromsavd | Garasje*
Nøkkelinfo
- Boligtype
- Leilighet
- Eieform
- Eier (Selveier)
- Soverom
- 3
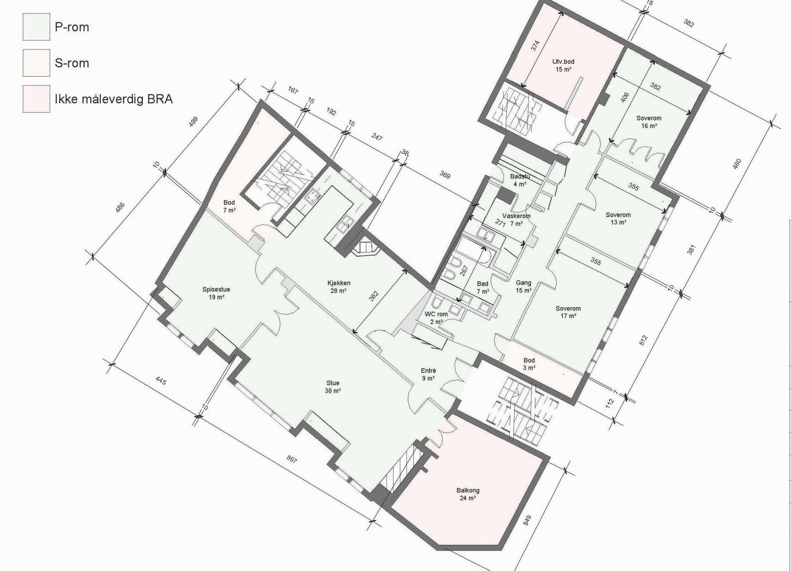
- Primærrom
- 182 m²
- Bruksareal
- 194 m²
- Etasje
- 5
- Byggeår
- 1893
- Energimerking
- G - Rød
- Tomteareal
- 518 m² (eiet)
- Bruttoareal
- 211 m²
- Boligselgerforsikring
- Ja
Fasiliteter
Om boligen
Stor og innholdsrik toppleilighet med super beliggenhet i solrike omgivelser på Frogner. Rolig gate uten gjennomgangs trafikk.
- Sjeldent stor, solrik terrasse (25 kvm) med utepeis og fjordutsikt
- Leiligheten er hele femte etasje. Store og luftige rom
- Effektiv planløsning med egen soveromavdeling. Stuer, terrasse og kjøkken samlet
- Moderne, tidløst Unoform spisekjøkken fra 2018
- Hyggelig peis på kjøkken og flott, åpen peis i stue
- Romslig spisestue
- Egen soveromsavdeling med 3 soverom og 2 bad samt badstue
- Praktisk gjestetoalett i entré utenfor soveromsavdelingen
- Gode lagringsmuligheter - 3 boder i etg samt 2 boder i kjeller
- Selger leier 2 garasjepl, vis a vis eiendommen. Begge plassene kan videreføres kjøper
- Oppgang, inngangsdører, fasade og piper er rehabilitert de senere år
Gangavstand til "alt"
Salgsoppgaven beskriver vesentlig og lovpålagt informasjon om eiendommen
Se komplett salgsoppgaveNyttige lenker
Nærområdet

PrivatMegleren Allé
Prisstatistikk
Gabels gate 48
på annonsen
prisantydning per kvadratmeter
Prisfordeling
Pris per m² ligger 15 209 kr under snittet for leiligheter i Bygdøy - Frogner.
Grafen viser antall leiligheter solgt i Bygdøy - Frogner siste året fordelt på pris per m² - totalt 1 130 leiligheter
Antall boliger
Kvadratmeterpris tilsvarer prisantydning pluss fellesgjeld per kvadratmeter (p-rom eller BRA-i). Prisene i grafen er avrundet til nærmeste 1000 kr.
Annonseinformasjon
| FINN-kode | 287766170 |
|---|---|
| Sist endret | 14. feb. 2023 14:54 |
| Referanse | 186220311 |
Annonsene kan være mangelfulle i forhold til lovpålagt opplysningsplikt. Før bindende avtale inngås oppfordres interessenter til å innhente komplett informasjon fra meglerforetaket, selger eller utleier.

































