Bildegalleri

Velkommen til idylliske Hjortevegen 18 og en svært innbydende familiebolig! Presentert av Yvonne Silden Stephensen for Eiendomsmegler Krogsveen.
Lekkert enderekkehus med stor hage, parkering, og strålende beliggenhet på Skjold med bla. 5. min til Bybane!
Nøkkelinfo
- Boligtype
- Rekkehus
- Eieform
- Eier (Selveier)
- Soverom
- 3
- Primærrom
- 148 m²
- Bruksareal
- 157 m²
- Etasje
- 3
- Byggeår
- 1959
- Energimerking
- G - Oransje
- Rom
- 5
- Renovert år
- 2016
- Tomteareal
- 368 m² (eiet)
- Bruttoareal
- 184 m²
Fasiliteter
Om boligen
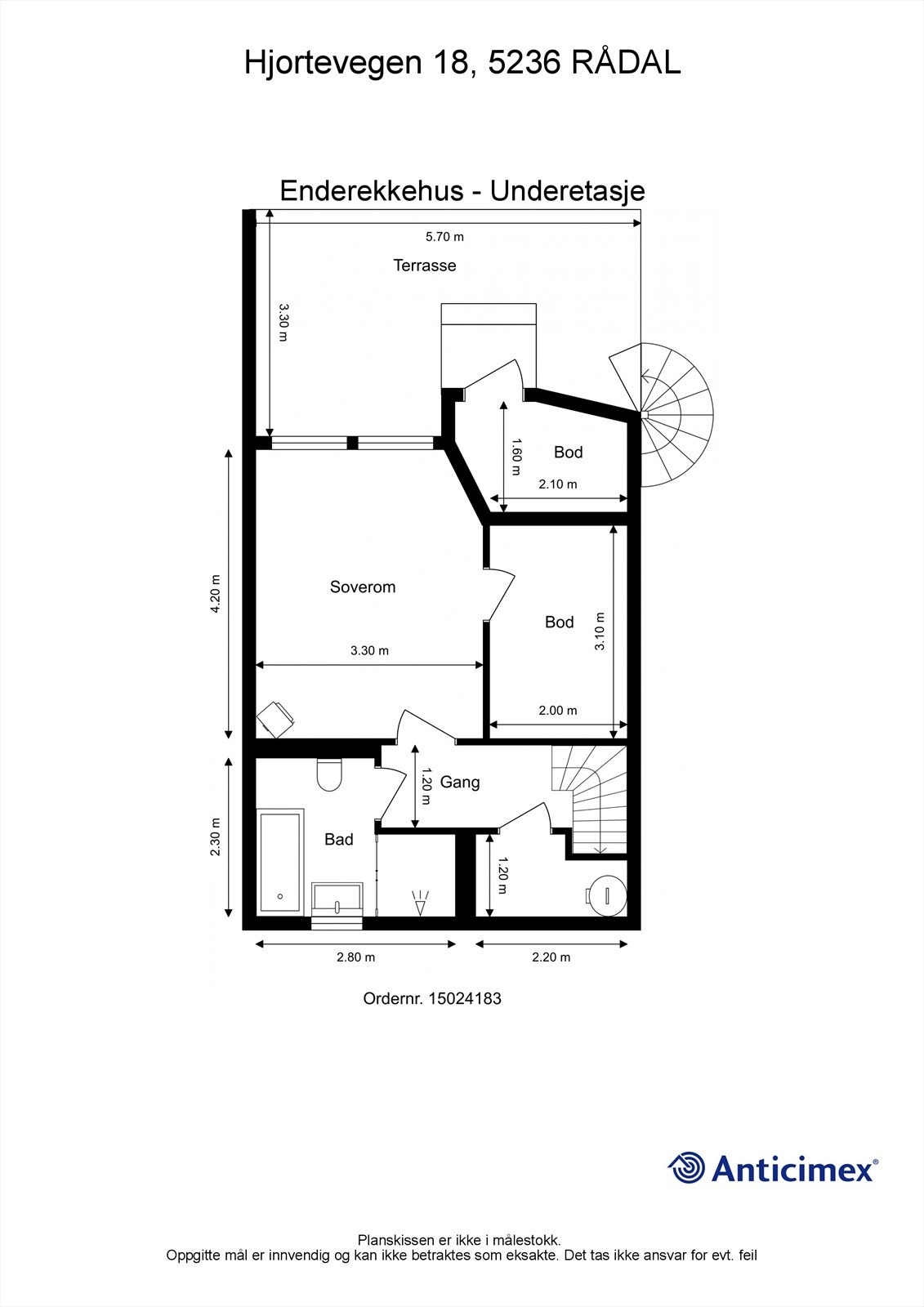
Boligen går over 2 plan, med tillegg av innredet kjeller. I 1. og 2. etasje er det to store stuer, lekkert kjøkken, et helfliset baderom, et kontor, samt 3 gode soverom. Kjeller er innredet med et delikat nyere baderom, vaskerom, og et soverom. Dette er p.t ikke godkjent, søknad om bruksendring foretas i disse dager.
Beliggenheten er svært familievennlig med trygge, rolige gater og kort vei til barnehager, samt skoler. Det er enkelt å la bilen stå med kun ca. 5 min gange til bybanestopp, og handlingen gjør man lett unna på nærliggende Spar. Lagunen storsenter og Nesttun sentrum tilbyr øvrige service- og handlemuligheter.
Vel møtt!
Salgsoppgaven beskriver vesentlig og lovpålagt informasjon om eiendommen
Se komplett salgsoppgaveNyttige lenker
Nærområdet
Krogsveen Bergen Sentrum
Prisstatistikk
Hjortevegen 18
på annonsen
prisantydning per kvadratmeter
Prisfordeling
Pris per m² ligger 6 487 kr under snittet for rekkehus i Fana.
Grafen viser antall rekkehus solgt i Fana siste året fordelt på pris per m² - totalt 155 rekkehus
Antall boliger
Kvadratmeterpris tilsvarer prisantydning pluss fellesgjeld per kvadratmeter (p-rom eller BRA-i). Prisene i grafen er avrundet til nærmeste 1000 kr.
Annonseinformasjon
| FINN-kode | 281301151 |
|---|---|
| Sist endret | 09. feb. 2023 09:09 |
| Referanse | KR79.22137 |
Annonsene kan være mangelfulle i forhold til lovpålagt opplysningsplikt. Før bindende avtale inngås oppfordres interessenter til å innhente komplett informasjon fra meglerforetaket, selger eller utleier.






















































