Bildegalleri

Aleen Bajwa v/EIE Jessheim har gleden av å presentere Skakkland 3!
Nydelig tømmervilla med fantastisk utsikt | Kort vei til sentrum | Vannbåren varme | Barnevennlig beliggenhet!
Nøkkelinfo
- Boligtype
- Enebolig
- Eieform
- Eier (Selveier)
- Soverom
- 5
- Internt bruksareal
- 236 m² (BRA-i)
- Bruksareal
- 240 m²
- Eksternt bruksareal
- 4 m² (BRA-e)
- Balkong/Terrasse
- 51 m² (TBA)
- Byggeår
- 2008
- Energimerking
- B - Gul
- Tomteareal
- 2 448 m² (eiet)
Fasiliteter
Om boligen
Aleen Bajwa v/EIE Jessheim har gleden av å presentere denne flotte tømmervillaen! Skakkland 3 er en flott og romslig familiebolig beliggende i landlige og rolig omgivelser i Eidsvoll kommune. Det er kort vei til skole, barnehage, offentlig transport og ulike servicetilbud.
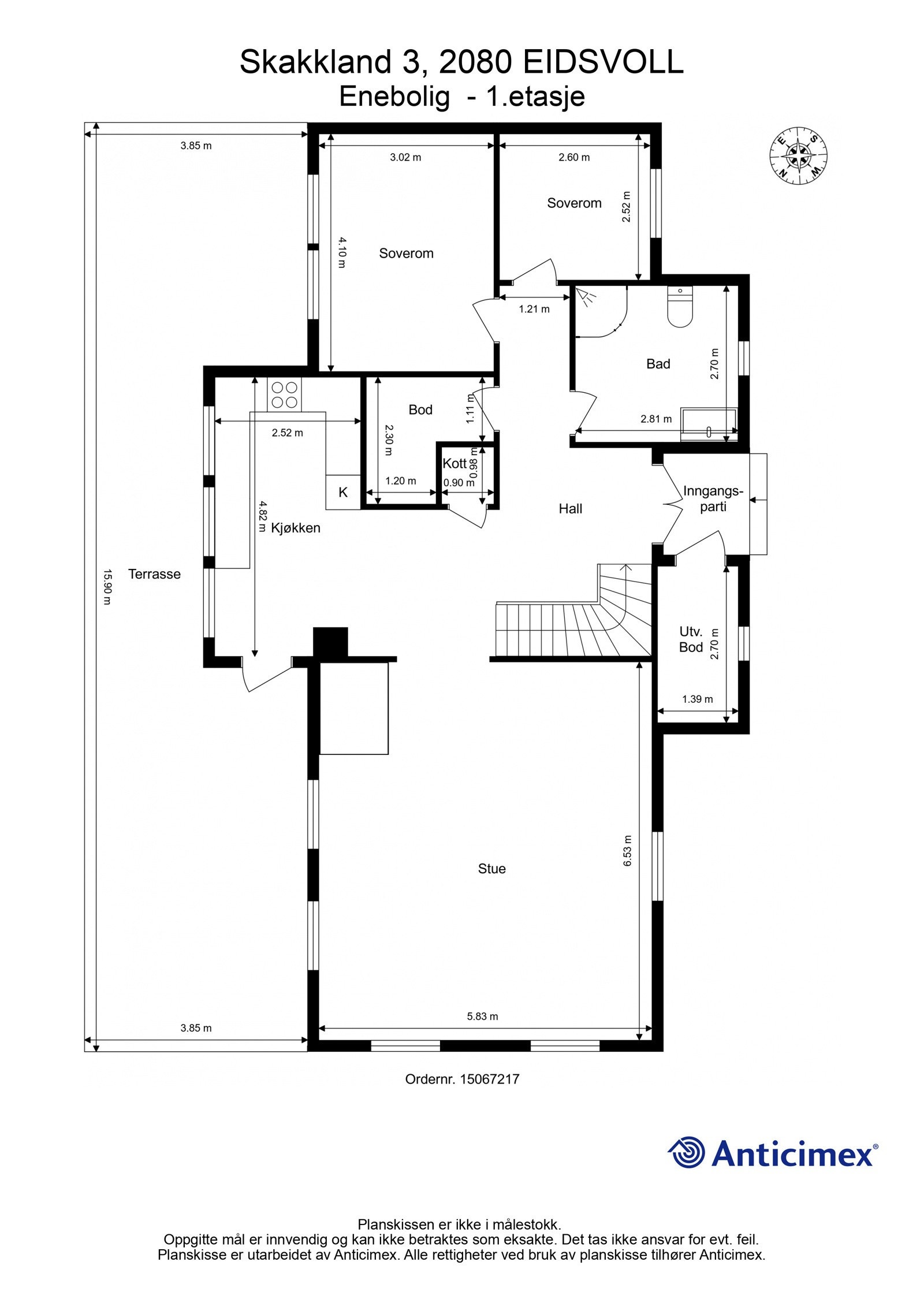
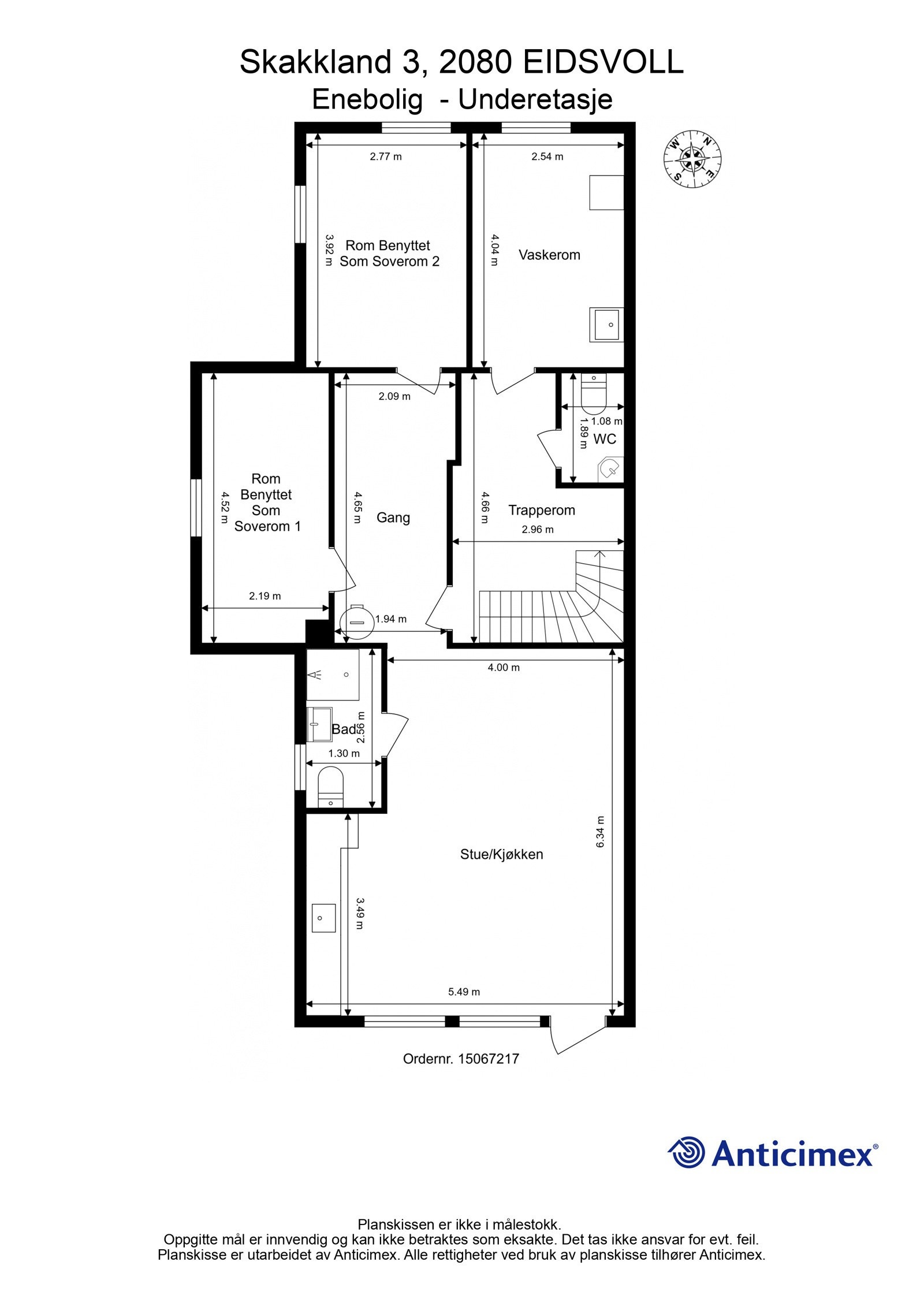
Innvendig består boligen av blant annet entrè, en flott stue, to kjøkken, to bad, et toalettrom, et vaskerom, kontor og hele 5 soverom. Underetasjen byr på muligheter for utleie.
Hvorfor velge tømmerhus?
- Tre har en unik varmelagringskapasitet som gir stabile innetemperaturerer.
- Luftfuktigheten og naturlig ventilasjon i trehus er stabil.
- Tre oppfattes som naturlig, levende, sunt og behagelig å bo i.
Tomt på 2 448 kvm med fine uteplasser og en fantastisk utsikt!
Det foreligger ferdigattest datert 09.02.2023.
Salgsoppgaven beskriver vesentlig og lovpålagt informasjon om eiendommen
Se komplett salgsoppgaveNærområdet
EIE eiendomsmegling Jessheim
Prisstatistikk
Skakkland 3
på annonsen
prisantydning per kvadratmeter
Prisfordeling
Pris per m² ligger 7 975 kr under snittet for eneboliger i Eidsvoll.
Grafen viser antall eneboliger solgt i Eidsvoll siste året fordelt på pris per m² - totalt 225 eneboliger
Antall boliger
Kvadratmeterpris tilsvarer prisantydning pluss fellesgjeld per kvadratmeter (p-rom eller BRA-i). Prisene i grafen er avrundet til nærmeste 1000 kr.
Annonseinformasjon
| FINN-kode | 281211777 |
|---|---|
| Sist endret | 03. apr. 2025 07:14 |
| Referanse | 20220359 |
Annonsene kan være mangelfulle i forhold til lovpålagt opplysningsplikt. Før bindende avtale inngås oppfordres interessenter til å innhente komplett informasjon fra meglerforetaket, selger eller utleier.











































