Bildegalleri

I hagen er det god plass for både store og små
Inaktiv
Bjørnevatn
Halvpart av vertikaldelt med nytt kjøkken - Nært fotballbane og friområder
Prisantydning1 950 000 kr
Nøkkelinfo
- Boligtype
- Tomannsbolig
- Eieform
- Eier (Selveier)
- Soverom
- 2
- Primærrom
- 91 m²
- Bruksareal
- 107 m²
- Byggeår
- 1954
- Energimerking
- G - Rød
- Rom
- 3
- Tomteareal
- 444 m² (festet)
- Festeavgift
- 288 kr
Fasiliteter
Barnevennlig
Balkong/Terrasse
Garasje/P-plass
Peis/Ildsted
Turterreng
Rolig
Om boligen
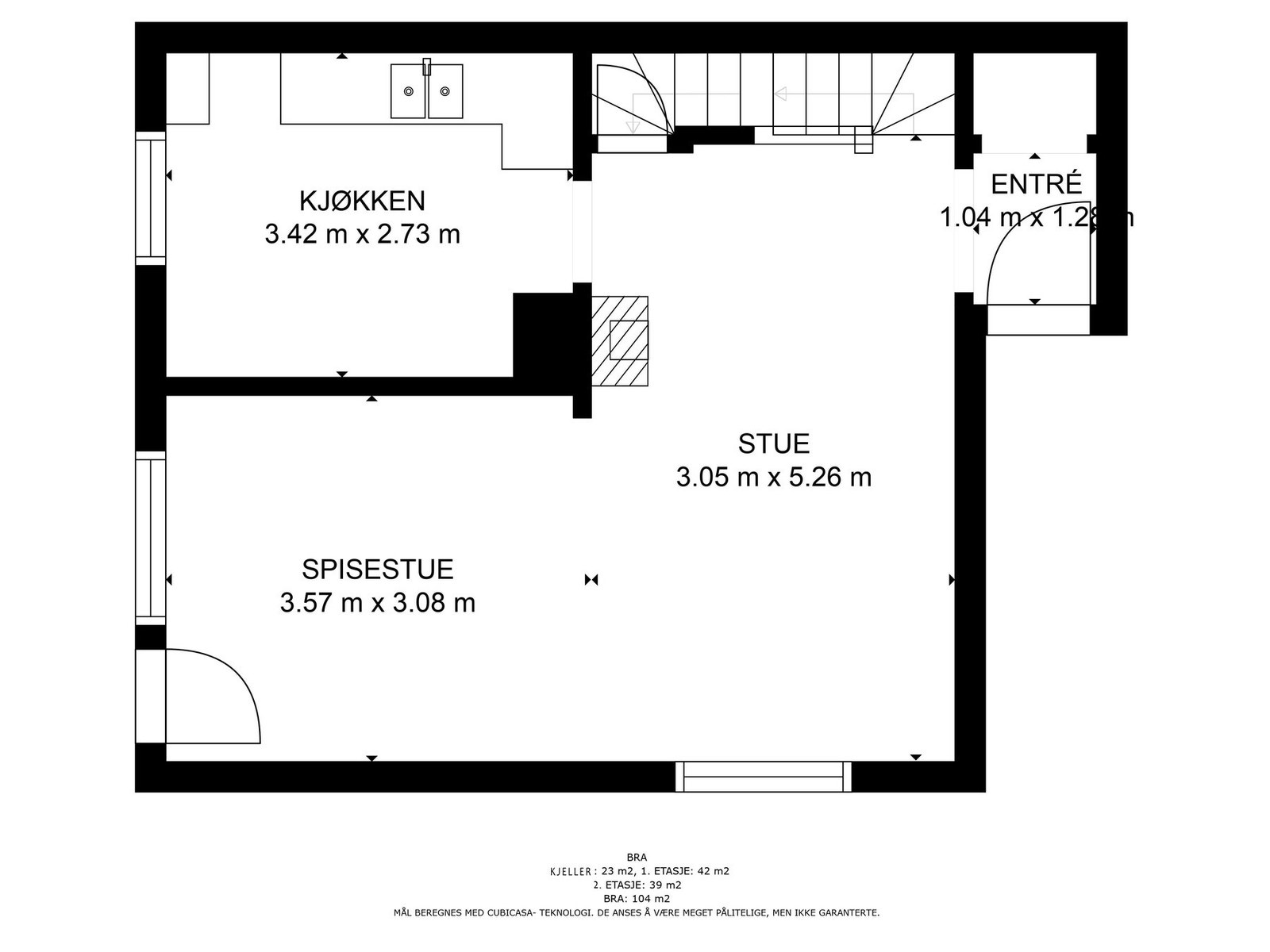
Velkommen til Stull Hansens vei 31 A. Dette er en halvpart av vertikaldelt bolig i rolig boområde nært Bjørneparken og friområder. Boligen består bl.a. av kjøkken fra 2023, stue med vedovn og utgang til solrik terrasse og hage, 2 soverom, bad, vaskerom og boder. Det er behov for oppussing, så her har du muligheten til å sette ditt eget preg på boligen.
NB: Knappen for å vise hele beskrivelsen har kun en visuell effekt.
NB: Knappen for å vise hele beskrivelsen har kun en visuell effekt.
Salgsoppgaven beskriver vesentlig og lovpålagt informasjon om eiendommen
Se komplett salgsoppgaveNyttige lenker
Nærområdet
EiendomsMegler 1 Kirkenes
Vi loser deg trygt gjennom hele boligsalget
Annonsene kan være mangelfulle i forhold til lovpålagt opplysningsplikt. Før bindende avtale inngås oppfordres interessenter til å innhente komplett informasjon fra meglerforetaket, selger eller utleier.


























