Bildegalleri

Semsveien 81 - Nøtterøy
Semsveien 81 - Nøtterøy - Flott familiebolig med opptil 5 soverom
Kort om prosjektet
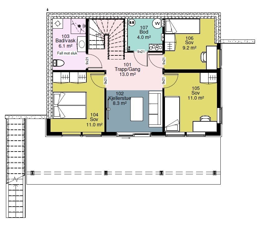
Mesterhus Tønsberg legger nå ut en ferdig prosjektert familiebolig i svært attraktivt område på Nøtterøy. Solrikt og barnevennlig med egen lekeplass internt på feltet. Boligen er tegnet som bolig med underetasje og har per nå 4 soverom som lett kan gjøres om til 5 sov.
Nøkkelinfo
- Boligtype
- Enebolig
- Soverom
- 5
- Primærrom
- 128 m²
- Bruksareal
- 164 m²
Fasiliteter
Visning
Ta kontakt for å avtale visning.Beskrivelse
Beskrivelse
Huset er leveres med normalt god standard klar for innflytting.
Boligen innehar gjennomgående god standard med leveranser fra kjente og lokale leverandører. Leveres blant annet med Storhaug 1 stavs parkett, JKE designkjøkken fra Danmark med helintegrerte hvitevarer, fliselagte baderom med flotte baderomsmøbler av god kvalitet, NorDan 3 lags vinduer, glassrekkverk.
Høyt under taket i stue og kjøkken som skaper ekstra god romfølelse.
Boligen leveres nøkkelferdig men dog uten garderobeskap.
Her har man mulighet for å tilpasse bygget i en tidlig fase da prosjektet ikke er byggemeldt i kommunen enda. Dette gjøres først når kjøpekontrakt signeres. Så her har du mulighet til å designe ditt eget drømmehjem med alt av materialer og farger.
Dersom det er ønske om en helt annen planløsning, fasade eller takform tar du bare kontakt med kunderådgiver Tom Haugen.
Like utenfor døra er det flotte naturområder med flott utsikt ut over åkrene.
Uteområdene vil bli gjort ferdig med støttemurer, tilsådd plen og gruset gårdsplass som en del av leveransen
Prisen er basert på SSB`s indeks pr. 15 Sept. 2022 og justeres etter denne frem til byggestart.
Mesterhus Tønsberg as informerer samtidig om at det blir også fradelt 2 tomter i tillegg til dette på samme området.
Prisen er uten evnt. pelekostnader. Det må påregnes noe peling pga noe dårlige grunnforhold på eiendommen. Peling og evnt. forsterket betongkonstruksjon prises til hvert enkelt hus med medgått materiell og timer. Dette kommer i tillegg til prosjektert pris.
Ta kontakt med kunderådgiver Tom Haugen for mer informasjon.
Prising av prosjektet
Huset er kalkulert etter SSB`s indeks pr. 15.09.2022.
Innflyttingsklart vil huset beløpe seg til 6.390.000,- inkl. mva.
Dette er hus ferdig satt opp, inkludert tomt og normale grunnarbeider. Huset inneholder god standard i alt av materialer fra kjente norske og lokale leverandører.
Grunnforholdene på tomten er varierende og det må kunne påregnes noe pelekostnader inne på selve tomten. Dette blir som et rent tillegg i prisen.
Ta kontakt for visning eller en hyggelig husprat i Mesterhus sine lokaler i Kilengaten 31 i Tønsberg. Teamsmøter er også en mulighet til å treffes.
Mesterhus Tønsberg tar forbehold om feil i annonsen samt forbehold om offentlig godkjenning i Færder Kommune.
Nærområdet
Mesterhus - Mesterhus Tønsberg AS
Annonsene kan være mangelfulle i forhold til lovpålagt opplysningsplikt. Før bindende avtale inngås oppfordres interessenter til å innhente komplett informasjon fra meglerforetaket, selger eller utleier.











