Bildegalleri

VASET | Planlagt nøkkelferdig hytte med 4 soverom I Flott utsikt og gode solforhold
- Omkostninger
- 22 500 kr
- Totalpris
- 4 822 500 kr
Nøkkelinfo
- Beliggenhet
- På fjellet
- Boligtype
- Hytte
- Eieform
- Eier (Selveier)
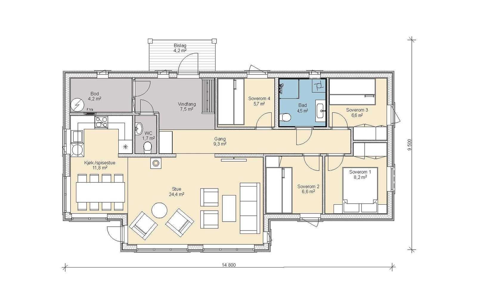
- Internt bruksareal
- 96 m² (BRA-i)
- Bruksareal
- 96 m²
- Balkong/Terrasse
- 4 m² (TBA)
- Tomt
- Eiet
- Soverom
- 4
- Rom
- 5
- Meter over havet
- 1030
Fasiliteter
Om eiendommen
Beliggenhet
Vaset - Brakastølen i Valdres ligger høyt og flott ved Panoramavegen mellom Valdres og Hemsedal. Området er en naturperle og byr på et flott og variert fjellterreng med et levende stølsmiljø, varierte aktiviteter, butikker og hyggelige serveringssteder. Her er det åpent og vilt landskap med flott utsyn mot den ville Jotunheimen. Dette er et familievennlig område for flotte opplevelser sommer som vinter. Her finnes milevis med flotte langrennsløyper, et hyggelig alpinanlegg, områder for fiske, jakt, fotturer, sykling og andre friluftsaktiviteter. Vaset området ligger i Vestre Slidre kommune. 18 km nordvest for Fagernes.
Adkomst/Tomteforhold
Fra Sandvika følg E16 mot Hønefoss . Fortsett E16 forbi Sollihøgda, Hønefoss og fortsett på E16 mot Fagernes. Når du kommer til Fagernes holder du rett frem gjennom sentrum og følger veien (E16) forbi Fagernes Camping mot Slidre. Ta av etter Ulnes Kirke, mot Vaset. Følg veien en drøy kilometer før du tar veien opp til høyre. Hold denne til toppen. Velkommen – du er nå på Vaset!
Generelt
Leveransebeskrivelse ved komplett nøkkelferdig leveranse:
• Utvendig består ytterveggene av 22 mm tett låvekledning i mix bredder 5”/6”/7”. Kledningen er grunnet + ett mellomstrøk fra leverandør i farge 9061 Jernvitrol fra Jotun.
• Torv på tak.
• Takrenner m/nedløp, sort.
• Vinduer med 2-lags superenergi, farge grå S 7500-N
• Ytterdør med vindu, farge grå S 7500-N
• Boddør uten vindu, farge grå S 7500-N
• Gulv: 3-stavs eikeparkett inkl. parkettunderlag
• Bad: Fliser 30×60 cm, farge grå/Antrasite.
• Vindfang: Fliser 30×60 cm, farge grå/Antrasite.
• Innvendig dører: Scanflex Sindre i farge S 7500-N
• 13 mm stående sprekkpanel på alle innvendige vegger, beiset i farge Skigardgrå fra produsent.
• 13×120 mm sprekkpanel i himling, beiset i farge Skigardsgrå fra produsent.
• Listverk (i glatt standard) samt gerikter og foringer i vinduer og dører beiset i farge Skigardsgrå fra produsent.
• Dragere i stue, beiset i farge som vegg/himling.
• Kjøkken: I leveransen inngår kjøkken inkl. hvitevarer iht kjøkkentegninger.
Elektro installasjoner og utstyr
Elektrikerarbeid med utstyr iht. standard elektrikeroppsett. I utstyrsoversikt kan nevnes:
• Inntaksskap og kabel mellom inntak og sikringsskap
• Komplett sikringskap m/overbelastningsvern, jordfeilautomater og overspenningsvern
• Spotbelysning m bryter i VF og bad
• Varmekabler med termostat og føler i vindfang og bad
• Strømforsyning til seriekoblet røkvarslere m/back up batteri
• Utelamper, taklamper, panelovner, stikkontakter, komfyrvakt
Rørlegger / innvendig sanitær:
Rørleggerarbeid med utstyr iht. standard rørleggeroppsett. I utstyrsoversikt kan nevnes:
• Bunnledninger (rør som ligger i betongplate fra ringmur fram til toalett, sluker osv)
• Frostfri utekran
• Dusjhjørne med dusjgarnityr
• UNIDRAIN gulvsluk
• Vegghengt WC med innebygd sisterne
• Varmtvannsbereder 200 liter
• Ett-greps blandebatterier på kjøkken og bad
• Baderomsinnredning med skuffer og heldekkende servantplate i porselen
Murer, flis, pipe og ildsted
Leveranse og arbeid iht standard oppsett, som:
• Peisovn type Origo fra Nordpeis, sort
• Stålpipe, sort
• Gulv i vindfang og innvendig bod med gulvfliser 30x60 fliser, grå/Antrasite
• Bad/vask med gulvfliser 30x60, grå/Antrasite
DIVERSE:
• Ansvar for byggesøknadsprosessen
• Utførelse og leveranse i henhold til dagens tekniske krav
• Garanti basert på Norsk Standard 3425
Det presiseres at følgende ikke er med i vår leveranse i denne omgang:
• garderobe, senger etc.
• diverse avgifter (kommunale byggesaksgebyr, kostnader for korrekt innmåling/plassering av hytta i terrenget, byggestrøm og renovasjon under byggeperioden)
I tillegg til kjøpesum så kommer anleggsbidrag og andre kostnader ifb med oppføring av hytta. Egen oversikt fremgår av salgsprospekt.
Prisen er basert på tomteverdi kr. 900.000,-
og verdi grunnarbeid kr. 610.000,– for 2024
Det tas forbehold om endelig godkjenning fra kommunen.
Det tas forbehold om prisendringer.
Salgsoppgaven beskriver vesentlig og lovpålagt informasjon om eiendommen
Se komplett salgsoppgaveNærområdet
Tindehytter AS
Annonsene kan være mangelfulle i forhold til lovpålagt opplysningsplikt. Før bindende avtale inngås oppfordres interessenter til å innhente komplett informasjon fra meglerforetaket, selger eller utleier.























