Bildegalleri

Lilliann Tronshaug v/Nordvik har gleden av å presentere denne lekre 3-roms hjørneleiligheten i Trelastgata 27!
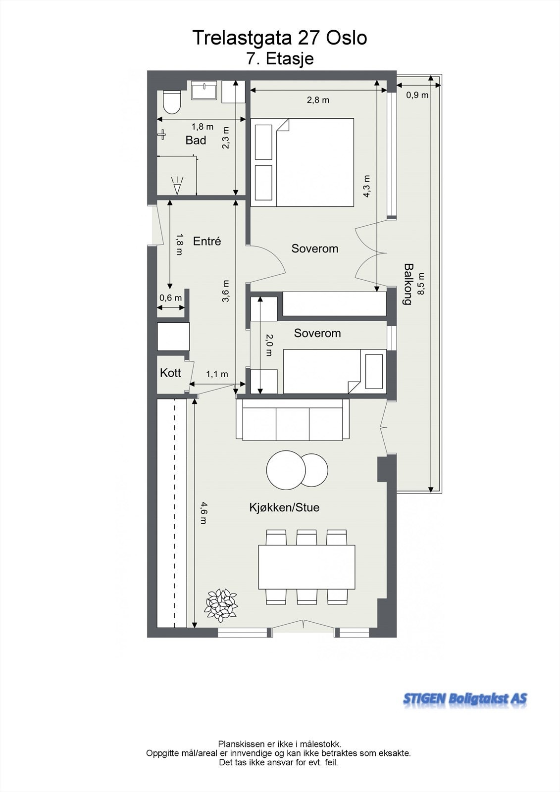
Stilren og moderne 3-roms hjørneleilighet m/balkong og heis. V.vann & fyring inkl. Felles takterrasse med panoramautsikt
Nøkkelinfo
- Boligtype
- Leilighet
- Eieform
- Eier (Selveier)
- Soverom
- 2
- Primærrom
- 55 m²
- Bruksareal
- 55 m²
- Etasje
- 7
- Byggeår
- 2016
- Energimerking
- C - Mørkegrønn
- Rom
- 3
- Tomteareal
- 340 m² (eiet)
Fasiliteter
Om boligen
Her har du mulighet til å sikre deg enn 3-roms i Oslos mest spennende boområde!
- Urbant, nært sjøen og alle servicetilbud!
- God standard, med kun TG1
- Heis
- To boder
- Gode lysforhold
- Balkong på 8 m²
- Fjernvarme og varmtvann inkl.
- Attraktiv for utleie
- Felles takterrasse med 360 graders utsikt over hele Oslo og sol fra morgen
Salgsoppgaven beskriver vesentlig og lovpålagt informasjon om eiendommen
Se komplett salgsoppgaveNyttige lenker
Nærområdet
Nordvik Torshov
Prisstatistikk
Trelastgata 27
på annonsen
prisantydning per kvadratmeter
Prisfordeling
Pris per m² ligger 14 000 kr over snittet for leiligheter i Gamle Oslo.
Grafen viser antall leiligheter solgt i Gamle Oslo siste året fordelt på pris per m² - totalt 2 108 leiligheter
Antall boliger
Kvadratmeterpris tilsvarer prisantydning pluss fellesgjeld per kvadratmeter (p-rom eller BRA-i). Prisene i grafen er avrundet til nærmeste 1000 kr.
Annonseinformasjon
| FINN-kode | 275929442 |
|---|---|
| Sist endret | 22. jan. 2023 13:24 |
| Referanse | NOP29.22281 |
Annonsene kan være mangelfulle i forhold til lovpålagt opplysningsplikt. Før bindende avtale inngås oppfordres interessenter til å innhente komplett informasjon fra meglerforetaket, selger eller utleier.

























































