Bildegalleri

Søre Fjellsnaret | Prosjektert nøkkelferdig hytte 4 sov. øverst i feltet med vidda som nabo. Langrenn rett utenfor døren
- Omkostninger
- 66 000 kr
- Totalpris
- 7 782 000 kr
Nøkkelinfo
- Beliggenhet
- På fjellet
- Boligtype
- Hytte
- Eieform
- Eier (Selveier)
- Internt bruksareal
- 114 m² (BRA-i)
- Bruksareal
- 154 m²
- Innglasset balkong
- 39 m² (BRA-b)
- Tomt
- Eiet
- Byggeår
- 2025
- Soverom
- 4
Fasiliteter
Om eiendommen
Beliggenhet
Fjellsnaret har en helt unik beliggenhet, på grensen til naturvernområder i bakkant og med Hardangervidda som nabo. Fra Fjellsnaret har man et fantastisk utgangspunkt for mange flotte turer på fjellet, enten korte dagsturer eller lengre og mer krevende turer på vidda.
Adkomst/Tomteforhold
Følg Fylkesvei 40 gjennom Uvdal til du får Fjellsnarets velkomstskilt på høyre hånd. Avstander: Oslo 200 km, Drammen 160 km, Tønsberg 200 km, Larvik 220 km, Kongsberg 120 km, Geilo 40 km.
Generelt
Tomtene er beliggende i beltet fra 1 000 - 1 075 m.o.h. på Uvdals solside. Tomtene har flott og uhindret utsikt, fantastiske solforhold og er skånsomt plassert i vakre omgivelser med allsidige muligheter for friluftsopplevelser året rundt. Helt øverst i Søre Fjellsnaret med naturen som nærmeste nabo,
formidabel utsikt og solrikt!
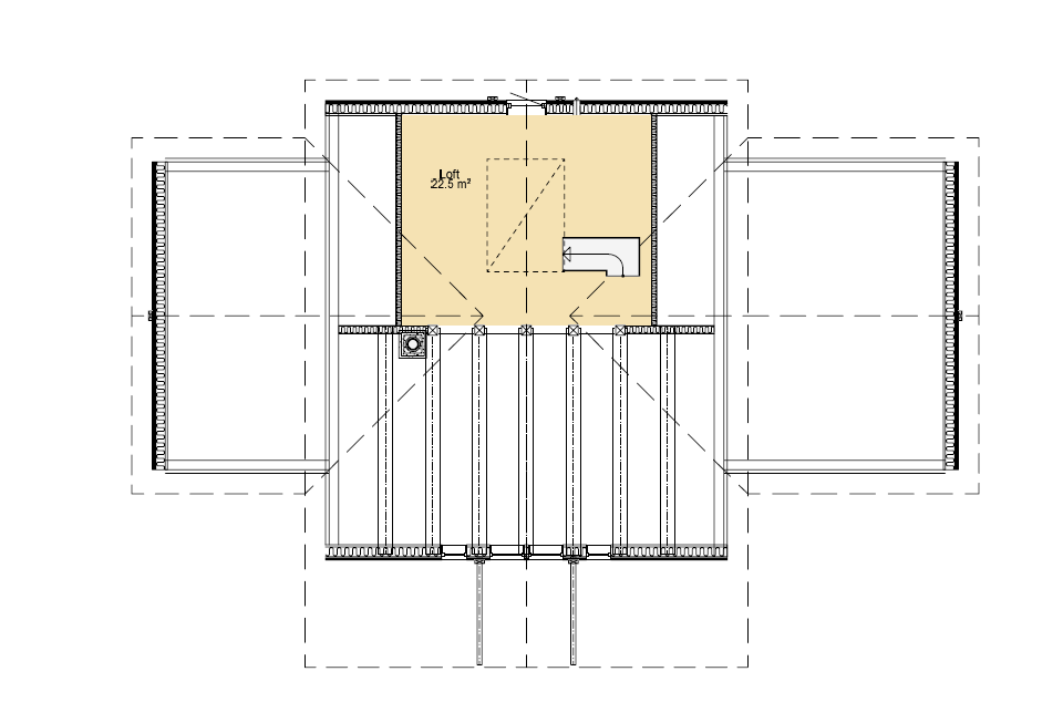
Rå 128 er Rå-familiens mest innholdsrike hytte med alt inkludert! Du får en spesiell følelse når du kommer inn i stua. Mye lys og høyt under taket. Hytta har egen TV-stue i tillegg til fire soverom og hems. Det er to bad, ett i hver soveromsavdeling.
Leveransebeskrivelse
Generell utførelse
• Stående låvepanel mix bredder med stavlaftutsmykking, ubehandlet, 20 cm isolasjon i yttervegg.
• Torv på tak
• Forblendet pipe over tak med steinplater.
• Takstige og snøfangere der det er krav.
• Vinduer iht. tegning. 2-lag energiglass, i valgfri NCS kode, likt inne/ute Vinduer med gjennomgående sprosser.
• Takrenner i sort stål.
• Tinde ytterdør m/vindu, malt i valgfri NCS kode
• Eventuell sportsbod / utebod har Tinde boddør u/vindu, malt i valgfri NCS kode
• Terrasse leveres der det er vist på tegninger uten rekkverk.
• Isolasjon 25 cm i tak, 20 cm yttervegg og 10 cm i innervegger.
• Flytende gulv med 3-stavs eikeparkett.
• Innvendige furupanel fra Moelven: 13 mm Sprekkpanel på vegger og himling, beiset i en av Tinde sine std. farger
• Glatt standard listverk, beiset i en av Tinde sine std. farger
• Furu 3-speils innerdører, malt i valgfri NCS kode
• For hytter som leveres med hems/ loft er det inkludert trapp beiset i en av Tinde sine std. farger
• For hytter med badstue leveres benk i gran ubehandlet.
• Kjøkken fra Aubo Kjøkken av typen Unik NCS S 3502-Y, med laminat benkeplate og Slimline kjøkkenventilator (hvitevarer følger ikke med).
Rørlegger/innvendig sanitær
Rørleggerarbeid med utstyr iht. standard rørleggeroppsett. I utstyrsoversikt kan nevnes:
• Bunnledninger (rør som ligger i betongplate innenfor ringmur fram til toalett, sluker osv.).
• Rette slagdører i dusjnisje evnt. Dusjnisjedør (iht. tegning) med dusjgarnityr.
• Vegghengt toalett med innebygd sisterne.
• Unidrainsluk på bad.
• Baderomsinnredning m/skuffer, porselensvask og speil.
• Innredning med vask og speilskap leveres det det er separat WC rom.
• Varmtvannsbereder 200 liter.
• 1-greps blandebatterier på kjøkken, bad og evnt. andre våtrom.
• Opplegg for tilkobling av kjøkkenbenk m/ 1-greps benkebatteri med høy tut, samt opplegg for tilkobling av oppvaskmaskin.
• Lekkasjesikring/vannstoppeventil.
Murer, Flis, pipe og ildsted
• Peisovn fra Nordpeis med sideglass og med glassplate på gulv montert på sort stålpipe.
• Flislagt gulv i vindfang med 30x60cm flis.
• Flislagt gulv på bad med 30 x 60 fliser. Ved eget WC-rom og badstue leveres det også 30x60 cm flis.
• Flislagte vegger på bad med 30x60 cm flis.
• Har hytta eget vaskerom, innvendig bod eller sportsbod leveres det med 30x30 cm flis.
Elektroinstallasjoner og utstyr
Elektrikerarbeid med utstyr iht. standard elektrikeroppsett. I utstyrsoversikt kan nevnes:
• Inntaksskap og kabel mellom inntak og sikringsskap.
• Sikringsskap m/overbelastningsvern, jordfeilautomater og overspenningsvern.
• EL-punkter (iht. NEK 400).
• Varmekabler med termostat og føler i vindfang og våtrom.
• Strømforsyning til seriekoblet røkvarslere m/backup batteri.
• Astrour-styrte utelamper.
• Downlights leveres i vindfang og bad. Om hytta har WC og gang i tillegg leveres det også downlights her.
• Taklamper leveres i soverom. For de hyttene som har vaskerom og bod, leveres det taklamper her.
• Panelovner, stikkontakter, komfyrvakt og badstuovn leveres i tråd med tegning.
Prisen er for ferdig oppsatt hytte inkl. tomt og grunnarbeid. Tomteverdi fra kr 2 600 000,- Verdi grunnarbeid estimert kr 600 000,-
Prisene er beregnet med SSB sin sist kjente indeks og vil bli justert til enhver tids gjeldende indeks.
For pris, avgifter og div. kostnader - se https://www.tindehytter.no/hyttefelt/fjellsnaret-hyttegrend
Det tas forbehold om endelig godkjenning fra kommunen.
Salgsoppgaven beskriver vesentlig og lovpålagt informasjon om eiendommen
Se komplett salgsoppgaveNærområdet
Tindehytter AS
Annonsene kan være mangelfulle i forhold til lovpålagt opplysningsplikt. Før bindende avtale inngås oppfordres interessenter til å innhente komplett informasjon fra meglerforetaket, selger eller utleier.




































