Bildegalleri

Velkommen til Stakkstøvegen 48 på Beitostølen
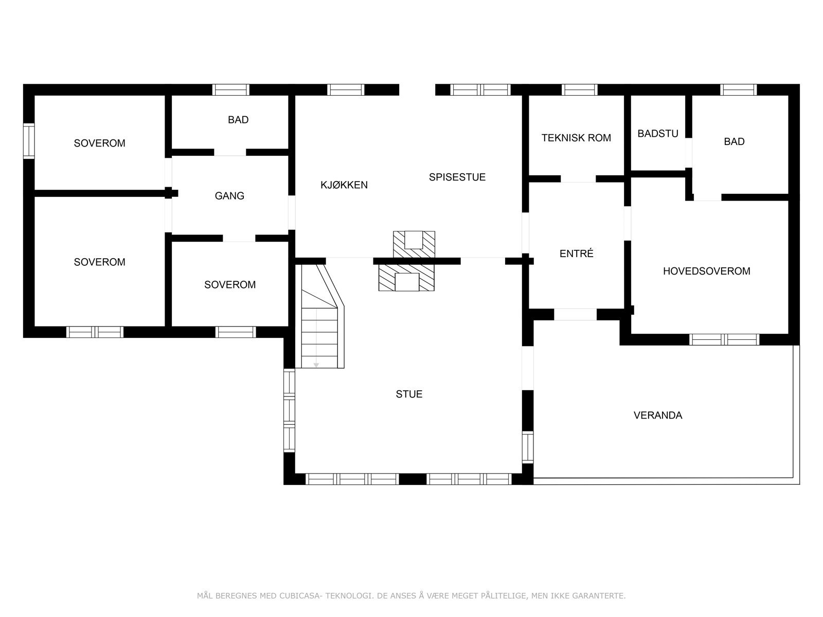
Trivelig hytte med flott beliggenhet i et populært hytteområde - 4 soverom, 2 bad - Vakkert turområde - Nydelig utsikt
- Omkostninger
- 160 370 kr
- Totalpris
- 5 960 370 kr
- Kommunale avg.
- 12 278 kr per år
Nøkkelinfo
- Beliggenhet
- På fjellet
- Boligtype
- Hytte
- Eieform
- Eier (Selveier)
- Primærrom
- 128 m²
- Bruksareal
- 133 m²
- Tomteareal
- 1 544 m² (eiet)
- Byggeår
- 1997
- Soverom
- 4
- Rom
- 5
- Energimerking
- E - Oransje
Fasiliteter
Om boligen
Stakkstøvegen 48 ligger fint til med flott utsikt - Herfra ser du Bitihorn, Mugnetinden, Slettefjell med Raudalen Alpin og hyttefelt, videre utover Øyangen. Det er et rikt utgangspunkt til flere turvalg sommer som vinter fra eiendommen eller korte kjøreturer unna. Skiløyper i nærheten og løypenettet har et bredt utvalg. En kort kjøretur ned til sentrum ligger alpinbakken. Gangfelt går på nedsiden av eiendommen og følger helt ned til sentrum. Eiendommen ligger på ca. 1000 moh.
- Hytta er satt opp i 1997 og er modell fra Røroshytta i maskinlaftet tømmer
- Hytta er vedlikeholdt opp gjennom årene, men vi gjør også oppmerksom på noen avvik som beskrevet i tilstandsrapport
- Stue med gruepeis
- Spisestue og kjøkken i åpen løsning
- 4 soverom
- 2 bad
Megler Marit Wangensten-Mo presenterer denne eiendommen.
Velkommen
Salgsoppgaven beskriver vesentlig og lovpålagt informasjon om eiendommen
Se komplett salgsoppgaveNyttige lenker
Nærområdet

PrivatMegleren Valdres
Annonseinformasjon
| FINN-kode | 275670015 |
|---|---|
| Sist endret | 13. okt. 2022 14:34 |
| Referanse | 71220215 |
Annonsene kan være mangelfulle i forhold til lovpålagt opplysningsplikt. Før bindende avtale inngås oppfordres interessenter til å innhente komplett informasjon fra meglerforetaket, selger eller utleier.







































