Bildegalleri

Velkommen til Vardefjellvegen 41B
Inaktiv
Høgevarde Fjellpark i Hallingdal
Nyere topp/hjørneleilighet o/2plan med storslagen utsikt. Peis. P-plass. Unike ski, sykkel og langrennsforhold
Prisantydning6 900 000 kr
- Omkostninger
- 183 142 kr
- Totalpris
- 7 083 142 kr
- Felleskost/mnd.
- 4 080 kr
Nøkkelinfo
- Beliggenhet
- På fjellet
- Boligtype
- Leilighet
- Eieform
- Eier (Selveier)
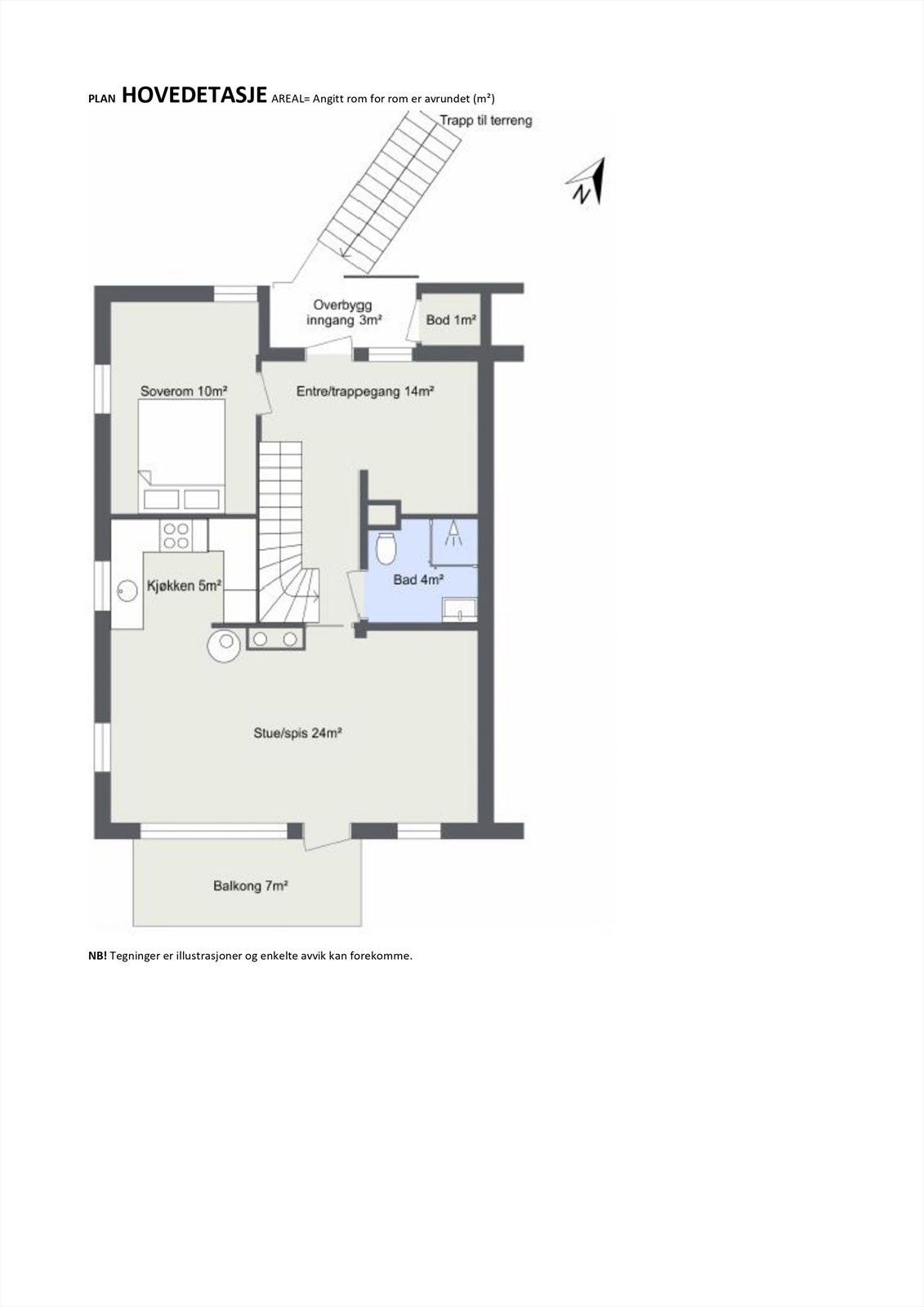
- Primærrom
- 113 m²
- Bruksareal
- 123 m²
- Tomt
- Eiet
- Byggeår
- 2022
- Soverom
- 4
- Rom
- 6
- Energimerking
- A - Gul
- Overtakelse
- Overtakelse skjer etter avtale med selger. Før boligen overleveres kjøper, skal fullt oppgjør og omkostninger være mottatt på meglers klientkonto.
Fasiliteter
Innlagt vann
Alpinanlegg
Balkong/Terrasse
Barnevennlig
Bilvei frem
Bredbåndstilknytning
Garasje/P-plass
Kabel-TV
Peis/Ildsted
Rolig
Utsikt
Bademulighet
Fiskemulighet
Innlagt strøm
Turterreng
Visning
Mulighet for visning hele høstferien. Alle våre visninger har påmelding. På denne måten sikrer vi at megler har god oversikt og tid til å imøtekomme alle interessenter. Meld deg på visning ved å trykke på lenken visningspåmelding. Passer ikke tidspunktet, send megler en e-post og avtal tid for privatvisning.
Husk å lese komplett salgsoppgave før visning. Bestill komplett, utskriftsvennlig salgsoppgave.
VisningspåmeldingOm boligen
- Nyoppført topp/ hjørneleilighet fra 2022 med en lekker og tiltalende standard
- Eksklusiv standard med gode og påkostede løsninger og detaljer
- Stilsikker nordisk arkitektur bygget i massivtre
- Fantastisk beliggende på høyfjellet ca. 827 moh. i naturskjønne omgivelser
- Leiligheten ligger solrikt til på et høyedrag med storslagen utsikt
- Arealeffektiv planløsning med hele 4 soverom, 2 bad, stue og tv-stue
- Vannbåren gulvvarme fra energibørnn og varmepumpe. Balansert ventilasjon med varmegjenvinning
- Hovedsoverom med walk-in garderobe
- P-plass med el-bil lader
- Store vindusflater som gir rikelig med lys
- Peisovn i stuen
- Ski inn/ut om vinteren og sykkel inn/ut i sommerhalvåret
- Solrik balkong på ca. 7 kvm med panoramautsikt over fjellheimen
NB: Knappen for å vise hele beskrivelsen har kun en visuell effekt.
NB: Knappen for å vise hele beskrivelsen har kun en visuell effekt.
Salgsoppgaven beskriver vesentlig og lovpålagt informasjon om eiendommen
Se komplett salgsoppgaveNyttige lenker
Nærområdet
Nordvik Majorstuen
Annonseinformasjon
| FINN-kode | 275077237 |
|---|---|
| Sist endret | 31. okt. 2022 11:34 |
| Referanse | NOP8.22432 |
Annonsene kan være mangelfulle i forhold til lovpålagt opplysningsplikt. Før bindende avtale inngås oppfordres interessenter til å innhente komplett informasjon fra meglerforetaket, selger eller utleier.























































