Bildegalleri

Velkommen til Fjellnest - ALL IN! Her bygg F som ligger skjermet til i det indre gårdsrom.
Inaktiv
FJELLNEST - ALL IN
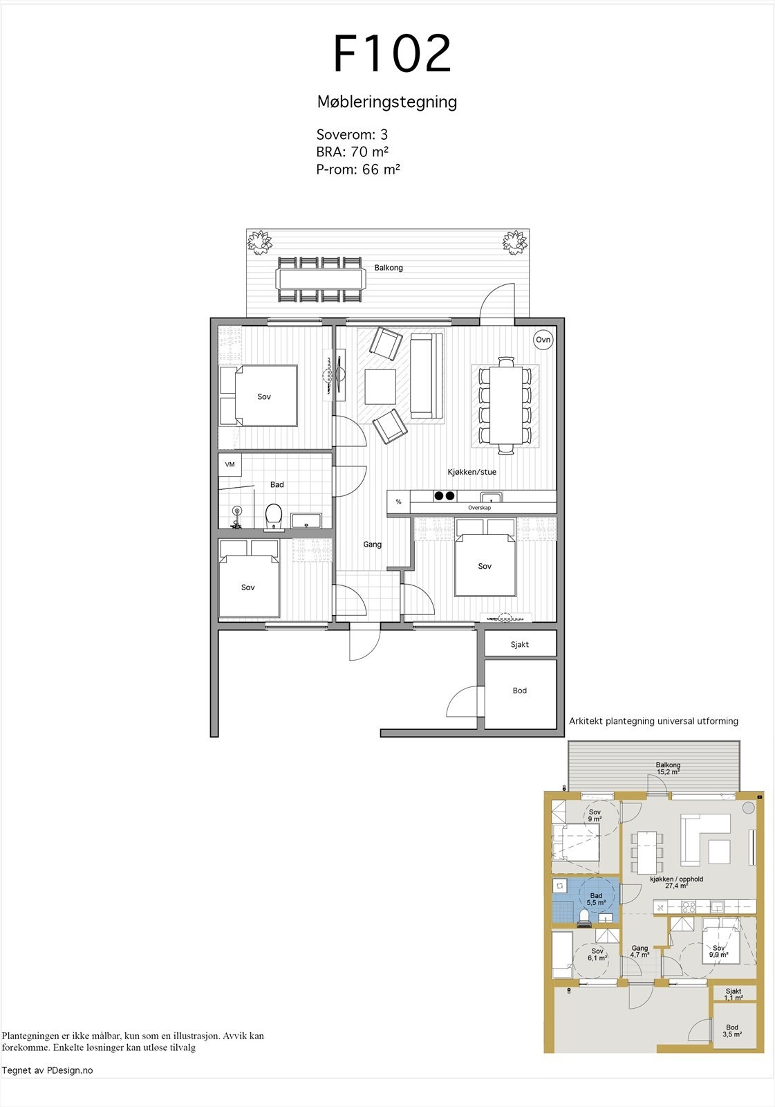
Moderne 4-roms leilighet på 71 kvm. 3 sov. Gasspeis. Heis. Garasje. Balkong på 15 m² og utsikt mot de flotte fjellene
Prisantydning5 000 000 kr
- Omkostninger
- 8 062 kr
- Totalpris
- 5 008 062 kr
Nøkkelinfo
- Beliggenhet
- På fjellet
- Boligtype
- Leilighet
- Eieform
- Eier (Selveier)
- Bruksareal
- 71 m²
- Tomt
- Eiet
- Soverom
- 3
- Rom
- 4
Fasiliteter
Innlagt vann
Alpinanlegg
Balkong/Terrasse
Barnevennlig
Bilvei frem
Bredbåndstilknytning
Garasje/P-plass
Peis/Ildsted
Rolig
Utsikt
Vaktmester-/vektertjeneste
Bademulighet
Fiskemulighet
Innlagt strøm
Offentlig vann/kloakk
Turterreng
Visning
Husk å meld deg på visning i forkant. Kontakt megler privatvisning.
Husk å lese komplett salgsoppgave før visning. Bestill komplett, utskriftsvennlig salgsoppgave.
VisningspåmeldingOm boligen
Gjennomgående og tiltalende og 4-roms hjørneleilighet på 71 m² med 3 soverom. Store vindusflater og mye naturlig lys inn i boligen. Gjennomgående god standard med smakfulle farge- og materialvalg. I denne leiligheten har man blant annet 3 gode soverom og lekkert bad. Stor stue med gasspeis og kjøkken/spisestue i åpen løsning. Meget velfungerende og god planløsning.
Fantastisk beliggenhet ved foten av alpinanlegget med gangavstand til Hemsedal sentrum, restauranter/ butikker, langrennsløyper/ rulleskiløyper, sykkelløyper, mm. I umiddelbar nærhet har man et nyere hotell (Fyri) med spa, bar og restauranter.
Se mer og laset ned prospekt på fjellnest.no
Fantastisk beliggenhet ved foten av alpinanlegget med gangavstand til Hemsedal sentrum, restauranter/ butikker, langrennsløyper/ rulleskiløyper, sykkelløyper, mm. I umiddelbar nærhet har man et nyere hotell (Fyri) med spa, bar og restauranter.
Se mer og laset ned prospekt på fjellnest.no
- Ingen utleieplikt
- Antatt ferdigstillelse 2023
- Besøk boligvelger på fjellnest.no
NB: Knappen for å vise hele beskrivelsen har kun en visuell effekt.
NB: Knappen for å vise hele beskrivelsen har kun en visuell effekt.
Salgsoppgaven beskriver vesentlig og lovpålagt informasjon om eiendommen
Se komplett salgsoppgaveNyttige lenker
Nærområdet
Nordvik Frogner
Annonseinformasjon
| FINN-kode | 274938298 |
|---|---|
| Sist endret | 18. nov. 2022 14:28 |
| Referanse | NOP14.22524 |
Annonsene kan være mangelfulle i forhold til lovpålagt opplysningsplikt. Før bindende avtale inngås oppfordres interessenter til å innhente komplett informasjon fra meglerforetaket, selger eller utleier.

















