Bildegalleri

Michael Marveux har gleden av å presentere Skedsmogata 24C, en helt ny 3-roms leilighet med høy standard
Ny (2022) strøken 3-roms selveier med stor solrik balkong - Store vindusflater - Nybygggaranti - Garasje m/ el*
Nøkkelinfo
- Boligtype
- Leilighet
- Eieform
- Eier (Selveier)
- Soverom
- 2
- Primærrom
- 63 m²
- Bruksareal
- 63 m²
- Etasje
- 3
- Byggeår
- 2022
- Rom
- 3
- Tomteareal
- 4 327 m² (eiet)
Fasiliteter
Om boligen
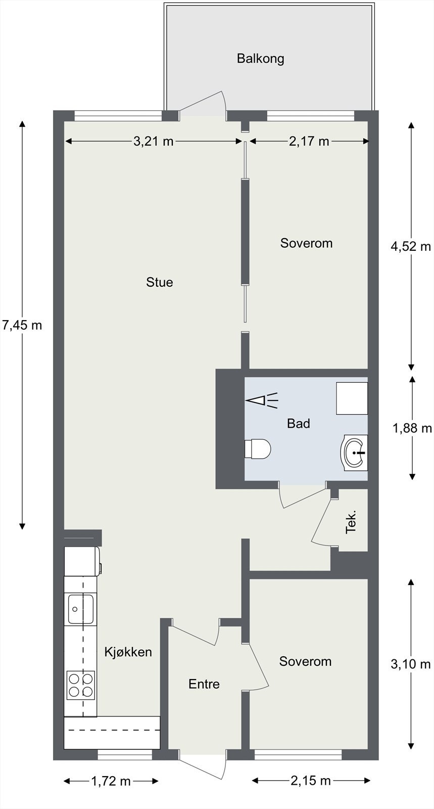
En ny, delikat og attraktiv 3-roms leilighet med fantastisk beliggenhet svært sentralt på Ensjø. Leiligheten er gjennomgående med store vinduflater, godt utnyttet HTH kjøkken, lekkert bad, lys og luftig stue, to gode soverom og en solrik balkong. Leiligheten ligger i et representativt bygg med flotte fellesarealer og store felles takterrasser.
Kort fortalt:
- Felles varmtvann.
- Vannbåren gulvvarme i oppholdsrom tilknyttet felles varmeanlegg.
- Mulighet for kjøp av garasje i tillegg*
- Fantastiske takterrasser
- Balansert ventilasjon
Velkommen!
Salgsoppgaven beskriver vesentlig og lovpålagt informasjon om eiendommen
Se komplett salgsoppgaveNyttige lenker
Nærområdet
DNB Eiendom AS
Prisstatistikk
Skedsmogata 24C
på annonsen
prisantydning per kvadratmeter
Prisfordeling
Pris per m² ligger 13 524 kr under snittet for leiligheter i Gamle Oslo.
Grafen viser antall leiligheter solgt i Gamle Oslo siste året fordelt på pris per m² - totalt 2 109 leiligheter
Antall boliger
Kvadratmeterpris tilsvarer prisantydning pluss fellesgjeld per kvadratmeter (p-rom eller BRA-i). Prisene i grafen er avrundet til nærmeste 1000 kr.
Annonseinformasjon
| FINN-kode | 274704028 |
|---|---|
| Sist endret | 16. nov. 2022 13:43 |
| Referanse | 412220186 |
Annonsene kan være mangelfulle i forhold til lovpålagt opplysningsplikt. Før bindende avtale inngås oppfordres interessenter til å innhente komplett informasjon fra meglerforetaket, selger eller utleier.


































