Bildegalleri

Velkommen til spektakulære Løyning og Harastien 41 - Høyt og fritt beliggende familiehytte med panoramautsikt mot fjellandskapet og Løyning/Seljestad.
Solgt
Løyning/Seljestad
Flott utsiktshytte med stor, solrik terrasse og panorama mot fjellene - Kort vei til skistadion og Røldal skisenter
Prisantydning2 950 000 kr
- Omkostninger
- 86 622 kr
- Totalpris
- 3 036 622 kr
- Kommunale avg.
- 5 187 kr per år
Nøkkelinfo
- Beliggenhet
- På fjellet
- Boligtype
- Hytte
- Eieform
- Eier (Selveier)
- Primærrom
- 83 m²
- Bruksareal
- 92 m²
- Tomteareal
- 905 m² (eiet)
- Byggeår
- 2001
- Soverom
- 3
- Rom
- 5
- Overtakelse
- Overtakelse av eiendommen etter nærmere avtale mellom partene.
Fasiliteter
Innlagt vann
Alpinanlegg
Balkong/Terrasse
Barnevennlig
Peis/Ildsted
Rolig
Utsikt
Bademulighet
Fiskemulighet
Innlagt strøm
Turterreng
Om boligen
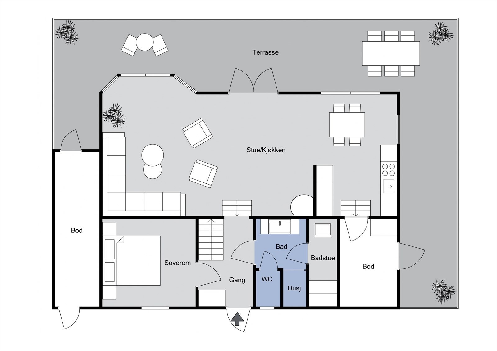
Velkommen til spektakulære Løyning og Harastien 41 - Høyt og fritt beliggende familiehytte med panoramautsikt mot fjellandskapet og Løyning/Seljestad. Eiendommen er svært solrik, og det er oppført terrasseplattinger rundt hele hytta hvor dere kan nyte fjellufta, sola og den magiske stjernehimmelen på klare vinterkvelder. Hytta har en praktisk og spennende planløsning med halvetasjer og loft. 3 soverom og 2 stuer dekker de fleste familiers behov for sengeplasser og oppholdsrom. Fantastiske opplevelser venter dere like utenfor hytteveggen. Om vinteren kan en spenne på skiene og gå tur med Løyningsvatnet og fjellene ovenfor som turmål. Korlevoll skistadion og Røldal skisenter ligger få minutter unna med bil. Videre er det kort kjørevei til Odda, Trolltunga, Folgefonna og Haukelifjell.
NB: Knappen for å vise hele beskrivelsen har kun en visuell effekt.
NB: Knappen for å vise hele beskrivelsen har kun en visuell effekt.
Salgsoppgaven beskriver vesentlig og lovpålagt informasjon om eiendommen
Se komplett salgsoppgaveNyttige lenker
Nærområdet
Meglerhuset Rele Haugesund AS
Det komplette meglerhuset
Annonseinformasjon
| FINN-kode | 274672466 |
|---|---|
| Sist endret | 30. jan. 2023 18:44 |
| Referanse | 1-0318/22 |
Annonsene kan være mangelfulle i forhold til lovpålagt opplysningsplikt. Før bindende avtale inngås oppfordres interessenter til å innhente komplett informasjon fra meglerforetaket, selger eller utleier.
















































