Bildegalleri

FAGERÅSEN - Moderne hytte over to plan. Innholdsrik planløsning og flott beliggenhet.
- Omkostninger
- 170 642 kr
- Totalpris
- 6 520 642 kr
Nøkkelinfo
- Beliggenhet
- På fjellet
- Boligtype
- Annet fritid
- Eieform
- Eier (Selveier)
- Primærrom
- 112 m²
- Bruksareal
- 119 m²
- Tomteareal
- 880 m² (eiet)
- Byggeår
- 2017
- Soverom
- 4
- Rom
- 5
Fasiliteter
Om eiendommen
Adresse
Fageråsen 922A
2420 Trysil
Matrikkel
Gnr. 33 bnr. 1054 i Trysil kommune
Beliggenhet, adkomst
Flott hytte med beliggenhet i Fageråsen.
Fageråsen er nordsiden av Trysilfjellet, hvor du får den ekte høyfjellsfølelsen! Her har du et enormt utvalgt alpinbakker i Norges største alpinanlegg, lange skiløyper til langrenn og et godt servicetilbud med en rekke spennende butikker, restauranter, kafe og mer.
Som Norges største alpinanlegg har Trysilfjellet ca 68 nedfarter og 31 skiheiser, i flere ulike vanskelighetsgrader. Anlegget har tilrettelagte områder for både store og små, i tillegg til mange spennende arrangementer gjennom året. Aktivitetstilbud finner man hele året, ikke bare om vinteren.
Det er mange flotte turmuligheter til fots, mens på sørsiden av fjellet (kun en kort biltur unna); finner du blant annet klatrepark, golfbane og terrengsykkelløyper.
Fageråsen passer utmerket for barnefamilier, spesielt de med stor interesse for vintersport og nærhet til skianlegget.
Type, eierform og byggeår
Fritidseiendom Selveier, oppført i 2017
Flott hytte med nydelig fasade, hvor du har uteområde med terrasseplatting. Der kan du nyte morgenkaffen i frisk fjelluft før man tar seg ut i skibakken.
Inne i hytta har du åpen stue/kjøkken løsning, med adkomst ut til terrasseplattingen. Her har du lyse overflater, store vinduer og plass til både sofakrok og spisestue-møbler. Videre innover i hytta finner du stilrent baderom med adkomst itl badstue, hvor du har elektronisk badstue-ovn.
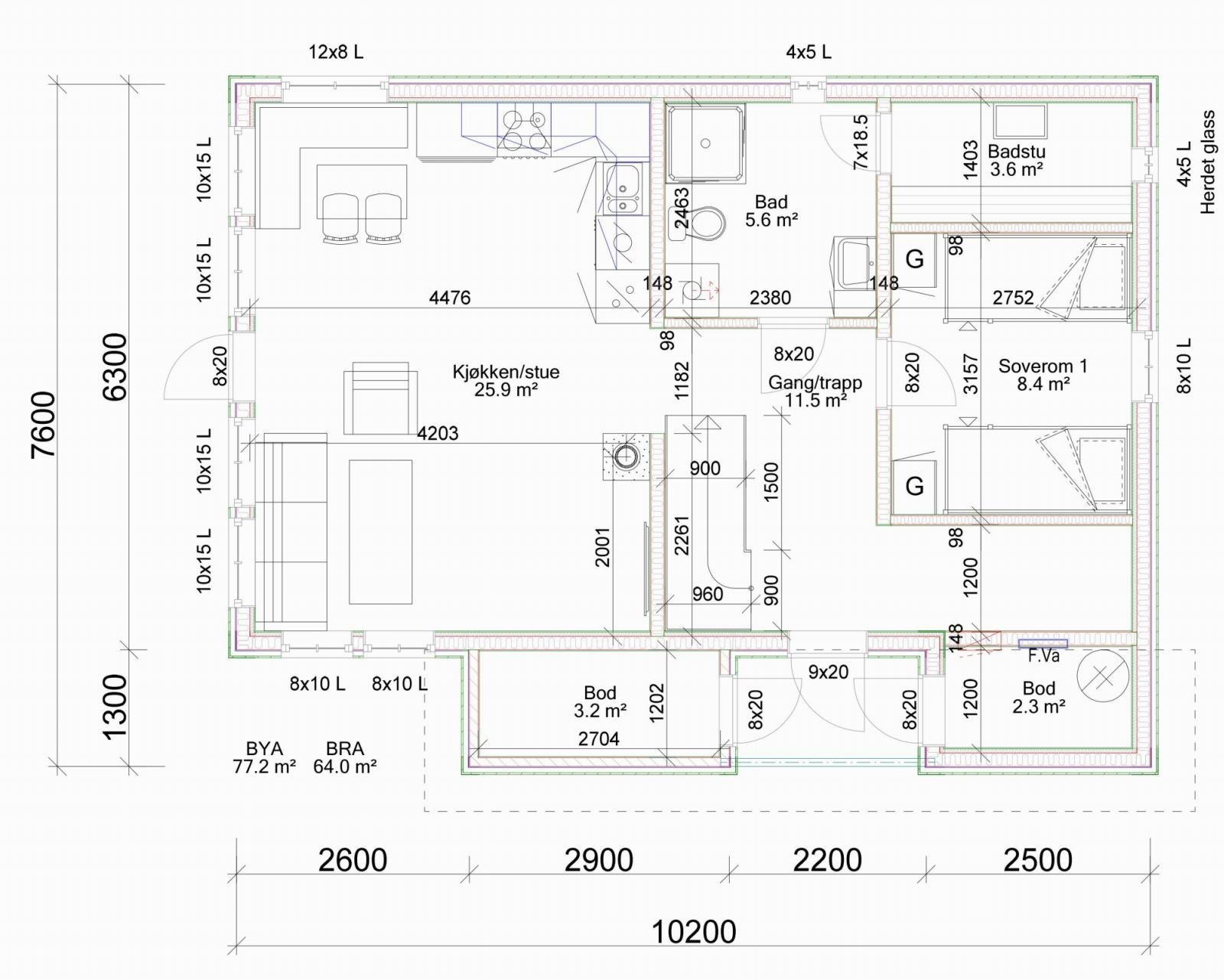
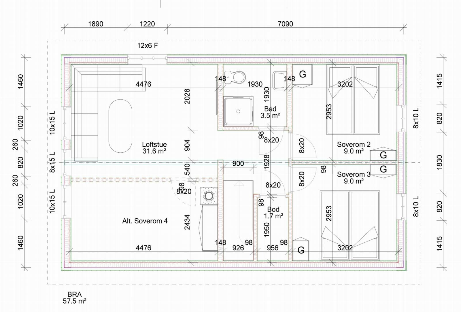
I 2. etasje har du en ekstra stue, i tillegg til bad og flere soverom.
(Se "antall rom" nedenfor og plantegninger, for oversikt over samtlige rom).
Bygninger og byggemåte
Fritidsbolig over to etasjer.
Antall rom (evt. senger)
Oppholdsrom: 2, Soverom: 4, Antall rom: 5
FRITIDSBOLIG:
1. Etasje: Stue/kjøkken , Bad , Badstue , Gang, Hall m/trapp , Soverom, Teknisk rom , Bod
2. Etasje: Stue , Bad , Gang , Trapperom , Soverom , Soverom 2, Soverom 3, Bod
Arealer og fordeling per etasje
Primærrom: 112 kvm, Bruksareal: 119 kvm
FRITIDSBOLIG:
1. Etasje: 62 kvm BRA, 57 kvm P-ROM, 5 kvm S-ROM
2. Etasje: 57 kvm BRA, 55 kvm P-ROM, 2 kvm S-ROM
Hva som defineres som primærrom (P-ROM) eller sekundærrom (S-ROM) tar utgangspunkt i hvordan rommet er i bruk når eiendommen selges, selv om enkelte rom ikke er byggemeldt og godkjent til dagens bruk.
Møblering / utstyr
Innbo, møbler og løsøre medfølger. (Med unntak av personlige gjenstander).
Standard
Det henvises til tilstandsrapport, for oversikt over standard og tilstand.
Oppvarming
Boligoppvarming med strøm og vedfyring.
Parkering
Gruset innkjøring til fritidsboligen med parkering forflere biler.
Areal og eierform (opplysninger om evt. feste)
Areal: 880 kvm, Eierform: Eiet tomt
Tomt og hage
Gruset innkjøring og parkering for flere biler ved hytta. Sydøstvendt slakt hellende terreng med etablert flatparti ved boligen. Hovedsakelig naturtomt med stedbunden vegetasjon. Platting 1.etasje mot sydøst med adkomst fra stue og terreng. Teknisk rom og sportsbod med utvendige adkomster i tilknytning til inntrukket inngangsparti.
Vei, vann og avløp
Innkjøring fra hytteområdets private veinett. Vinterbrøytet vei til Fageråsen med bom. Gruset innkjøring til fritidsboligen.
Opplyst tilknyttet hytteområdets felles private vannanlegg.
Eiendommen er tilknyttet offentlig avløpsnett via private stikkledninger.
Reguleringsplan
Arealbruk Fritidsbebyggelse
Arealbrukstatus Nåværende
Områdenavn HC1612
Planidentifikasjon 20110200
Prisantydning
6 350 000,-
Takst / tilstandsrapport
Det foreligger tilstandsrapport for eiendommen, datert 21.09.2022.
Forsikring
Kjøper tegner egen forsikring fra overtagelse.
Boligkjøperforsikring fra Help
Det gjøres oppmerksom på at kjøper har anledning til å tegne Boligkjøperforsikring ved kjøp av denne boligen. Det er en rettshjelpsforsikring som gir trygghet og profesjonell juridisk hjelp dersom det oppdages uventede feil eller mangler ved boligen de neste fem årene. Les om denne på www.help.no og ta kontakt med oss for ytterligere informasjon.
Oppgjør
Hele kjøpesummen med omkostninger må være innbetalt og disponibel for megler på meglers klientkonto, senest på siste virkedag innen overtagelsen finner sted.
Boligselgerforsikring
Selger har tegnet boligselgerforsikring og interessenter oppfordres til å sette seg inn i selgers egenerklæring før det gis bud på eiendommen.
Arealangivelser i salgsoppgaven
Arealangivelsene er hentet fra takst (evt tilstandsrapport).
Andre opplysninger
Det er ikke innhentet særskilte opplysninger om evt pålegg fra e-verk eller brann/feievesen.
Eventuelle avstandsmålinger og tidsberegninger for reise er omtrentlig (under "Beliggenhet" og "Nærområdet").
Det henvises til prospekt for mer informasjon om eiendommen.
Interessenter anbefales å gjøre seg kjent med all tilgjengelig informasjon om eiendommen, før eventuell budgivning.
Budgivning
Alle bud skal inngis skriftlig til megler. Benytt "Gi bud"-knappen på våre annonser for å registrere ditt bud elektronisk. Dette er en enkel og sikker løsning som lar deg signere budet elektronisk ved hjelp av BankID.
Overtagelse
Avklares i forbindelse med budgivning.
Lovanvendelse
Eiendommen selges etter reglene i avhendingsloven.
Eiendommen skal overleveres kjøper i tråd med det som er avtalt. Det er viktig at kjøper setter seg grundig inn i alle salgsdokumentene, herunder salgsoppgave, tilstandsrapport og selgers egenerklæring. Kjøper anses kjent med forhold som er tydelig beskrevet i salgsdokumentene. Forhold som er beskrevet i salgsdokumentene kan ikke påberopes som mangler. Dette gjelder uavhengig av om kjøper har lest dokumentene. Alle interessenter oppfordres til å undersøke eiendommen nøye, gjerne sammen med fagkyndig før bud inngis. Kjøper som velger å kjøpe usett kan ikke gjøre gjeldende som mangel noe han burde blitt kjent med ved undersøkelsen.
Dersom det er behov for avklaringer, anbefaler vi at kjøper rådfører seg med eiendomsmegler eller en bygningssakyndig før det legges inn bud.
Hvis eiendommen ikke er i samsvar med det kjøperen må kunne forvente ut ifra alder, type og synlig tilstand, kan det være en mangel. Det samme gjelder hvis det er holdt tilbake eller gitt uriktige opplysninger om eiendommen. Dette gjelder likevel bare dersom man kan gå ut i fra at det virket inn på avtalen at opplysningen ikke ble gitt eller at feil opplysninger ikke ble rettet i tide på en tydelig måte. En bolig som har blitt brukt i en viss tid, har vanligvis blitt utsatt for slitasje og skader kan ha oppstått. Slik bruksslitasje må kjøper regne med, og det kan avdekkes enkelte forhold etter overtakelse som nødvendiggjør utbedringer. Normal slitasje og skader som nødvendiggjør utbedring, er innenfor hva kjøper må forvente og vil ikke utgjøre en mangel.
Boligen kan ha en mangel dersom det er avvik mellom opplyst og faktisk areal, forutsatt at avviket er på 2% eller mer og minimum 1 kvm.
Ved beregning av et eventuelt prisavslag eller erstatning må kjøper selv dekke tap/kostnader opptil et beløp på kr 10 000 (egenandel).
Dersom kjøper ikke er forbruker selges eiendommen som den er , og selgers ansvar er da begrenset jf. avhl. § 3-9, 1. ledd 2. pktm. Avhendingsloven § 3-3 (2) fravikes, og hvorvidt en innendørs arealsvikt karakteriseres som en mangel vurderes etter avhendingsloven § 3-8. Informasjon om kjøpers undersøkelsesplikt, herunder oppfordringen om å undersøke eiendommen nøye, gjelder også for kjøpere som ikke anses som forbrukere. Med forbrukerkjøp menes kjøp av eiendom når kjøperen er en fysisk person som ikke hovedsakelig handler som ledd i næringsvirksomhet.
Lov om hvitvasking
I henhold til lov om hvitvasking og terrorfinansiering har megler plikt til å gjennomføre kontrolltiltak ovenfor kunder. Dette innebærer å bekrefte kunders identitet på bakgrunn av fremvist gyldig legitimasjon. Videre innebærer det å få bekreftet identiteten til eventuelle reelle rettighetshavere, og å innhente opplysninger om kundeforholdets formål.
Kjøpers innbetaling skal foretas fra norsk bank/finansinstitusjon.
Selgers oppgjør vil skje til konto i norsk bank/finansinstitusjon.
Dersom megler får mistanke om brudd på hvitvaskingsreglementet i forbindelse med en eiendomshandel, og han ikke klarer å få avkreftet denne mistanke, har han plikt til å rapportere dette til Økokrim. Melding sendes Økokrim uten at partene varsles. Megler kan i enkelte tilfeller også ha plikt til å stanse gjennomføring av handelen.
Ta kontakt med megler for komplett informasjon
Nyttige lenker
Nærområdet
Advokat Jostein Morønning
Annonseinformasjon
| FINN-kode | 274657252 |
|---|---|
| Sist endret | 24. sep. 2023 15:59 |
| Referanse | 87220083 |
Annonsene kan være mangelfulle i forhold til lovpålagt opplysningsplikt. Før bindende avtale inngås oppfordres interessenter til å innhente komplett informasjon fra meglerforetaket, selger eller utleier.






































