Bildegalleri

Velkommen til Toftes gate 11A!
SOLGT! Lekker og moderne 3-roms i 4 etg. med sydvendt, solrik balkong. Heis. Varmtvann, fyring og bredbånd inkl.
Nøkkelinfo
- Boligtype
- Leilighet
- Eieform
- Eier (Selveier)
- Soverom
- 2
- Primærrom
- 59 m²
- Bruksareal
- 62 m²
- Etasje
- 4
- Byggeår
- 2010
- Energimerking
- D - Lysegrønn
- Rom
- 3
- Tomteareal
- 16 731 m² (eiet)
- Boligselgerforsikring
- Ja
Fasiliteter
Om boligen
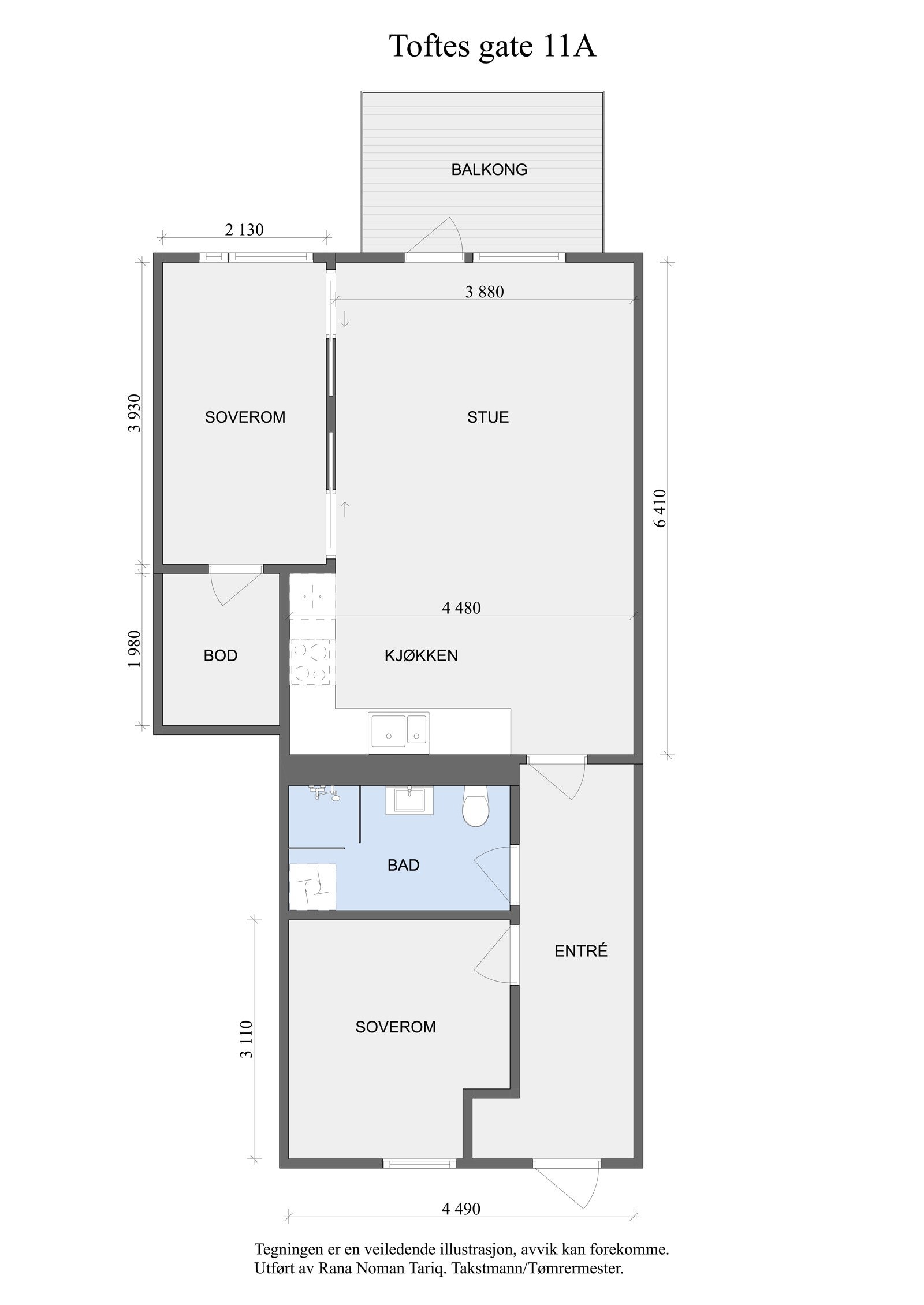
Toftes gate 11 A er en lekker 3-roms selveierleilighet med attraktiv beliggenhet på beste Grünerløkka/Ringnes park.
Leiligheten har fin beliggenhet i byggets 4. etasje, og inneholder en innbydende entré med god oppbevaringsplass, åpen stue- og kjøkkenløsning, to gode soverom, samt pent flislagt bad med opplegg for vaskemaskin. Det er enkel heisadkomst til leilighetsplan.
Noe du garantert vil sette pris på i hverdagen er den herlige balkongen. Denne er sydvendt, så her er det gode solforhold. Sameiet har også felles takterrasser.
Boligen ligger fint til med nærhet til servicetilbud, offentlig kommunikasjon og hyggelig spisesteder. Dette er en leilighet for urbane livsnytere som vil ha kort vei til kulturopplevelser, levende bymiljø og nærhet til alt man har behov for i hverdagen.
Velkommen!
Salgsoppgaven beskriver vesentlig og lovpålagt informasjon om eiendommen
Se komplett salgsoppgaveNyttige lenker
Nærområdet
Aktiv Grünerløkka
Prisstatistikk
Toftes gate 11A
på annonsen
prisantydning per kvadratmeter
Prisfordeling
Pris per m² ligger 6 000 kr under snittet for leiligheter i Grünerløkka - Sofienberg.
Grafen viser antall leiligheter solgt i Grünerløkka - Sofienberg siste året fordelt på pris per m² - totalt 2 423 leiligheter
Antall boliger
Kvadratmeterpris tilsvarer prisantydning pluss fellesgjeld per kvadratmeter (p-rom eller BRA-i). Prisene i grafen er avrundet til nærmeste 1000 kr.
Annonseinformasjon
| FINN-kode | 274568324 |
|---|---|
| Sist endret | 21. nov. 2022 14:26 |
| Referanse | 102220208 |
Annonsene kan være mangelfulle i forhold til lovpålagt opplysningsplikt. Før bindende avtale inngås oppfordres interessenter til å innhente komplett informasjon fra meglerforetaket, selger eller utleier.


































