Bildegalleri

Velkommen til Øvrestølvegen 260 i Tilseidalen - Eiendommen ligger usjenert og fint til med flott utsikt
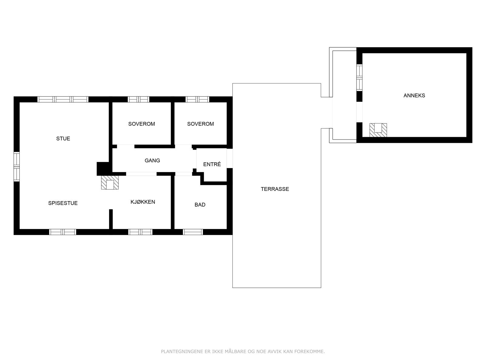
Hytte og anneks ligger fritt og fint til med stor tomt - Turmuligheter året rundt i vakre turterreng - Solcellepanel
- Omkostninger
- 46 340 kr
- Totalpris
- 1 196 340 kr
- Kommunale avg.
- 3 264 kr per år
- Formuesverdi
- 98 461 kr
Nøkkelinfo
- Beliggenhet
- På fjellet
- Boligtype
- Hytte
- Eieform
- Eier (Selveier)
- Internt bruksareal
- 54 m² (BRA-i)
- Bruksareal
- 101 m²
- Eksternt bruksareal
- 47 m² (BRA-e)
- Balkong/Terrasse
- 36 m² (TBA)
- Tomteareal
- 9 072 m² (eiet)
- Byggeår
- 1946
- Soverom
- 3
- Rom
- 4
- Energimerking
- F - Oransje
Fasiliteter
Visning
Husk å lese komplett salgsoppgave før visning. Bestill komplett, utskriftsvennlig salgsoppgave.
VisningspåmeldingOm boligen
Drømmer du om en fredelig hytteidyll i hjertet av Valdres? Øvrestølvegen 260 i vakre Tisleidalen, midt mellom Leira og Gol, tilbyr deg nettopp det! Her kan du nyte det beste av norsk natur med et fantastisk turterreng og flott utsikt. Eiendommen byr på en romslig tomt på over 9 mål, perfekt for både lek, avslapning og uforstyrret naturopplevelse.
Hytta, som opprinnelig er fra 1946, har blitt oppgradert og påbygget mellom 1983 og 1986. I tillegg finner du et nyere anneks fra 2016, som gir ekstra overnattingsmuligheter for familie og venner.
Fasiliteter som solcellepanel, vann fra egen borebrønn og Cinderella forbrenningstoalett. Ønsker du å ta med mesteparten av inventaret? Det kan avtales direkte med selger.
Ta kontakt for å avtale en privatvisning ? kanskje finner du ditt nye feriehjem her!
Salgsoppgaven beskriver vesentlig og lovpålagt informasjon om eiendommen
Se komplett salgsoppgaveNyttige lenker
Nærområdet

PrivatMegleren Valdres
Annonseinformasjon
| FINN-kode | 273907919 |
|---|---|
| Sist endret | 03. sep. 2025 14:20 |
| Referanse | 71220194 |
Annonsene kan være mangelfulle i forhold til lovpålagt opplysningsplikt. Før bindende avtale inngås oppfordres interessenter til å innhente komplett informasjon fra meglerforetaket, selger eller utleier.




























