Bildegalleri

Velkommen til Jødnvegen 16B - En lekker nyoppført hytte (2022) med attraktiv beliggenhet på Beitostølen.
Lekker nyoppført hytte (2022) med gjennomgående høy standard og suveren beliggenhet | 2 stuer | 3(4) soverom | 2 bad/wc
- Kommunale avg.
- 4 957 kr per år
Nøkkelinfo
- Beliggenhet
- På fjellet
- Boligtype
- Annet fritid
- Eieform
- Eier (Selveier)
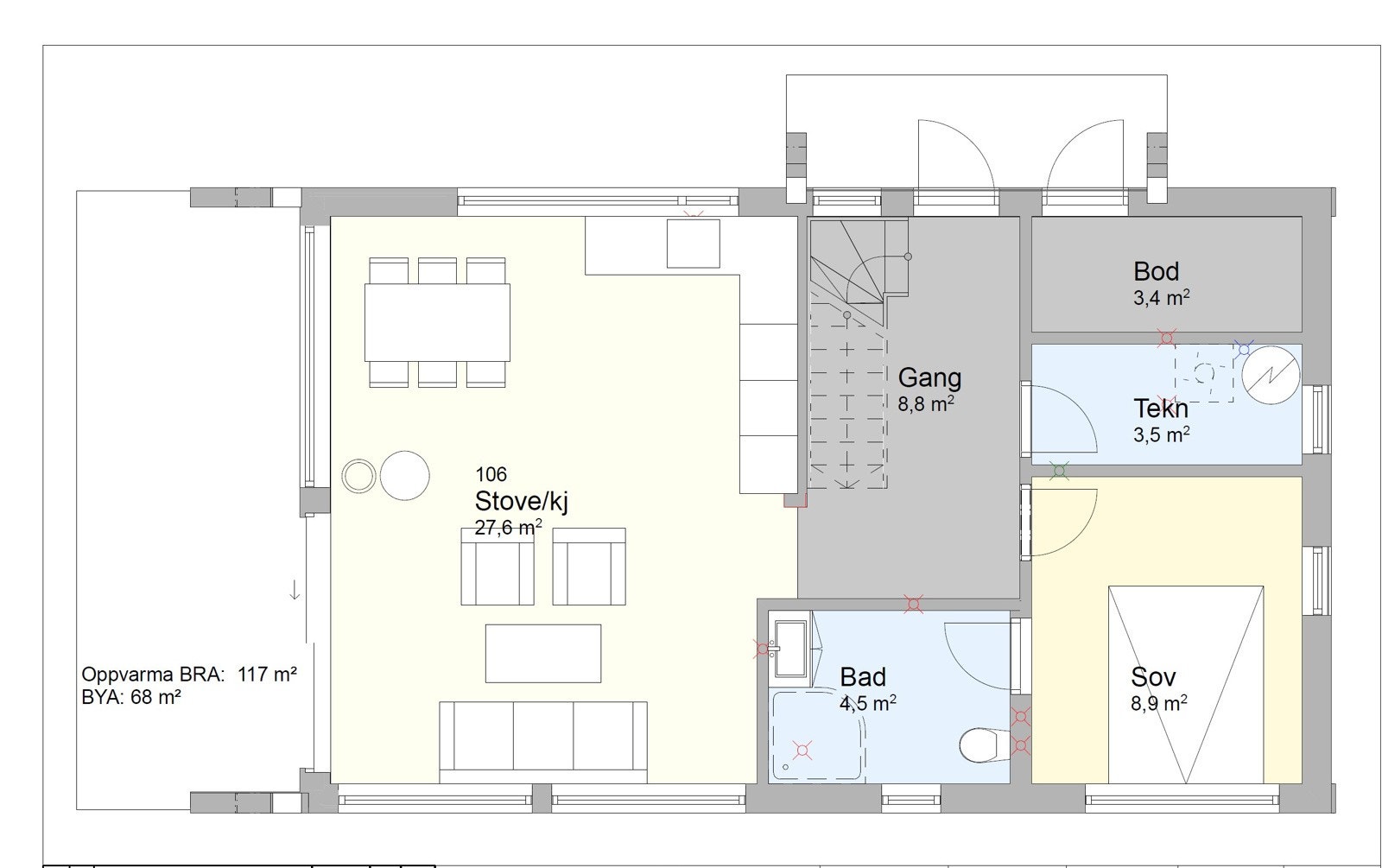
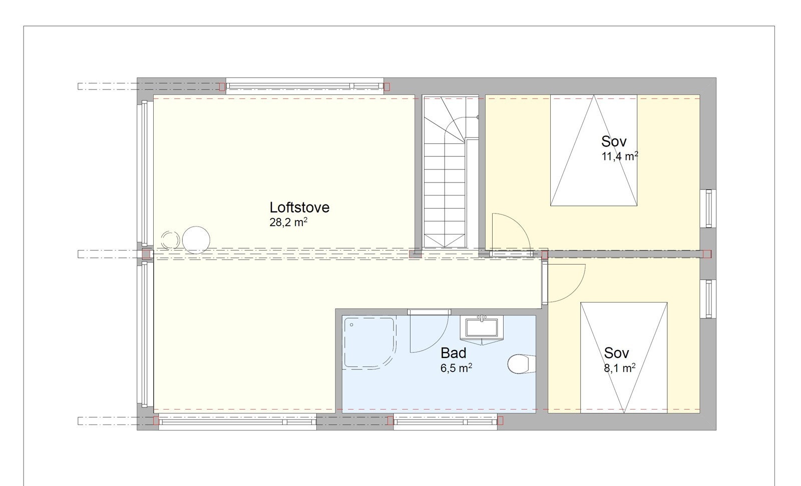
- Primærrom
- 114 m²
- Bruksareal
- 117 m²
- Tomteareal
- 2 965 m² (eiet)
- Byggeår
- 2022
- Soverom
- 3
- Rom
- 5
- Energimerking
- E - Oransje
Fasiliteter
Om boligen
Velkommen til Jødnvegen 16 B!
Lekker nyoppført hytte (2022) i regi av lokal entreprenør (Rogne bygg) med gjennomgående meget god standard på materialer, innredninger og tekniske installasjoner. Hytta har en innholdsrik og arealeffektiv planløsning over to etasjer, med store panoramavinduer. Fra eiendommen er det fantastisk utsikt mot bl.a. Slettefjell, Mugnetind og naturlandskapet rundt. Opparbeidet utomhusområder med bl.a. gruset gårdsplass, pent opparbeidet plen og Valdresskigard.
Fra eiendommen er det gangavstand til alle Beitostølens fasiliteter, som restauranter, puber, sportsbutikker med mer. I tillegg er det milevis med preparerte langrennsløyper rett utenfor hytteveggen. Beitostølen er porten til Jotunheimen med et rikt utvalg av turmuligheter sommer som vinter.
Salgsoppgaven beskriver vesentlig og lovpålagt informasjon om eiendommen
Se komplett salgsoppgaveNyttige lenker
Nærområdet

PrivatMegleren Dyve & Partnere
Annonseinformasjon
| FINN-kode | 273812859 |
|---|---|
| Sist endret | 03. sep. 2023 12:19 |
| Referanse | 159220484 |
Annonsene kan være mangelfulle i forhold til lovpålagt opplysningsplikt. Før bindende avtale inngås oppfordres interessenter til å innhente komplett informasjon fra meglerforetaket, selger eller utleier.



























