Bildegalleri

Velkommen til Tøyenbekken 4! Boligen presenteres av Partner/Eiendomsmegler MNEF Katrine Solvåg.
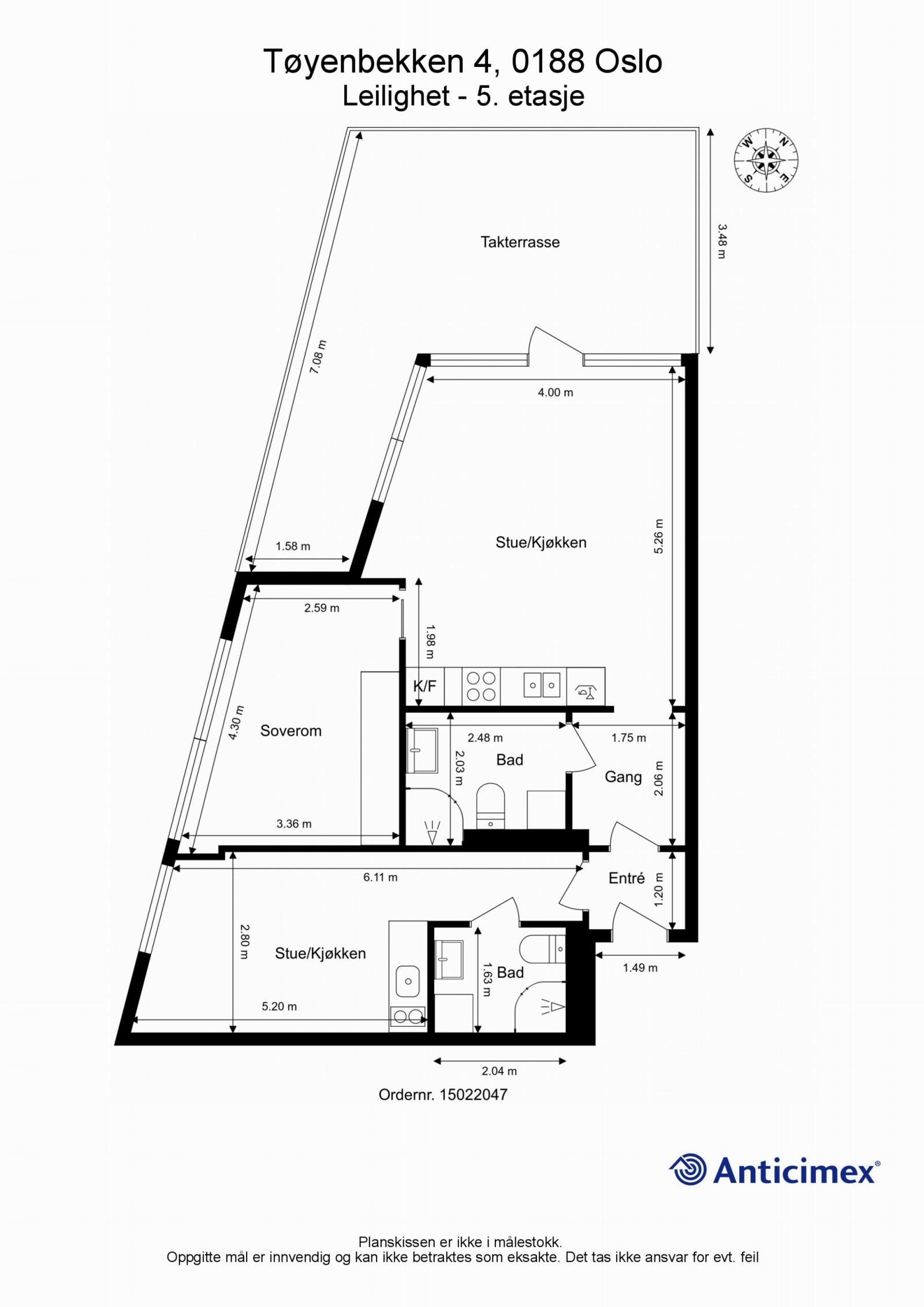
Lys & solrik toppleilighet med 25m² privat takterrasse! Egen utleiedel. Heis. Vv, fyring, fibernett inkl. Parkeringsleie
Nøkkelinfo
- Boligtype
- Leilighet
- Eieform
- Eier (Selveier)
- Soverom
- 2
- Primærrom
- 69 m²
- Bruksareal
- 69 m²
- Etasje
- 5
- Byggeår
- 2006
- Energimerking
- D - Mørkegrønn
- Rom
- 3
- Tomteareal
- 3 994 m² (eiet)
Fasiliteter
Om boligen
Velkommen til Tøyenbekken 4! En lys og romslig leilighet med privat takterrasse på hele 25 m² og egen utleiedel. Her bor du sentralt til. Kun 5min unna Botanisk hage, 10min unna Oslo S, flere flotte restauranter og kollektivmuligheter like utenfor døren, samtidig som du kan trekke deg tilbake i fredelige omgivelser.
- Endeleilighet med store vindusflater.
- Privat takterrasse på 25 m² med gode solforhold
- Boligen har egen utleiedel.
- Est. utleiepris til 10.000kr pr.mnd.
- Beliggende i 5. etasje med heisadkomst.
- Moderne bygg med Vv og fjernvarme.
- Boligen er malt i 2022.
- Stue med plass til sofagruppe og spisestue.
- 2 bad med opplegg for vaskemaskin.
- Leiligheten disponerer egen bod i byggets 2. etasje.
- Mulighet for leie av parkeringsplass i kjeller.
- Veldrevet sameie.
- Bo sentralt, men fortsatt tilbaketrukket til!
Salgsoppgaven beskriver vesentlig og lovpålagt informasjon om eiendommen
Se komplett salgsoppgaveNyttige lenker
Nærområdet
&Partners Grünerløkka
Prisstatistikk
Tøyenbekken 4
på annonsen
prisantydning per kvadratmeter
Prisfordeling
Pris per m² ligger 5 450 kr under snittet for leiligheter i Gamle Oslo.
Grafen viser antall leiligheter solgt i Gamle Oslo siste året fordelt på pris per m² - totalt 2 108 leiligheter
Antall boliger
Kvadratmeterpris tilsvarer prisantydning pluss fellesgjeld per kvadratmeter (p-rom eller BRA-i). Prisene i grafen er avrundet til nærmeste 1000 kr.
Annonseinformasjon
| FINN-kode | 273467896 |
|---|---|
| Sist endret | 30. sep. 2022 11:49 |
| Referanse | 16220149 |
Annonsene kan være mangelfulle i forhold til lovpålagt opplysningsplikt. Før bindende avtale inngås oppfordres interessenter til å innhente komplett informasjon fra meglerforetaket, selger eller utleier.





































