Bildegalleri

Hytte til vinterferien? Hytte under bygging i Varden | Fantastisk beliggenhet
- Omkostninger
- 55 618 kr
- Totalpris
- 6 155 618 kr
Nøkkelinfo
- Beliggenhet
- På fjellet
- Boligtype
- Hytte
- Eieform
- Eier (Selveier)
- Primærrom
- 111 m²
- Bruksareal
- 127 m²
- Bruttoareal
- 139 m²
- Byggeår
- 2022
- Soverom
- 4
- Meter over havet
- 864
Fasiliteter
Visning
Ta kontakt for å avtale visning.Om eiendommen
Beliggenhet
Velkommen til Varden Panorama!
På et sentralt og flott beliggende hyttefelt kommer det nå 10 moderne hytter på fantastiske utsiktstomter. Varden Panorama har en unik beliggenhet med ski-inn/ski-ut til både langrenn og alpint.
Adkomst/Tomteforhold
Ta av fra E6 ved Fåvang og følg skilting mot Kvitfjell Vest. Vegen slynger seg oppover i dalsiden mot Kvitfjell Vest. Etter å ha passert Servicesenteret (ligger på høyre side av vegen) tar man til venstre opp mot Varden. Det er godt skiltet. Følg denne vegen i 2,2 km og det står igjen skilt merket med Varden Panorama inn på venstre side.
Generelt
Varden Panorama er det perfekte utgangspunktet - her kan du la bilen stå igjen på hytta, det er bare å gli rett ut i skiløyper enten det er ut i alpinbakkene
eller langrennsløypene!
Snøsikre Kvitfjell har en unik atmosfære, som blander det beste av skikjøring med det fremste av kos og hygge. Kvitfjell er et perfekt sted for både skientusiaster enten det er langrenn eller alpint, barnefamilier, turgåere og livsnytere. Fordelt på tre fjellsider finner du rikholdig med serveringssteder og løyper som byr på skiglede for alle nivåer. Her får du alt fra barneområder, frikjøringsområder til svarte løyper med olympisk standard.
Innhold
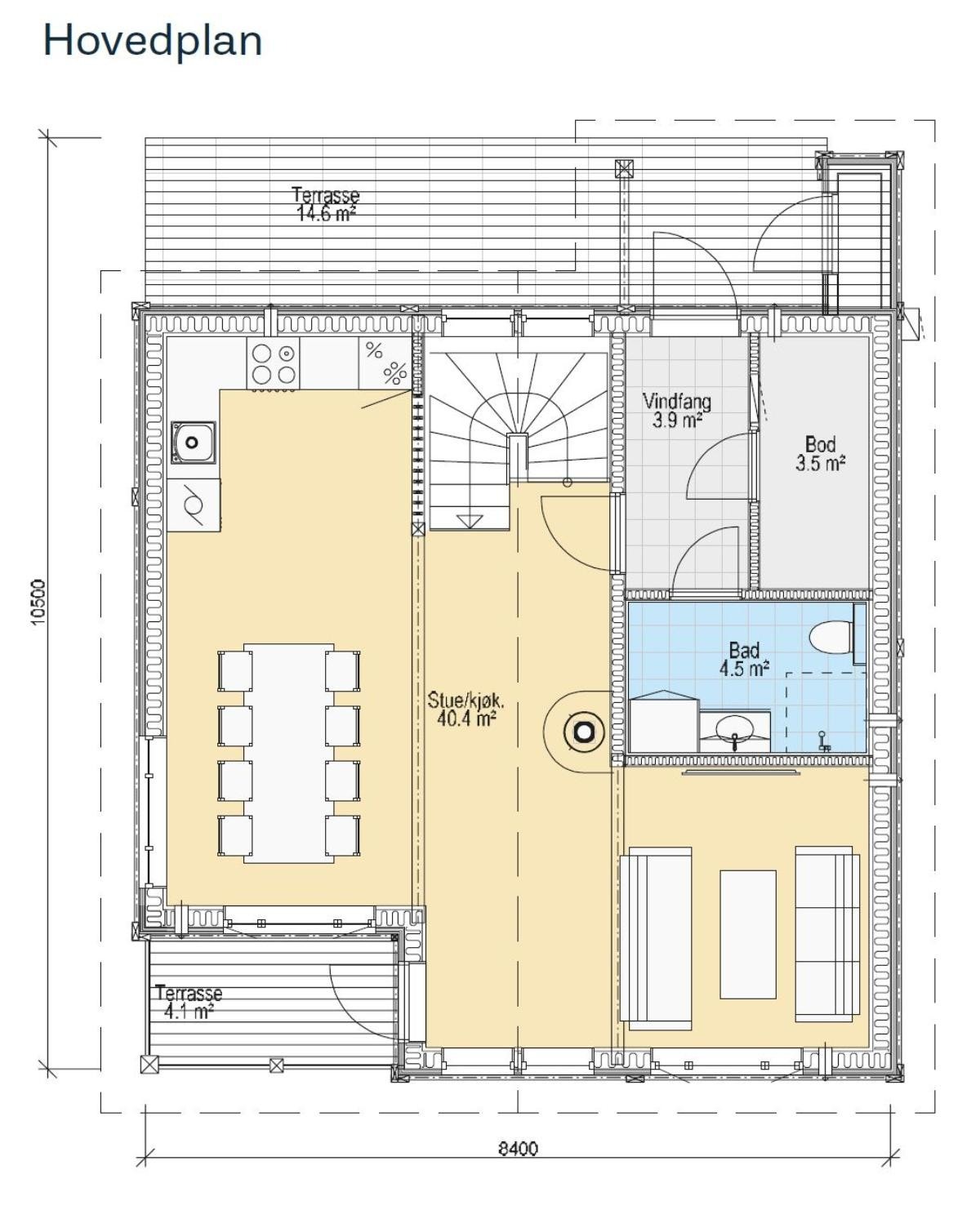
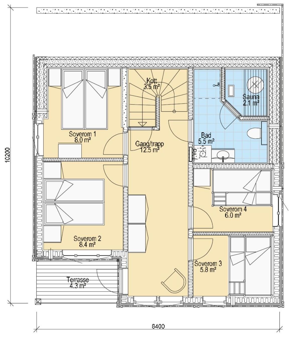
Hytta har en god planløsning med fire soverom, bad og badstue. Hovedplanet har romslig stue, kjøkken og bad, samt utgang til veranda.
Med forbehold om prisendringer.
Standard
De barske hyttene
På Varden Panorama ønsker vi å ta tilbake det norske robuste uttrykket og samtidig møte kundens ønske om å slippe naturen inn gjennom store vinduer.
Utvendig leveres hytta med stavlaftdetaljer og stående låvepanel ytterkledning i mix bredder beiset i fargen Jernvitrol. Taket tekkes med To-lags
natur torv. Dører og vinduer er gråmalt.
I Varden Panorama leveres det komplette nøkkelferdige hytter inkludert tomt. Det er offentlig vann og avløp. Hyttene blir tilknyttet fiber.
Hytteleveransen i Varden Panorama inkluderer følgende:
• Kvalitetskjøkken fra Sigdal med hvitevarer
• Flislagte badegulv med Unidrain gulvsluk
• Sauna
• Gulvvarme i bad og vindfang
• 1-stavs eikeparkett
• Heltre innerdører malt i grå farge med dempelist og sorte dørhåndtak
• Beiset sprekkpanel i fargen Tindegrå
• Tidløs listverk beiset i fargen Tindegrå
• Peisovn Nordpeis duo 5 er en klassisk peisovn med stort innsyn til flammene.
• Astrourstyrte utelamper
• Frostfri utekran
• To-lags natur torv på taket
Se komplett leveransebeskrivelse på side 18 i prospektet.
Det tas forbehold om forandringer i leveransebeskrivelsen, samt valg av leverandør. Dette
og andre detaljer vil hytteselger kunne opplyse mer om. Det tas forbehold om prisendringer og
endelig godkjenning fra kommune
Salgsoppgaven beskriver vesentlig og lovpålagt informasjon om eiendommen
Se komplett salgsoppgaveNærområdet
Tindehytter AS
Annonsene kan være mangelfulle i forhold til lovpålagt opplysningsplikt. Før bindende avtale inngås oppfordres interessenter til å innhente komplett informasjon fra meglerforetaket, selger eller utleier.



















