Bildegalleri

EiendomsMegler1 v/Torill Kalsaas presenterer Troheibakken 33
Solgt
Ådneram
Solid hytte med meget bra plassering - Her er det plass til storfamilien!
Prisantydning6 350 000 kr
- Omkostninger
- 159 920 kr
- Totalpris
- 6 509 920 kr
- Kommunale avg.
- 10 058 kr per år
- Formuesverdi
- 384 646 kr
Nøkkelinfo
- Beliggenhet
- På fjellet
- Boligtype
- Hytte
- Eieform
- Eier (Selveier)
- Primærrom
- 145 m²
- Bruksareal
- 159 m²
- Tomt
- Festet
- Festeavgift
- 7 184 kr
- Byggeår
- 2009
- Soverom
- 3
- Rom
- 5
- Overtakelse
- Etter nærmere avtale med selger. Vær vennlig å angi ønsket overtagelsesdato i vedlagte budskjema.
Fasiliteter
Innlagt vann
Alpinanlegg
Balkong/Terrasse
Barnevennlig
Bredbåndstilknytning
Peis/Ildsted
Rolig
Utsikt
Bademulighet
Fiskemulighet
Innlagt strøm
Offentlig vann/kloakk
Turterreng
Om boligen
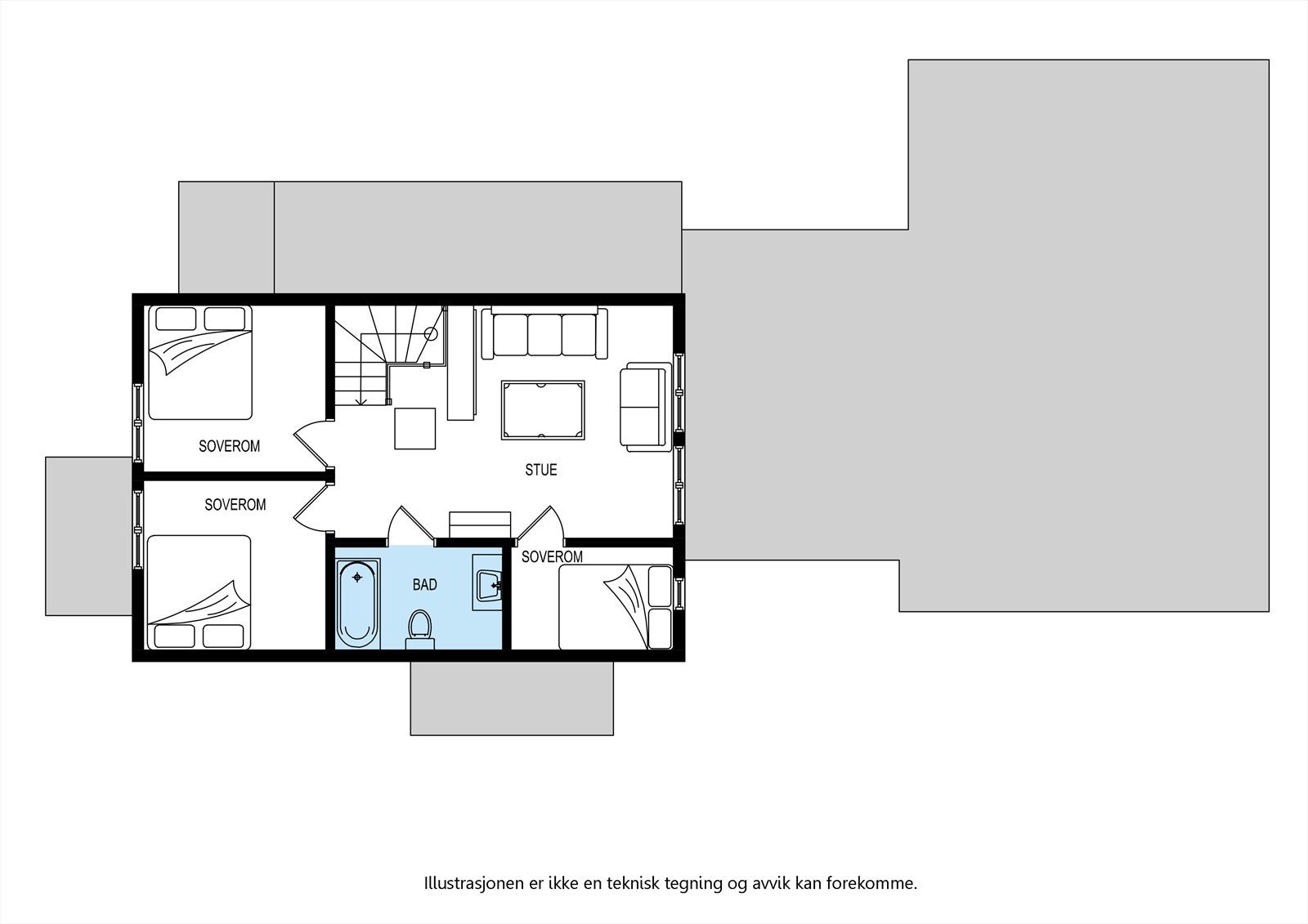
Hytta ligger veldig flott plassert med utsikt over Sauhedlartjødn og videre nedover dalen. Her kan høyfjellet nytes på beste måten! Finere plassering av en hytte skal man lete lenge etter. Hytta er også meget romslig og skiller seg ut med stor oppholdsrom delt i ulike soner. 1. etasje har stue og kjøkken i åpen løsning, med plass til flere sittegrupper. Peisen er plassert midt i rommet. Det er også innredet stue med vedovn i hallen. Etasjen har to soverom, der det ene er byggemeldt. Bad med god størrelse. Praktisk vaskerom med god tørkeplass. Bi-inngang bod med plass til ski og utstyr. I 2. etasje er det innredet loftstue og 3 soverom ( to godkjente) Bad med badekar. Dette er en utrolig god mulighet til å skaffe seg en stor hytte i Ådneram Fjellgrend!
NB: Knappen for å vise hele beskrivelsen har kun en visuell effekt.
NB: Knappen for å vise hele beskrivelsen har kun en visuell effekt.
Salgsoppgaven beskriver vesentlig og lovpålagt informasjon om eiendommen
Se komplett salgsoppgaveNyttige lenker
Nærområdet
EiendomsMegler 1 Gjesdal
Vi er der du er - EiendomsMegler 1
Annonseinformasjon
| FINN-kode | 271275821 |
|---|---|
| Sist endret | 05. okt. 2023 16:14 |
| Referanse | 2402220022 |
Annonsene kan være mangelfulle i forhold til lovpålagt opplysningsplikt. Før bindende avtale inngås oppfordres interessenter til å innhente komplett informasjon fra meglerforetaket, selger eller utleier.




































