Bildegalleri

EiendomsMegler1 v/Torill Kalsaas presenterer Buliveien 22
Solgt
Ådneram
Innholdsrik hytte med påbygget bod. Parkering på tomta. Nydelig plassering v/tjern.
Prisantydning4 450 000 kr
- Omkostninger
- 112 420 kr
- Totalpris
- 4 562 420 kr
- Kommunale avg.
- 10 058 kr per år
- Formuesverdi
- 1 445 432 kr
Nøkkelinfo
- Beliggenhet
- På fjellet
- Boligtype
- Hytte
- Eieform
- Eier (Selveier)
- Primærrom
- 107 m²
- Bruksareal
- 119 m²
- Tomt
- Festet
- Festeavgift
- 7 136 kr
- Byggeår
- 2009
- Soverom
- 4
- Rom
- 6
- Overtakelse
- Etter nærmere avtale med selger. Vær vennlig å angi ønsket overtagelsesdato i vedlagte budskjema.
Fasiliteter
Innlagt vann
Alpinanlegg
Balkong/Terrasse
Barnevennlig
Bilvei frem
Garasje/P-plass
Peis/Ildsted
Rolig
Utsikt
Bademulighet
Fiskemulighet
Innlagt strøm
Offentlig vann/kloakk
Turterreng
Om boligen
Hytta har gode og praktiske løsninger, tilrettelagt som familiehytte med et godt innhold:
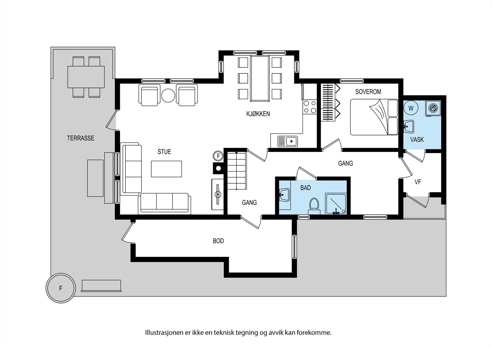
1. etasje: Entrè, vaskerom/teknisk rom, gang, soverom, bad og stue/kjøkken. Utvendig bod.
Loft: Stue, 3 soverom og bad. En del av arealet i 2.etg er ikke målbart pga skråtak. Rommene i denne etasjen er romslig og har rikelig med sengeplasser.
Hytta skiller seg ut på feltet med veldig kjekk plassering ned mot et tjern. Her kan en fiske og bade om sommeren. Tidlig vinter er det en kjekk plass å prøve skøytene.
Enkel adkomst med parkering rett utenfor. Langrennsløyper og skitrekk i umiddelbar nærhet.
Hytta selges møblert med unntak av personlige gjenstander.
1. etasje: Entrè, vaskerom/teknisk rom, gang, soverom, bad og stue/kjøkken. Utvendig bod.
Loft: Stue, 3 soverom og bad. En del av arealet i 2.etg er ikke målbart pga skråtak. Rommene i denne etasjen er romslig og har rikelig med sengeplasser.
Hytta skiller seg ut på feltet med veldig kjekk plassering ned mot et tjern. Her kan en fiske og bade om sommeren. Tidlig vinter er det en kjekk plass å prøve skøytene.
Enkel adkomst med parkering rett utenfor. Langrennsløyper og skitrekk i umiddelbar nærhet.
Hytta selges møblert med unntak av personlige gjenstander.
NB: Knappen for å vise hele beskrivelsen har kun en visuell effekt.
NB: Knappen for å vise hele beskrivelsen har kun en visuell effekt.
Salgsoppgaven beskriver vesentlig og lovpålagt informasjon om eiendommen
Se komplett salgsoppgaveNyttige lenker
Nærområdet
EiendomsMegler 1 Gjesdal
Vi er der du er - EiendomsMegler 1
Annonseinformasjon
| FINN-kode | 271019383 |
|---|---|
| Sist endret | 03. apr. 2023 08:50 |
| Referanse | 2402220119 |
Annonsene kan være mangelfulle i forhold til lovpålagt opplysningsplikt. Før bindende avtale inngås oppfordres interessenter til å innhente komplett informasjon fra meglerforetaket, selger eller utleier.




































