Bildegalleri

Jensvolldalen

Jensvolldalen

Prisantydning1 716 000 kr
Totalpris
4 301 460 kr
Omkostninger
11 460 kr
Fellesgjeld
2 574 000 kr
Felleskost/mnd.
14 631 kr

Kort om prosjektet

Mange har allerede funnet sine nye hjem i Jensvolldalen, hvor vi de siste årene har utviklet gode og trygge boliger for folk flest. Nå starter salget av leiligheter i det femte byggetrinnet. Leilighetene er på mellom 27 og 61 kvadratmeter med svært arealeffektive planløsninger.

  • Planlegging

    2021

  • Salgsstart

    26.08.2022

  • Byggestart

    2021

  • Overtakelse

    Etter nærmere avtale

Nøkkelinfo

Boligtype
Leilighet
Etasje
1
Soverom
2
Rom
3
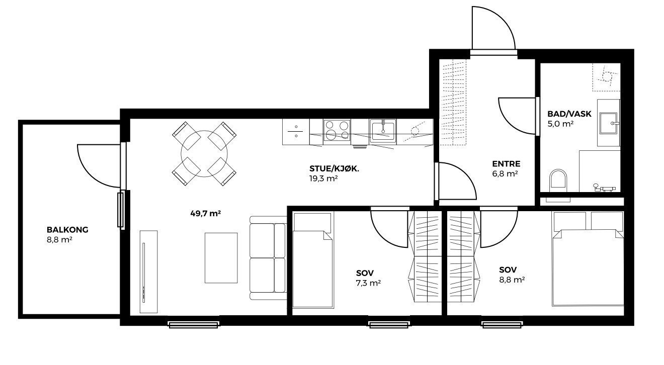
Primærrom
49 m²
Bruksareal
49 m²

Les mer om bruksareal her

Fasiliteter

Balkong/Terrasse
Offentlig vann/kloakk
Utsikt
Barnevennlig
Garasje/P-plass
Kabel-TV
Vaktmester-/vektertjeneste
Balansert ventilasjon
Bredbåndstilknytning
Heis
Lademulighet
Turterreng

Visning

Ta kontakt for å avtale visning.Visningspåmelding

Beskrivelse

Denne leiligheten er inklusive garasjeplass.

Nabolag betyr noe

Jensvolldalen ligger idyllisk til ved Grønnåsen i vakre omgivelser og med Bodømarka som nærmeste nabo. Det trygge området innbyr til aktive liv – uavhengig av hvilken alder og livssituasjon
du er i. Nyetablerte par, enslige, småbarnsfamilier, storfamilier og pensjonister – vår erfaring er at mangfold skaper gode naboskap.

Praktiske liv

Jensvolldalen ligger omkranset av veletablerte skoler, barnehager, butikker og – ikke minst – verdens fineste lekegrind: Bodømarka. Dette tar vi høyde for når vi utformer boligene – både med tanke på planløsninger, materialvalg og tilhørende kvaliteter, som eksempelvis bod, parkeringsplass og vestvendte balkonger.

Familie
Jensvolldalen ligger omkranset av veletablerte skoler, barnehager, butikker og – ikke minst – verdens fineste lekegrind: Bodømarka. Dette tar vi høyde for når vi utformer boligene – både med tanke på planløsninger, materialvalg og tilhørende kvaliteter, som eksempelvis bod, parkeringsplass og vestvendte balkonger.

En trygg boligreise
Utbygger Jensvoll eiendom AS har allerede bygget nærmere 200
boliger i Jensvolldalen. Vi er stolte og glade for tilbakemeldingene fra beboerne, og kommer til å bruke erfaringene vi har fått i neste
byggetrinn. I samarbeid med den erfarne og lokale entreprenøren Gunvald Johansen, som har lang fartstid og kjennskap i Bodø-markedet, har vi ambisjoner om at Jensvolldalen 5 skal bli av akkurat den kvaliteten du fortjener.
Beliggenhet
Jensvolldalen er et attraktivt boligprosjekt beliggende ved Grønnåsen i Bodø. Barnehagen Tusseladden er bare et steinkast unna. Det er kort og trygg skolevei til Grønnåsen skole som ligger ca. 600 meter fra leilighetene. Dagligvarehandelen kan gjøres ved bl.a. Bunnpris Grønnåsen og Rema 1000 Alstad som ligger i kort avstand fra leilighetene. Her ligger også Rapida treningssenter. Ønsker du et ytterligere servicetilbud er Bodøs trivelige sentrum og
shoppingsentre som City Nord innen rimelig avstand. Området gir mulighet for offentlig transport via buss, hvor nærmeste bussholdeplass er ca. 900 meter unna. Fra leilighetene har du
utallige muligheter i Bodømarka. Spenn på skiene og ta en runde i lysløypa, eller ta turskoene fatt for å finne kjempefine turområder uansett hvilken retning du går. Bestemorenga tilbyr blant annet
gøyale akebakker og Soløyvannet er herlig friskt på sommeren.

Parkering
Det vil bli innvendig parkering for 66 av leilighetene. Resterende leiligheter får parkeringsplass på oppstillingsplass utenfor. Parkering for samtlige leiligheter er inkludert i prisen. For deg med elbil tilrettelegger vi for ladepunkt. Det vil gå heis opp og ned til alle etasjer ved siden av trappegangene. Samtlige leiligheter har innvendig bod.
Fellesgjeld/lånevilkår
Fellesgjelden i dette prosjektet er et annuitetslån over 50 år med 5 års avdragsfrihet. Dette lånet løper med flytende rente som i dag har estimert rentesats på 2,54 %. Boligens felleskostnader er derfor beregnet med driftskostnader og rentekostnader på fellesgjelden etter denne satsen. Når fellesgjelden nedbetales fra år 6 må felleskostnadene forventes å øke. Prislisten for prosjektet viser hva dette er beregnet til (kontakt prosjektselger for fullstendig prisliste). For øvrig må endringer i den flytende rentesatsen forventes å medføre endringer i felleskostnadene.
Et annuitetslån er et lån som nedbetales med like store terminbeløp, helt til lånet er innfridd. I begynnelsen er derfor avdragsdelen liten, mens rentedelen er stor. Etter hvert som lånet reduseres stiger avdragsandelen og renteandelen blir mindre.

Nærområdet

Annonseinformasjon

FINN-kode270647006
Sist endret02. apr. 2025 08:52

Rapporter annonse

Annonsene kan være mangelfulle i forhold til lovpålagt opplysningsplikt. Før bindende avtale inngås oppfordres interessenter til å innhente komplett informasjon fra meglerforetaket, selger eller utleier.