Bildegalleri

Velkommen til Bjørkelia 51!
Inaktiv
Nydelig hytte øverst i Bjørkelia Hyttegrend med panoramautsikt og veldig gode solforhold. Kjørevei helt frem
Prisantydning3 950 000 kr
- Omkostninger
- 99 920 kr
- Totalpris
- 4 049 920 kr
- Eiendomsskatt
- 2 043 kr per år
- Formuesverdi
- 1 100 kr
Nøkkelinfo
- Beliggenhet
- På fjellet
- Boligtype
- Hytte
- Eieform
- Eier (Selveier)
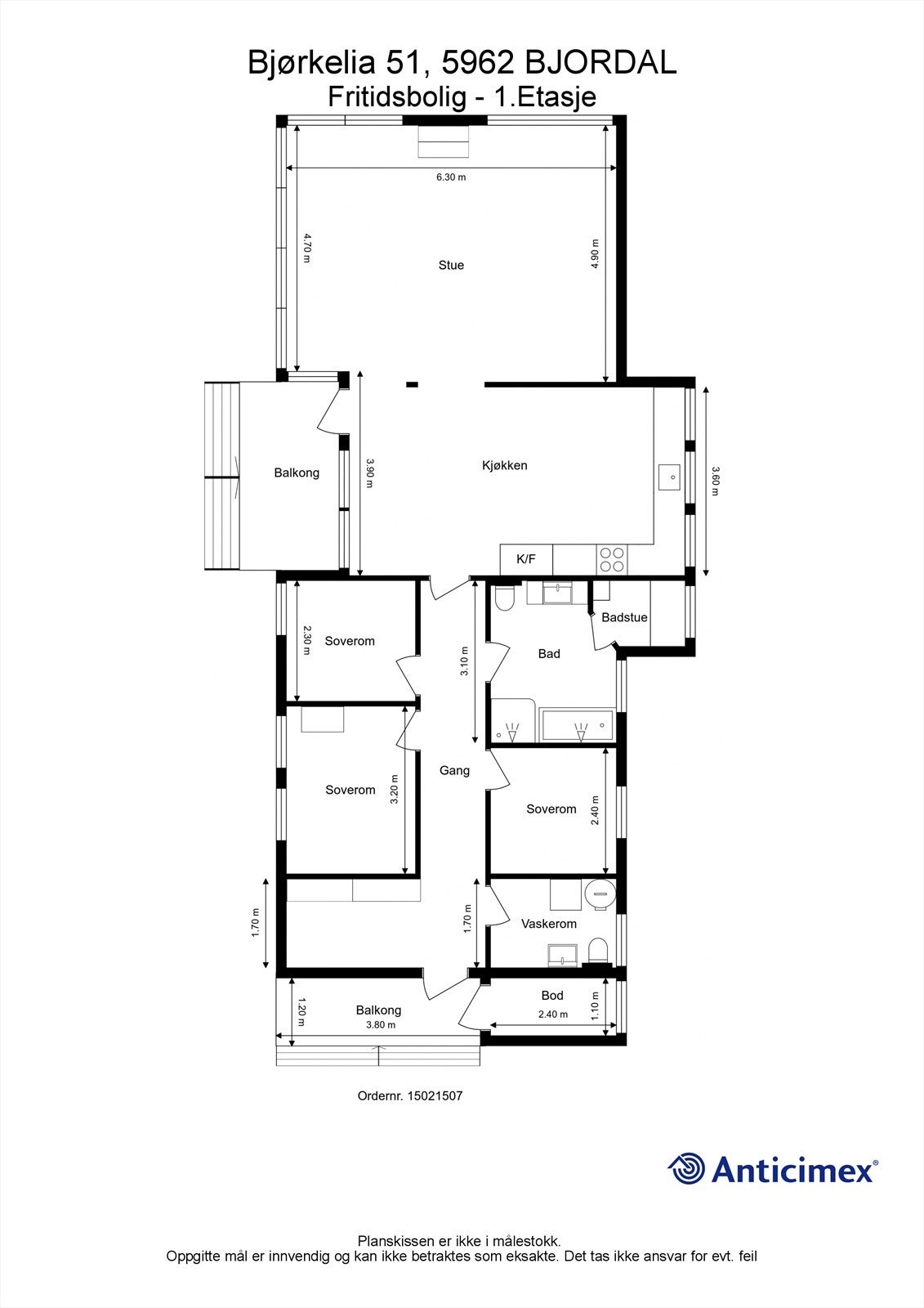
- Primærrom
- 106 m²
- Bruksareal
- 106 m²
- Tomteareal
- 1 086 m² (eiet)
- Byggeår
- 2016
- Soverom
- 3
- Rom
- 4
- Energimerking
- C - Oransje
- Overtakelse
- Etter nærmere avtale.
Fasiliteter
Innlagt vann
Alpinanlegg
Balkong/Terrasse
Barnevennlig
Bilvei frem
Bredbåndstilknytning
Garasje/P-plass
Peis/Ildsted
Rolig
Utsikt
Bademulighet
Fiskemulighet
Innlagt strøm
Turterreng
Om boligen
Denne Hedda hytten er designet for å skli rett inn i naturen. Den ligger i Bjørkelia hyttegrend, ett hyttefelt øverst i Stordalen i Høyanger kommune. Rett utenfor hyttedøren finner du populære turstier rett inn i Stølsheimen.
Når det gjelder hytten er dette en moderne og påkostet fjellhytte. Man kan flytte rett inn i hytten, og med sin mønet himling og mange vinduer, er dette et perfekt sted å samle familie og venner.
- Nyere hytte med gode kvaliteter
- 3 soverom med totalt 8 soveplasser
- Hems
- Badstue
- Gode solforhold
- Turstier rett utenfor hyttedøren
- Skisenter 5 minutter unna med bil
- Gangavstand til preparerte langrennsløype
- Gangavstand til Stordalen Fjellstue
Når det gjelder hytten er dette en moderne og påkostet fjellhytte. Man kan flytte rett inn i hytten, og med sin mønet himling og mange vinduer, er dette et perfekt sted å samle familie og venner.
- Nyere hytte med gode kvaliteter
- 3 soverom med totalt 8 soveplasser
- Hems
- Badstue
- Gode solforhold
- Turstier rett utenfor hyttedøren
- Skisenter 5 minutter unna med bil
- Gangavstand til preparerte langrennsløype
- Gangavstand til Stordalen Fjellstue
NB: Knappen for å vise hele beskrivelsen har kun en visuell effekt.
NB: Knappen for å vise hele beskrivelsen har kun en visuell effekt.
Salgsoppgaven beskriver vesentlig og lovpålagt informasjon om eiendommen
Se komplett salgsoppgaveNyttige lenker
Nærområdet
Krogsveen Åsane
Verdien av en god megler.
Annonseinformasjon
| FINN-kode | 270606834 |
|---|---|
| Sist endret | 11. aug. 2023 22:16 |
| Referanse | KR74.2248 |
Annonsene kan være mangelfulle i forhold til lovpålagt opplysningsplikt. Før bindende avtale inngås oppfordres interessenter til å innhente komplett informasjon fra meglerforetaket, selger eller utleier.























































