Bildegalleri

Solgt
Trivelig hytte med 5 sengeplasser i landlige omgivelser. Fantastisk panoramautsikt og enkel adkomst. Ny pipe installert
Prisantydning1 000 000 kr
- Omkostninger
- 25 600 kr
- Totalpris
- 1 025 600 kr
- Kommunale avg.
- 3 805 kr per år
- Formuesverdi
- 266 116 kr
Nøkkelinfo
- Beliggenhet
- Innlandet
- Boligtype
- Hytte
- Eieform
- Eier (Selveier)
- Internt bruksareal
- 58 m² (BRA-i)
- Bruksareal
- 58 m²
- Tomteareal
- 885 m² (eiet)
- Byggeår
- 1974
- Soverom
- 2
- Rom
- 4
- Energimerking
- G - Oransje
Fasiliteter
Balkong/Terrasse
Innlagt strøm
Utsikt
Bilvei frem
Om boligen
Hytten ligger i spredd bebyggelse i landlige omgivelse på Jørnevik mellom Bolstad og Evanger. Her er meget flott panoramautsikt og lett tilkomst til eiendommen via kommunal og privat vei.
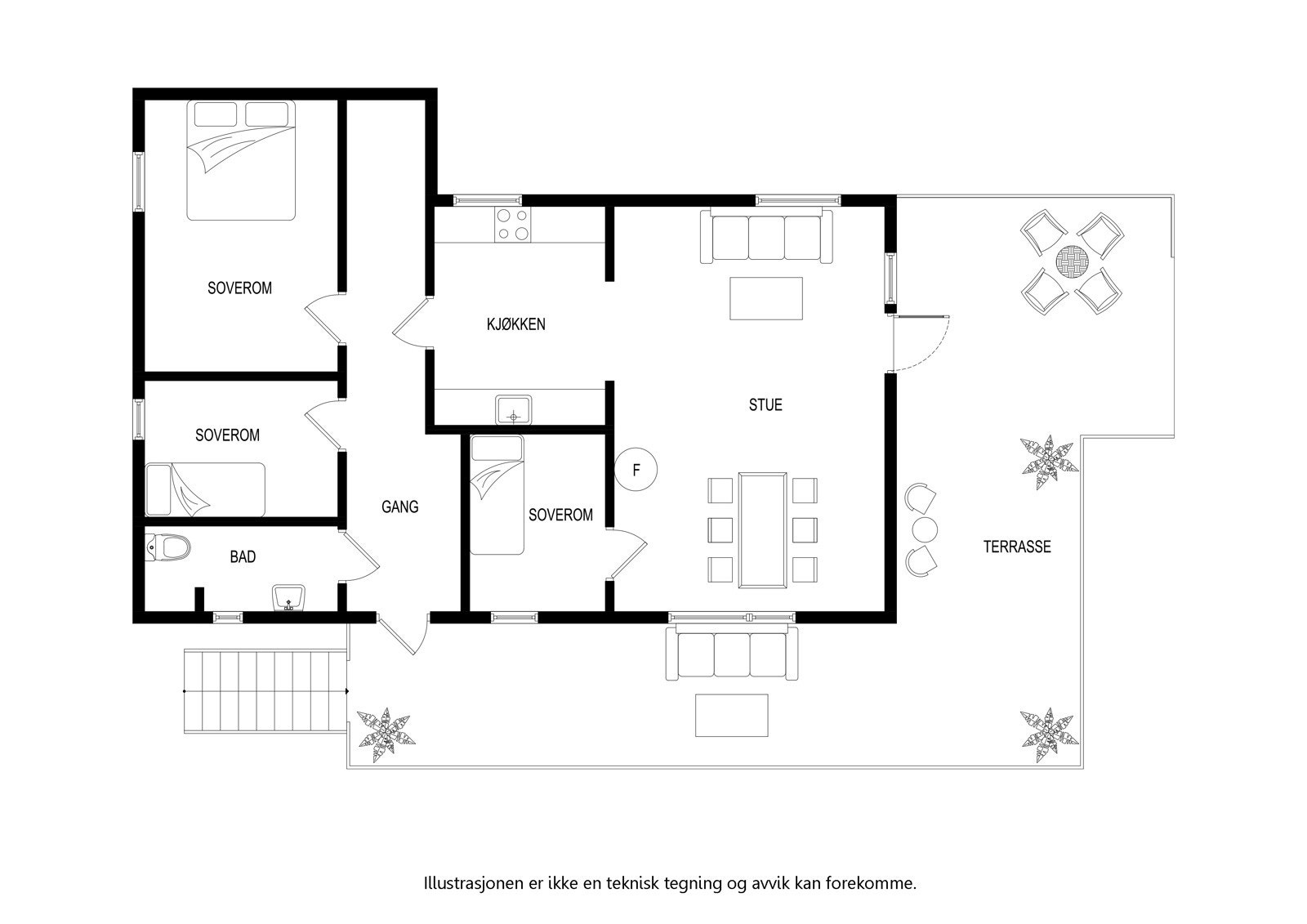
Fritidsboligen inneholder entre/gang, stue, kjøkken, 2 soverom, rom benyttet som soverom og et toalettrom. Utenfor hytten er en fantastisk terrasse hvor en kan nyte utsikten mens en slapper av med en god bok eller en kopp kaffi.
Velkommen!
NB: Knappen for å vise hele beskrivelsen har kun en visuell effekt.
NB: Knappen for å vise hele beskrivelsen har kun en visuell effekt.
Salgsoppgaven beskriver vesentlig og lovpålagt informasjon om eiendommen
Se komplett salgsoppgaveNyttige lenker
Nærområdet
Proaktiv Eiendomsmegling Voss
Alltid tid til deg
Annonseinformasjon
| FINN-kode | 270516978 |
|---|---|
| Sist endret | 11. aug. 2025 15:54 |
| Referanse | 69220096 |
Annonsene kan være mangelfulle i forhold til lovpålagt opplysningsplikt. Før bindende avtale inngås oppfordres interessenter til å innhente komplett informasjon fra meglerforetaket, selger eller utleier.





























