Bildegalleri

Velkommen til Stordalstrandvegen 57 presentert av Levi Gout hos Hjem Eiendomsmegling!
Solgt
Romslig enebolig med utleielokale i underetasje! | Flott utsikt | Nærhet til havet
Prisantydning1 700 000 kr
Nøkkelinfo
- Boligtype
- Enebolig
- Eieform
- Eier (Selveier)
- Soverom
- 3
- Internt bruksareal
- 303 m² (BRA-i)
- Bruksareal
- 303 m²
- Balkong/Terrasse
- 5 m² (TBA)
- Etasje
- 2
- Byggeår
- 1958
- Energimerking
- G - Oransje
- Rom
- 4
- Tomteareal
- 583 m² (eiet)
Fasiliteter
Kjæledyr tillatt
Rolig
Utsikt
Bademulighet
Fiskemulighet
Turterreng
Lademulighet
Balansert ventilasjon
Om boligen
Velkommen til Stordalstrandvegen 57!
Boligen ligger sentralt til på Sjursnes en time fra Tromsø sentrum!
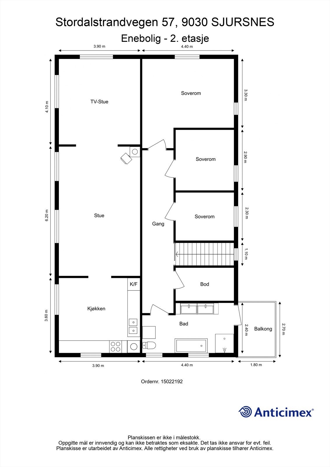
Fra inngangspartiet går man opp trappa og kommer til gangen som leder deg videre til badet, bod og de tre soverommene, med ett stort hovedsoverom og to litt mindre. Badet er flislagt, har romslig baderomsinnredning, dusj og badekar og plass til vaskemaskin. Utenfor badet er det en vestvendt balkong. Videre fra gangen tas du til en romslig spisestue som ligger mellom stuen og kjøkkenet. Fra alle disse rommene er det flott utsikt mot Lyngsalpene.
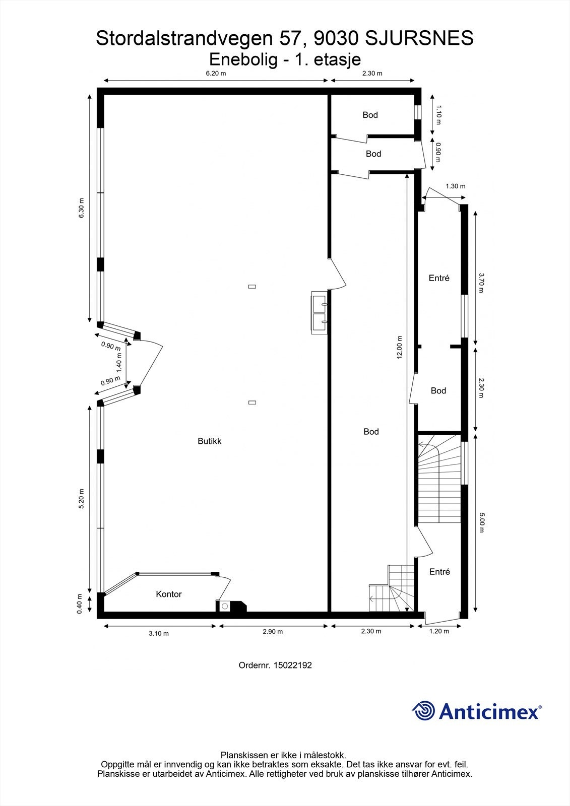
I første etasje er det et stort lokale som tidligere var butikk, samt flere boder. Kjelleren har også teknisk rom og lagring.
Stor tomt med flere parkeringsplasser og vedsjå!
Kontakt Levi Gout på 902 65 250 for mer informasjon!
Boligen ligger sentralt til på Sjursnes en time fra Tromsø sentrum!
Fra inngangspartiet går man opp trappa og kommer til gangen som leder deg videre til badet, bod og de tre soverommene, med ett stort hovedsoverom og to litt mindre. Badet er flislagt, har romslig baderomsinnredning, dusj og badekar og plass til vaskemaskin. Utenfor badet er det en vestvendt balkong. Videre fra gangen tas du til en romslig spisestue som ligger mellom stuen og kjøkkenet. Fra alle disse rommene er det flott utsikt mot Lyngsalpene.
I første etasje er det et stort lokale som tidligere var butikk, samt flere boder. Kjelleren har også teknisk rom og lagring.
Stor tomt med flere parkeringsplasser og vedsjå!
Kontakt Levi Gout på 902 65 250 for mer informasjon!
NB: Knappen for å vise hele beskrivelsen har kun en visuell effekt.
NB: Knappen for å vise hele beskrivelsen har kun en visuell effekt.
Salgsoppgaven beskriver vesentlig og lovpålagt informasjon om eiendommen
Se komplett salgsoppgaveNærområdet
Hjem Eiendomsmegling
Annonseinformasjon
| FINN-kode | 270512888 |
|---|---|
| Sist endret | 21. nov. 2025 10:54 |
| Referanse | 1-0281/22 |
Annonsene kan være mangelfulle i forhold til lovpålagt opplysningsplikt. Før bindende avtale inngås oppfordres interessenter til å innhente komplett informasjon fra meglerforetaket, selger eller utleier.










































