Bildegalleri

Velkommen til effektiv leilighet i Fjellandsbyen. (Illustrasjon kan avvike fra leilighet)
Solgt
Toppleilighet i Fjellandsbyen under bygging! Utleiefinansier fritidsdrømmen. Ski, sykkel, trening og spisesteder!
Prisantydning2 750 000 kr
- Omkostninger
- 5 300 kr
- Totalpris
- 2 755 300 kr
- Felleskost/mnd.
- 1 958 kr
Nøkkelinfo
- Beliggenhet
- På fjellet
- Boligtype
- Leilighet
- Eieform
- Eier (Selveier)
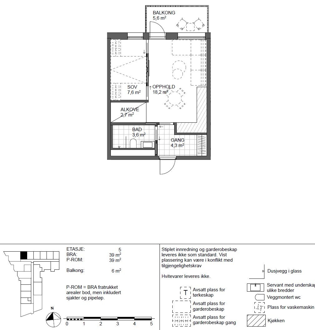
- Primærrom
- 39 m²
- Bruksareal
- 39 m²
- Tomt
- Eiet
- Soverom
- 1
- Rom
- 2
- Overtakelse
- Overtagelse skal skje i perioden 15.02.2024 til 15.06.24. Endelig overtagelsesdato for respektive fritidsbolig skal ligge innenfor overtagelsesperioden nevnt ovenfor og skal varsles cirka 8 uker før iht. bestemmelsene i kjøpekontraktens punkt 11. Det tas sikte på å overlevere boligene i første halvdel av den varslede perioden. Vi understreker at dette er slik det nå ser ut og at man må ta høyde for overlevering i hele den varslede perioden.
Fasiliteter
Innlagt vann
Balkong/Terrasse
Barnevennlig
Bilvei frem
Bredbåndstilknytning
Kabel-TV
Rolig
Utsikt
Vaktmester-/vektertjeneste
Bademulighet
Innlagt strøm
Turterreng
Om boligen
Videresalg av kontraktsposisjon.
Fritidsleilighet under oppføring, tilrettelagt for bekymringsfri utleie med rå beliggenhet i Skandinavias beste skianlegg.
Leiligheten har soverom og alkove. Svært god internbeliggenhet i øverste etasje. En god utleieavtale med SkiStar, som sørger for synlighet på flere flater og bekymringsfri utleie.
Leilighetene kan benyttes i hele 42 dager i henholdsvis vinter- og sommersesongen, og når leiligheten er ledig. Med litt planlegging kan du feire både jul og påske i Hemsedal, og samtidig tilbringe vinterferien her oppe. Bruker du leiligheten i en uke i hver av disse periodene har du fortsatt 21 vinterdager igjen - det holder til 7 helgeturer.
Fjellandsbyen får eget treningsrom, aktivitetsrom, skigarderobe, restauranter og afterski
Fritidsleilighet under oppføring, tilrettelagt for bekymringsfri utleie med rå beliggenhet i Skandinavias beste skianlegg.
Leiligheten har soverom og alkove. Svært god internbeliggenhet i øverste etasje. En god utleieavtale med SkiStar, som sørger for synlighet på flere flater og bekymringsfri utleie.
Leilighetene kan benyttes i hele 42 dager i henholdsvis vinter- og sommersesongen, og når leiligheten er ledig. Med litt planlegging kan du feire både jul og påske i Hemsedal, og samtidig tilbringe vinterferien her oppe. Bruker du leiligheten i en uke i hver av disse periodene har du fortsatt 21 vinterdager igjen - det holder til 7 helgeturer.
Fjellandsbyen får eget treningsrom, aktivitetsrom, skigarderobe, restauranter og afterski
NB: Knappen for å vise hele beskrivelsen har kun en visuell effekt.
NB: Knappen for å vise hele beskrivelsen har kun en visuell effekt.
Salgsoppgaven beskriver vesentlig og lovpålagt informasjon om eiendommen
Se komplett salgsoppgaveNyttige lenker
Nærområdet
EIE Fjellmegleren Hemsedal
Annonseinformasjon
| FINN-kode | 270452204 |
|---|---|
| Sist endret | 29. jan. 2023 10:44 |
| Referanse | 1532220197 |
Annonsene kan være mangelfulle i forhold til lovpålagt opplysningsplikt. Før bindende avtale inngås oppfordres interessenter til å innhente komplett informasjon fra meglerforetaket, selger eller utleier.



















