Bildegalleri

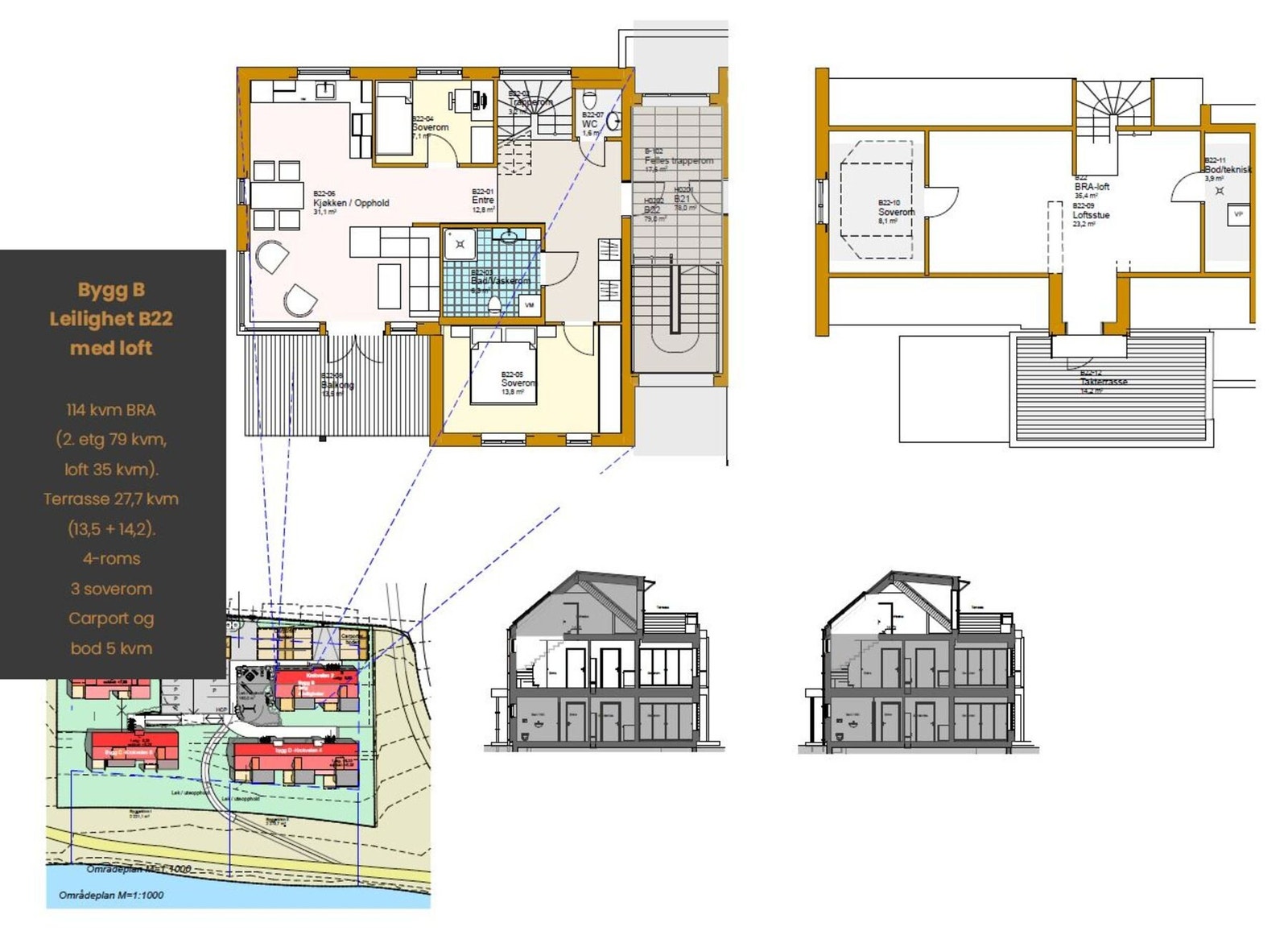
Plantegning leilighet B22.
Børgin Sjøside trinn 2
VISNING 12 Januar kl 12:00 - STOR TOPPETASJELEILIGHET MED EGEN TAKTERRASSE |Vannbåren varme | 2 stuer |
Prosjektets status
Planlegging
Gjennomført
Salgsstart
Startet
Byggestart
2022
Overtakelse
2023/2024
Nøkkelinfo
- Boligtype
- Leilighet
- Etasje
- 2
- Soverom
- 3
- Primærrom
- 0 m²
- Bruksareal
- 114 m²
Beskrivelse
Kvaliteter vi ønsker å fremheve med leiligheten
- Toppetasje med egen takterrasse + veranda
- Gulvvarme på stue, kjøkken, bad og gang.
- Fliser på våtrom (60x60 og 20x50).
- Fantastisk beliggenhet helt nede ved sjøen.
- Carport.
- Royalkledning på bygget.
- God planløsning i leilighetene med fokus på kvalitet.
- Gåavstand til butikker, bakeri, slakteri, badestrand og mange andre kulturtilbud Straumen har å by på.
- ''Alt'' ink i felleskostnadene.
Velkommen til visning. Husk påmelding.
Oppvarming
Med en luft-til-vann-varmepumpe utnytter du varme fra luft til å varme opp vann til vannbåren gulvvarme og til å forvarme tappevannet.
Oppvarming med en slik varmepumpe gir lavere energibruk enn ved bruk av strøm. I tillegg til å kutte kostnader, vil en luft-til-vann-varmepumpe gi et godt inneklima med jevn varme i hele boligen.
Bad og teknisk rom har varmekabler i gulv.
Balansert ventilasjon med varmegjenvinning.
Beliggenhet
Børgin Sjøside er sentralt plassert i Straumen sentrum, med nærhet
til det meste. Dette er stedet for deg som ikke ønsker å måtte velge - eller velge bort. Her er du nabo med sjøen, samtidig som Straumens tilbud av underholdning, shopping, bespisning og kulturtilbud kun er en behagelig gåtur unna.
På sørsiden av Straumbrua ligger Sundsand, et offentlig friområde med en flott badestrand. Området innbyr til turmulighetermed bl.a. en fint tilrettelagt joggesti.
Inderøy kommune frister med vakkert kulturlandskap, et rikt kulturmiljø og opplevelser for store og små. Her er et yrende næringsliv, spesielt i småskalabransjen, men også blant de større. Kommunen ligger plassert som en halvøy nord i Trondheimsfjorden, med to timers kjøreavstand fra Trondheim. Kulturlivet i Inderøy er preget av allsidighet, samarbeid, kreativitet og nytenkning. Kommunen ble 1996 kåret til årets kulturkommune i Norge. De ulike grendesamfunnene har stor idretts og kulturaktivitet
basert på frivillighet og dugnad. Inderøy kulturhus består av kulturdel og idrettshall. Her er det et yrende kulturliv fra morgen til kveld. Det gir verdifulle boliger å bo i, og siden selge videre.
Adkomst
Ta av til høyre i rundkjøringen ved Nessjordet og følg vegen ned mot sjøen. Leilighetene vil oppføres på høyre side.
Ferdigattest
Her får du muligheten til å kjøpe deg en leilighet helt i sjøkanten av Borgenfjorden på Straumen, Her er du nabo med sjøen, samtidig som Straumens tilbud av underholdning, shopping, bespisning og kulturtilbud kun er en behagelig gåtur unna.
Kvaliteter vi ønsker å fremheve med leiligheten:
- Toppetasje med egen takterrasse + veranda
- Gulvvarme på stue, kjøkken, bad og gang.
- Fliser på våtrom (60x60 og 20x50).
- Fantastisk beliggenhet helt nede ved sjøen.
- Carport.
- Royalkledning på bygget.
- God planløsning i leilighetene med fokus på kvalitet.
- ''Alt'' ink i felleskostnadene.
Velkommen til visning. Husk påmelding.
Fellesgjeld og lånebetingelser
Andel fellesgjeld
Gjeld kr 3 594 000,-
Nyttige lenker
Nærområdet
EiendomsMegler 1 Verdal
Annonseinformasjon
| FINN-kode | 264760387 |
|---|---|
| Sist endret | 04. feb. 2025 11:43 |
| Referanse | 552210036 |
Annonsene kan være mangelfulle i forhold til lovpålagt opplysningsplikt. Før bindende avtale inngås oppfordres interessenter til å innhente komplett informasjon fra meglerforetaket, selger eller utleier.





























