Bildegalleri

Velkommen til Dyrtjønnfeltet 60 og 62! To tømmerhytter beliggende i naturnære omgivelser i vakre Espedalen.
Inaktiv
To tømmerhytter beliggende i vakre Espedalen. Rolig og familievennlig område med skiløyper i gåavstand fra hyttene
Prisantydning750 000 kr
- Omkostninger
- 20 092 kr
- Totalpris
- 770 092 kr
- Kommunale avg.
- 5 010 kr per år
- Formuesverdi
- 165 000 kr
Nøkkelinfo
- Beliggenhet
- På fjellet
- Boligtype
- Hytte
- Eieform
- Eier (Selveier)
- Primærrom
- 70 m²
- Bruksareal
- 70 m²
- Tomt
- Festet
- Festeavgift
- 5 682 kr
- Byggeår
- 2005
- Soverom
- 2
- Rom
- 4
- Energimerking
- D - Oransje
- Overtakelse
- Overtakelse etter nærmere avtale. Budgiver oppfordres til å opplyse ønsket overtagelse i budskjema.
Fasiliteter
Barnevennlig
Bilvei frem
Rolig
Innlagt strøm
Turterreng
Visning
Velkommen til visning! Meld deg på ved å trykke "visningspåmelding" i våre boligannonser. Ta gjerne kontakt med megler i forkant av visningen om du har spørsmål.
VisningspåmeldingOm boligen
To flotte tømmerhytter beliggende i naturnære omgivelser i vakre Espedalen, i et rolig hytteområdet rett under Dyrtjønnhaugan. Det er gangavstand til milevis med oppkjørte skiløyper fra hyttene. Nærmeste skianlegg ligger ca. 5 minutter unna på Dalseter Høyfjellshotell. Her kan man stå på både alpint og snowboard. Om sommeren tilbyr Dalseter både ridning, padling og vandreturer.
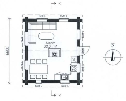
Hyttene ligger på hver sin tomt og var tiltenkt som et felles hyttetun med en hovedhytte og et "anneks". Planen har også vært å sette opp flere bygg. Dyrtjønnfeltet 60 er en hyggelig og liten hytte på 30 kvm som er innredet med stue/kjøkken og hems. Dyrtjønnfeltet 62 er på 40 kvm og inneholder 3 rominndelinger, samt 2 hemser. Sist nevnte har et stort potensiale. Her har man mulighet til å sette sitt preg på hytta.
Hyttene ligger på hver sin tomt og var tiltenkt som et felles hyttetun med en hovedhytte og et "anneks". Planen har også vært å sette opp flere bygg. Dyrtjønnfeltet 60 er en hyggelig og liten hytte på 30 kvm som er innredet med stue/kjøkken og hems. Dyrtjønnfeltet 62 er på 40 kvm og inneholder 3 rominndelinger, samt 2 hemser. Sist nevnte har et stort potensiale. Her har man mulighet til å sette sitt preg på hytta.
NB: Knappen for å vise hele beskrivelsen har kun en visuell effekt.
NB: Knappen for å vise hele beskrivelsen har kun en visuell effekt.
Salgsoppgaven beskriver vesentlig og lovpålagt informasjon om eiendommen
Se komplett salgsoppgaveNyttige lenker
Nærområdet
Annonseinformasjon
| FINN-kode | 264714671 |
|---|---|
| Sist endret | 29. nov. 2023 22:36 |
| Referanse | 524220084 |
Annonsene kan være mangelfulle i forhold til lovpålagt opplysningsplikt. Før bindende avtale inngås oppfordres interessenter til å innhente komplett informasjon fra meglerforetaket, selger eller utleier.

































