Bildegalleri

Velkommen til Christian Krohgs gate 39G, presentert av Schala & Partners avd. Bjørvika / Gamle Oslo ved Henrik Stråkander, tlf. 98 30 02 83.
Delikat og lys 3-roms | Herlig balkong på 9,5 m² | Lekkert kjøkken fra 2020 | Heis | Felles takterrasse | Bygg fra 2011
Nøkkelinfo
- Boligtype
- Leilighet
- Eieform
- Eier (Selveier)
- Soverom
- 2
- Primærrom
- 56 m²
- Bruksareal
- 59 m²
- Etasje
- 3
- Byggeår
- 2011
- Energimerking
- C - Mørkegrønn
- Rom
- 3
- Tomteareal
- 1 172 m² (eiet)
Fasiliteter
Om boligen
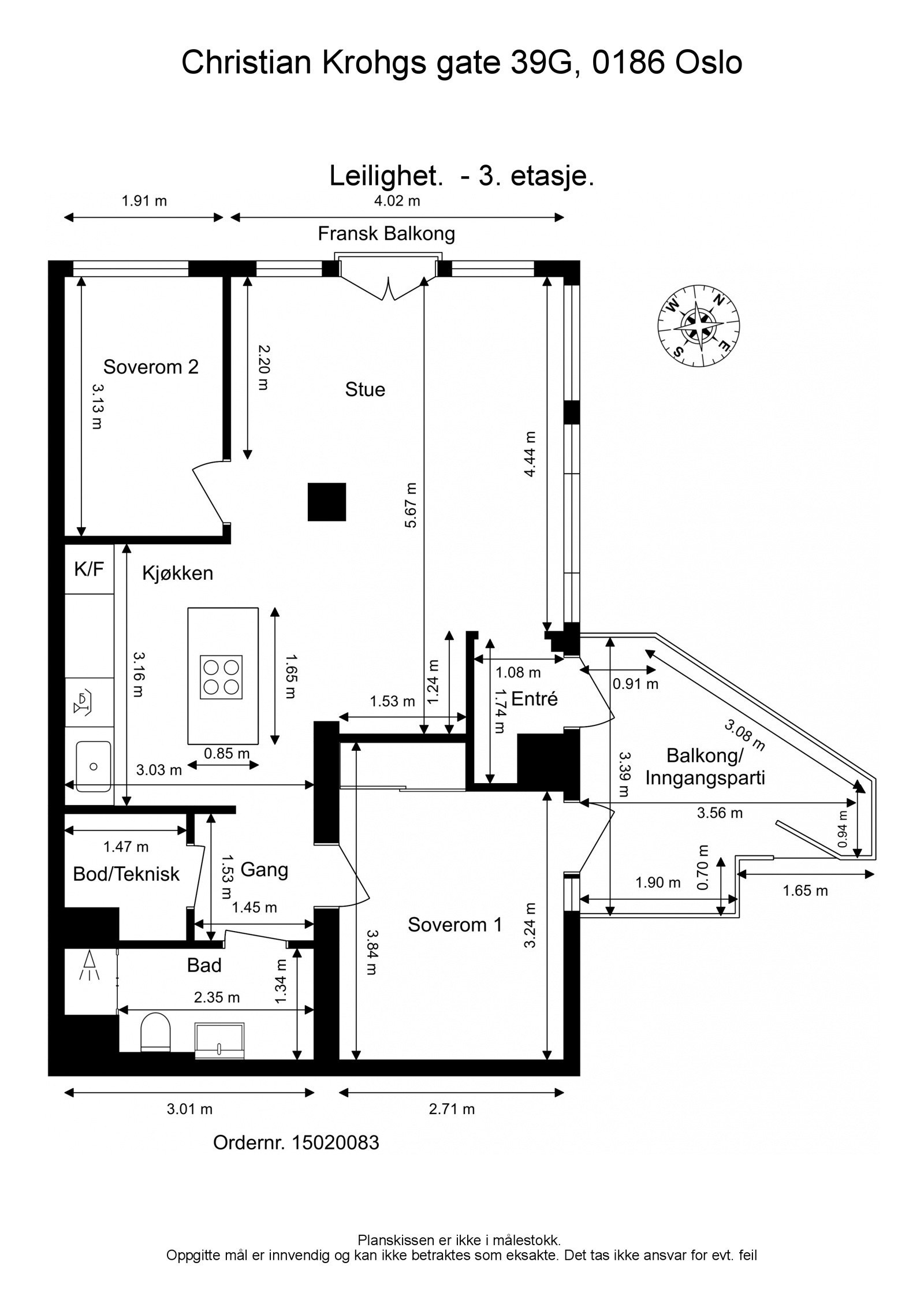
Delikat og lys 3-roms leilighet i byggets 3. etasje! Det er store vindusflater som gir rikelig med lysinnslipp. Leiligheten blir forlenget med en herlig, overbygget balkong på 9,5m². I tillegg har sameiet en felles takterrasse som er perfekt for solrike dager. Boligen ligger i et bygg fra 2011, med fokus på bokvalitet og gode innredningsløsninger.
Her får du en meget sentral beliggenhet med nærhet til "alt"!
- Herlig overbygget balkong på 9,5m²
- Delikat og lys stue med fransk balkong
- Tidsriktige fargevalg & tre-stavs parkett
- Store vindusflater som strekker seg fra gulv til himling
- Lekkert kjøkken fra 2020 med integrerte hvitevarer
- To soverom som vender mot rolig bakgård
- Tidløst bad med opplegg for vaskemaskin
- Innbydende entré med callinganlegg
- Innvendig bod på 3m² og utvendig bod
- Bygg fra 2011 med heis
Salgsoppgaven beskriver vesentlig og lovpålagt informasjon om eiendommen
Se komplett salgsoppgaveNyttige lenker
Nærområdet
Schala & Partners Bjørvika/Gamle Oslo
Prisstatistikk
Christian Krohgs gate 39G
på annonsen
prisantydning per kvadratmeter
Prisfordeling
Pris per m² ligger 19 393 kr under snittet for leiligheter i Grünerløkka - Sofienberg.
Grafen viser antall leiligheter solgt i Grünerløkka - Sofienberg siste året fordelt på pris per m² - totalt 2 430 leiligheter
Antall boliger
Kvadratmeterpris tilsvarer prisantydning pluss fellesgjeld per kvadratmeter (p-rom eller BRA-i). Prisene i grafen er avrundet til nærmeste 1000 kr.
Annonseinformasjon
| FINN-kode | 263600473 |
|---|---|
| Sist endret | 03. okt. 2022 14:24 |
| Referanse | 55210102 |
Annonsene kan være mangelfulle i forhold til lovpålagt opplysningsplikt. Før bindende avtale inngås oppfordres interessenter til å innhente komplett informasjon fra meglerforetaket, selger eller utleier.


































