Bildegalleri

Nydelig høystandard hytte klar for innflytting
- Omkostninger
- 100 785 kr
- Totalpris
- 5 190 785 kr
Nøkkelinfo
- Beliggenhet
- På fjellet
- Boligtype
- Hytte
- P-plasser
- 2
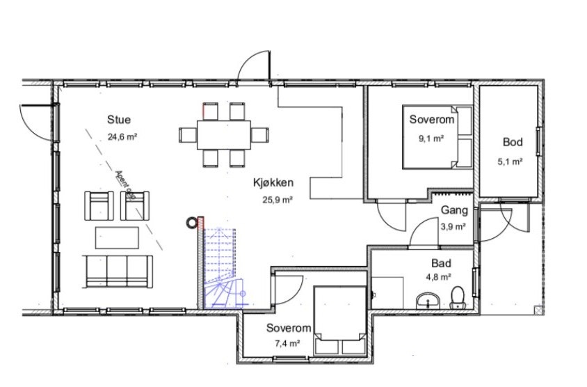
- Bruksareal
- 109 m²
- Tomteareal
- 1 238 m² (eiet)
- Grunnflate
- 95 m²
- Byggeår
- 2022
- Soverom
- 3
- Meter over havet
- 723
Fasiliteter
Visning
Ta kontakt for å avtale visning.Om eiendommen
Beliggenhet
Hyttefeltene på Kyrkjebygdheia ligger idyllisk til på et solrikt fjellområde øst for Nisser i Nissedal kommune. En destinasjon kjent for snøsikre og vakre omgivelser 7-800 moh. Et perfekt utgangspunkt for naturopplevelser, året rundt. Rett utanfor hyttedøra finner du flotte, milelange langrennsløyper. De preparerte spora strekker seg hele 60 km gjennom det unike fjellandskapet og passer like godt til barn som erfarne skifolk. Et aktivt og erfarent løypelag og løypekjørere gjør sånn at du kan nyte skisesongen til det fulle.
Området byr også på et hav av muligheter også på sommeren – enten du er på utkikk etter badevann, fiskevann, toppturopplevelser eller smakfulle molter.
Generelt
Kyrkjebygdheia AS og Otterlei Eiendom AS tilbyr nøkkelferdig hytte med selveiet tomt på naturskjønne Kyrkjebygdheia i Telemark.
Vi har nå vår egen hyttemodell Grønlifjell klar for salg. Dette er en påkostet flott hytte på selveiertomt. En luftig og arealeffektiv planløsning med stor felles stue- og kjøkken i første etasje. Gjennomgående store vindusflater som gir optimale lysforhold og utsyn til natur. En romslig stue og stort soverom i annen etasje med rekkverk i glass og åpen himling ned til første etasje.
Hytta ligger i hyttefeltet Huvtjønnskarine og er klar for visning på forespørsel.
Adkomst/Tomteforhold
Fra Sørlandet, Vestfold og Grenland kjører du til Treungen og videre mot Vrådal langs Nisser. Ca halvveis kommer du til Nissedal med skilting opp til Høgre mot Kyrkjebygheia. Fra Drammen/Oslo kjører du E 134 til Brunkeberg og tar av mot Vrådal.I Vrådal,følg skilt mot Arendal/Treungen.Kjør til Nissedal og følg skilt opp til Kyrkjebygheia.
Innhold
Stue med stor åpen kjøkkenløsning
3 soverom
Bad
Entre
TV-stue
Utvendig bod
Standard
Ta kontakt med megler for komplett informasjon
Nyttige lenker
Nærområdet
Kyrkjebygdheia AS
Annonseinformasjon
| FINN-kode | 262593564 |
|---|---|
| Sist endret | 03. juni 2024 13:11 |
| Referanse | XGRØNLIFJELLX |
Annonsene kan være mangelfulle i forhold til lovpålagt opplysningsplikt. Før bindende avtale inngås oppfordres interessenter til å innhente komplett informasjon fra meglerforetaket, selger eller utleier.













