Bildegalleri

Velkommen til Malerhaugveien 26D presentert av Henrik Skårdal v/ Schala & Partners Eiendomsmegling
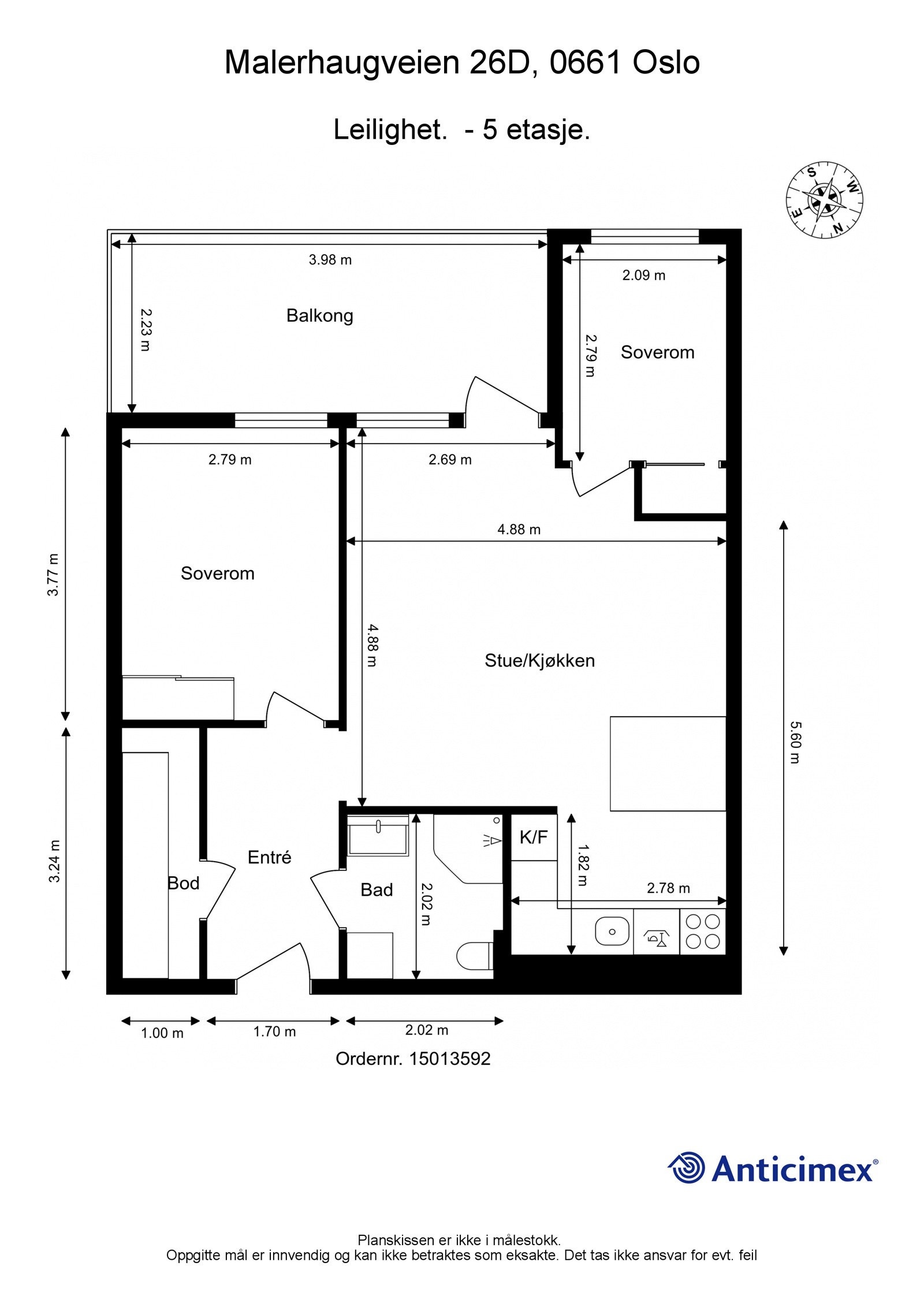
Stilren & lys 3-roms selveier med solrik balkong | Garasjeplass m.lader | Heis | Fjernvarme inkl. | God planløsning
Nøkkelinfo
- Boligtype
- Leilighet
- Eieform
- Eier (Selveier)
- Soverom
- 2
- Primærrom
- 55 m²
- Bruksareal
- 59 m²
- Etasje
- 5
- Byggeår
- 2003
- Energimerking
- D - Mørkegrønn
- Rom
- 3
- Tomteareal
- 4 852 m² (eiet)
Fasiliteter
Om boligen
Velkommen til en moderne 3-roms selveier med flott beliggenhet i 5. etasje med heisadkomst. Leiligheten har en praktisk og fin planløsning hvor rommene oppleves som romslige og med gode dagslysforhold. Fra stuen er det utgang til en stor, sydvendt balkong med gode solforhold og hyggelig utsikt. Leiligheten er velholdt med gjennomgående god standard.
- Solrik, sydvendt balkong på ca. 8,8 kvm
- Store vindusflater
- Romslig bad med opplegg for vaskemaskin
- Garasjeplass m. el-lader
- Fjernvarme (Varmtv/oppvarming) inkl.
- Innvendig bod på 4 m2 og kjellerbod på 5 m2.
- Kabel-tv og bredbånd inkl.
- Heis
- Velordnet sameie med fine fellesarealer
- Barnevennlig og spennende område under utvikling!
- Du finner "alt" du måtte trenge innen kort avstand
Salgsoppgaven beskriver vesentlig og lovpålagt informasjon om eiendommen
Se komplett salgsoppgaveNyttige lenker
Nærområdet
Schala & Partners Torshov
Prisstatistikk
Malerhaugveien 26D
på annonsen
prisantydning per kvadratmeter
Prisfordeling
Pris per m² ligger 9 000 kr under snittet for leiligheter i Helsfyr - Sinsen.
Grafen viser antall leiligheter solgt i Helsfyr - Sinsen siste året fordelt på pris per m² - totalt 1 664 leiligheter
Antall boliger
Kvadratmeterpris tilsvarer prisantydning pluss fellesgjeld per kvadratmeter (p-rom eller BRA-i). Prisene i grafen er avrundet til nærmeste 1000 kr.
Annonseinformasjon
| FINN-kode | 261945751 |
|---|---|
| Sist endret | 24. juni 2022 07:44 |
| Referanse | 66220002 |
Annonsene kan være mangelfulle i forhold til lovpålagt opplysningsplikt. Før bindende avtale inngås oppfordres interessenter til å innhente komplett informasjon fra meglerforetaket, selger eller utleier.







































