Bildegalleri

Solgt
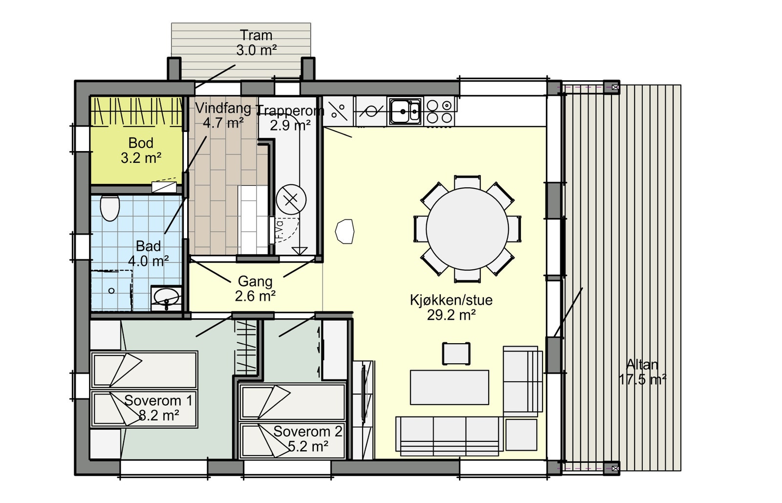
Varden
Nybygget prisgunstig hytte på Kvitfjell med rask overlevering
Prisantydning5 150 000 kr
- Omkostninger
- 159 432 kr
- Totalpris
- 5 259 432 kr
Nøkkelinfo
- Beliggenhet
- På fjellet
- Boligtype
- Hytte
- Byggeår
- 2022
- Soverom
- 4
- Meter over havet
- 755
Fasiliteter
Alpinanlegg
Bilvei frem
Garasje/P-plass
Offentlig vann/kloakk
Peis/Ildsted
Utsikt
Innlagt strøm
Innlagt vann
Turterreng
Om boligen
Eiendommen er en del av Vardegrenda som har tilfartsløype på vestsiden av feltet bare noen stavtak unna.
NB: Knappen for å vise hele beskrivelsen har kun en visuell effekt.
NB: Knappen for å vise hele beskrivelsen har kun en visuell effekt.
Ta kontakt med megler for komplett informasjon
Nærområdet
Annonsene kan være mangelfulle i forhold til lovpålagt opplysningsplikt. Før bindende avtale inngås oppfordres interessenter til å innhente komplett informasjon fra meglerforetaket, selger eller utleier.







