Bildegalleri

Scott A. Patterson ved PrivatMegleren Panorama har gleden av å presentere denne flotte leiligheten i Toftes gate 29B!
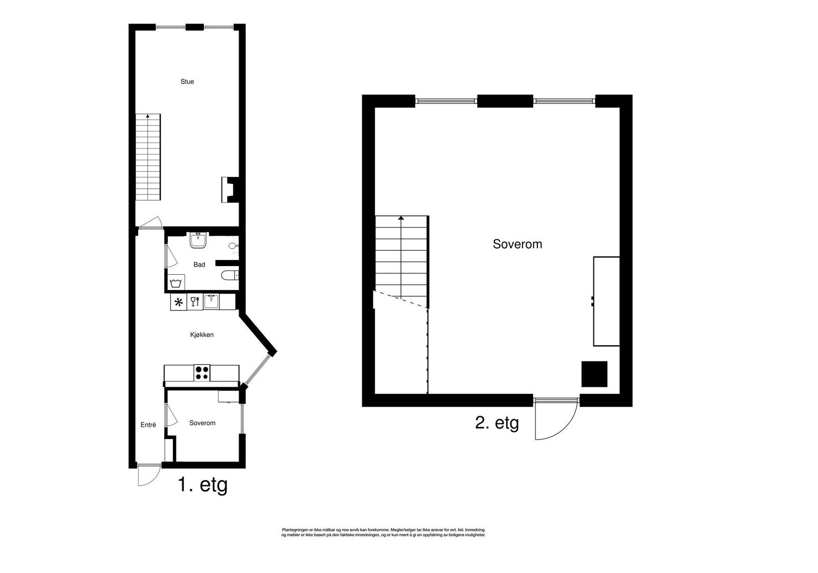
Klassisk 3-roms toppleilighet over to plan - Bad/WC fra 2019 - Vedovn - Stukkatur og rosett - God takhøyde - BØR SEES!
Nøkkelinfo
- Boligtype
- Leilighet
- Eieform
- Eier (Selveier)
- Soverom
- 2
- Primærrom
- 76 m²
- Bruksareal
- 76 m²
- Etasje
- 5
- Byggeår
- 1896
- Energimerking
- G - Oransje
- Rom
- 3
- Tomteareal
- 299 m² (eiet)
- Boligselgerforsikring
- Ja
Fasiliteter
Om boligen
Velkommen til Toftes gate og til denne innholdsrike og ikke minst rålekre bygårdsleiligheten. Leiligheten er pusset opp i 2019-2021. Resultatet er en svært gjennomført leilighet med utpreget klassisk atmosfære kombinert med moderne innredninger på kjøkken og bad.
Leiligheten kan skilte med to soverom, bad (2019), store allrom, klassiske detaljer som stukkatur, rosett, originale tregulv og peisovn.
OPPSUMMERT:
- Klassiske detaljer som stukkatur og rosett
- Store vindusflater og god takhøyde (2,96m)
- Oppusset bad fra 2019
- Nytt røropplegg i 2019 med rør-i-rør system
- Eksponert teglstein
- Perfekt beliggenhet
- Kort avstand til "alt"
- Ingen innsyn
- Mulighet for utbygging av takterrasse*
Kvaliteter som store, buede vindusflater, gjennomgående planløsning og god takhøyde gjør at leiligheten oppleves lys og luftig.
Salgsoppgaven beskriver vesentlig og lovpålagt informasjon om eiendommen
Se komplett salgsoppgaveNyttige lenker
Nærområdet

PrivatMegleren Panorama
Prisstatistikk
Toftes gate 29B
på annonsen
prisantydning per kvadratmeter
Prisfordeling
Pris per m² ligger 26 066 kr under snittet for leiligheter i Grünerløkka - Sofienberg.
Grafen viser antall leiligheter solgt i Grünerløkka - Sofienberg siste året fordelt på pris per m² - totalt 2 424 leiligheter
Antall boliger
Kvadratmeterpris tilsvarer prisantydning pluss fellesgjeld per kvadratmeter (p-rom eller BRA-i). Prisene i grafen er avrundet til nærmeste 1000 kr.
Annonseinformasjon
| FINN-kode | 258790302 |
|---|---|
| Sist endret | 21. sep. 2022 17:59 |
| Referanse | 38220281 |
Annonsene kan være mangelfulle i forhold til lovpålagt opplysningsplikt. Før bindende avtale inngås oppfordres interessenter til å innhente komplett informasjon fra meglerforetaket, selger eller utleier.

































