Bildegalleri

Utsikten (illustrasjon)
Kvitfjell - Prosjekt storhytte i nytt hyttefelt
- Omkostninger
- 49 500 kr
- Totalpris
- 6 699 500 kr
Nøkkelinfo
- Beliggenhet
- På fjellet
- Boligtype
- Hytte
- P-plasser
- 2
- Bruksareal
- 126 m²
- Tomteareal
- 1 500 m² (eiet)
- Byggeår
- 2022
- Soverom
- 4
- Sengeplasser
- 10
- Meter over havet
- 915
Fasiliteter
Visning
Om eiendommen
Beliggenhet
Hestknappen 2 ligger i umiddelbar nærhet til Kvitfjell Alpinanlegg og med skiløypene rett utenfor tomtegrensa. Det er fantastisk utsikt mot Rondane og Østerdalen. Alpinsenteret åpner tidlig på vinteren og av de siste som stenger på ettervinteren og har nedfarter som passer de fleste. Skiløypenettet er også fantastisk med mange muligheter til å gå til nærliggende destinasjoner som Skeikampen og Gålå feks... På sommeren kan du utforske områdene med alle mulige turmål du vil kunne ønske, både til fots og på sykkel. Mulighetene for både jakt og fiske er også mange!
Ønsker du en annen planløsning eller hytte så er ikke det noe problem.
Ta kontakt med oss allerede i dag !
Generelt
Adkomst/Tomteforhold
Adkomst fra E6 ved Fåvang via Kvitfjellvegen frem til krysset mot Gammelsætra der vegen tar av til høyre langs Strandsetervegen. Etter ca. 500m deler vegen seg og fortsetter inn til venstre mot Hestknappen.
Hestknappen 2
Innhold
Standard
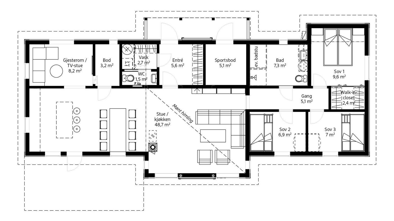
Modell Utsikten
Dette er en storslått hytte som kan huse hele 10 overnattingsgjester. Et høyreist midtskip leder fra entréen til en luftig storstue med en takhøyde på hele fire meter.I tillegg rommer hytta tre soverom, gjesterom/tv-stue, bad med mulighet for badstue, vaskerom, separat wc og sportsbod. Stue og kjøkken utgjør den sosiale sonen. Her kan hyttegjestene forberede neste måltid i hyggelig lag samtidig som man holder praten i gang med de som sitter i stuen. Kjøkkenet har utgang til terrasse/uteplass – så her er det kort vei mellom solveggen og forfriskningene!
Vi legger opp til en svært god nøkkelferdig standard!
- Fabrikkbeiset panel utvendig i valgfri farge
- Fabrikkbeiset panel og listverk innvendig
- 1 stav eikeparkett Cappuchini Trivor fra Floor Factory
- Flislagt gulv på sportsbod, bad/ vaskerom/wc og entre
- Varmekabel under alle flislagte gulv
- Downlights bad og entre, panelovn og taklampe alle soverom
- Torvtak.
- Verdikort kjøkken pålydende 120.000, - fra Norema
- Peisovn Curve 300 og stålpipe, utvendig skiferpanel ihht tegning.
- Inkludert i annonsepris: Tomt 3 (kr. 1.980.000,-) og nøkkelferdig hytte med grunnarbeider (kr. 4.670.000, -)
- Komplett økonomisk plan legges ved tilbud av hytte
Tilvalg / fradrag
Ettersom vi har priset hytta som nøkkelferdig er nesten alt du trenger inkludert.
Standarden er med dette satt høyt og basert på det vi opplever at mange hyttekunder ønsker skal være inkludert.
Vi jobber alltid for at kunden skal være fornøyd, vi er veldig fleksible og lydhøre til kunden sine ønsker og krav.
Endringer på hytta, endringer på materialvalg og egeninnsats er det mulighet for.
Vi hjelper deg mer enn gjerne på veien til din hyttedrøm!
Veg, vann, avløp, strøm og fiber opparbeides frem til tomtegrensa.
Pris indeksreguleres fra mars 2022 - 134.80 (SSB - Einebustader av tre, i alt)
Ta kontakt med megler for komplett informasjon
Nyttige lenker
Nærområdet

BoligPartner - Lillehammer
Annonsene kan være mangelfulle i forhold til lovpålagt opplysningsplikt. Før bindende avtale inngås oppfordres interessenter til å innhente komplett informasjon fra meglerforetaket, selger eller utleier.












