Bildegalleri

Hytte under bygging med Solrik beliggenhet rett ved skiløypa.
- Omkostninger
- 77 245 kr
- Totalpris
- 4 627 245 kr
Nøkkelinfo
- Beliggenhet
- På fjellet
- Boligtype
- Hytte
- Eieform
- Eier (Selveier)
- Primærrom
- 90 m²
- Bruksareal
- 96 m²
- Bruttoareal
- 107 m²
- Soverom
- 4
- Meter over havet
- 842
Fasiliteter
Visning
Ta kontakt for å avtale visning.Om eiendommen
Beliggenhet
45 minutter nord for Lillehammer ligger Kvitfjell, skientusiastenes vinterparadis. Her finner du utfordringer for alle nivåer; enten du vil bryne deg på den olympiske utforløypa eller om du ønsker å legge dine flrste skiopplevelser i et av familieområdene.
Adkomst/Tomteforhold
Fra E6 Gudbrandsdalsvegen, ta av til Stasjonsvegen, riksveg 319 og følgv skiltingen til Kvitfjell. Adkomst til området via Gammelsetervegen.
Generelt
45 minutter nord for Lillehammer ligger Kvitfjell, skientusiastenes vinterparadis. Her finner du utfordringer for alle nivåer; enten du vil bryne deg på den olympiske utforløypa eller om du ønsker å legge dine flrste skiopplevelser i et av familieområdene. Kvitfjell ble av VG kåret til landets beste alpinanlegg for alpinister. Nøkkelen til suksessen er å tilby skiopplevelser på øverste hylle. Over 100 snøkanoner og det samme crewet som preparerer til de årlige World Cup-rennene, førger for at du alltid kan glede deg til å føle perfekt, nypreppet snø under skiene.
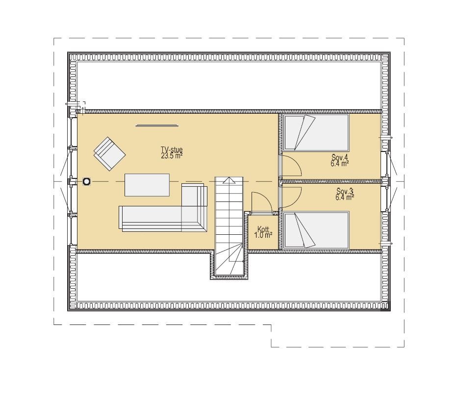
Nøkkelferdig hytte Gålå 96
Komplett nøkkelferdig hytte inkludert tomt. Utvendig leveres hytta med stående tett låvepanel i mix bredder,
ytterkledning leveres grunnet i fargen røykgrå. Taket tekkes med torv. Dører og vinduer er gråmalt.
Utvendig leveranse kort fortalt
• Torvtak
• Låvepanel mix bredder, grunnet
• Gråmalte vinduer og dører
• Takrenner i sort stål
• Terrasse som vist på tegning
• Utelamper
• Frostfri utekran
• Utvendig uisolert bod
Innvendig benyttes det beiset sprekkpanel fra Moelven i fargen Tindegrå og Enstavs gulvplank laminat, type Berry
Alloc. I vindfang og på bad leveres det fliser og varmekabel. Peisovn leveres av typen Nordpeis Duo 5 og blir plassert
som inntegnet på plantegninger. Nordpeis Duo 5 er en klassisk peisovn med stort innsyn til flammene.
Innvendig leveranse kort fortalt
• Gråmalte 3-speils innerdører
• Enstavs gulvplank laminat, type Berry Alloc
• Innvendig panel beiset i fargen Tindegrå
• Listverk og utforing er beiset i samme farge som vegg
• På bad er det fliser i format 30×60 og grå farge
• I hall er det fliser i format 30×60 og grå farge
• Varmekabler i vindfang og våtrom
• Taklamper i soverom
• Downlights i vindfang og baderom
• Panelovner på soverom
• Unidrain slukrenne i dusj
• Peisovn type Duo 5 med glassplate foran ovn
• Lun varme stue/kjøkken
Se komplett leveransebeskrivelse på side 26 i prospektet.
Salgsoppgaven beskriver vesentlig og lovpålagt informasjon om eiendommen
Se komplett salgsoppgaveNærområdet
Tindehytter AS
Annonsene kan være mangelfulle i forhold til lovpålagt opplysningsplikt. Før bindende avtale inngås oppfordres interessenter til å innhente komplett informasjon fra meglerforetaket, selger eller utleier.
















