Bildegalleri

Vikerfjell - Lekker hytte i et fantastisk turterreng - Oslo sitt nærmeste høyfjell!
- Omkostninger
- 25 000 kr
- Totalpris
- 4 705 000 kr
Nøkkelinfo
- Beliggenhet
- På fjellet
- Boligtype
- Hytte
- Eieform
- Eier (Selveier)
- Bruksareal
- 102 m²
- Tomteareal
- 3 504 m² (eiet)
- Grunnflate
- 111 m²
- Byggeår
- 2022
- Soverom
- 4
- Sengeplasser
- 12
- Meter over havet
- 550
- Energimerking
- C - Oransje
Fasiliteter
Visning
Ta kontakt for å avtale visning.Om eiendommen
Beliggenhet
Generelt
TA KONTAKT FOR PRIVATVISNING I JULEFERIEN!
Store og unike tomter på over 3000 kvm!
Generelt:
Velkommen til vinter- og sommereventyr på sjarmerende Vikerfjell, hyttefelt Killingtjern Panorama.
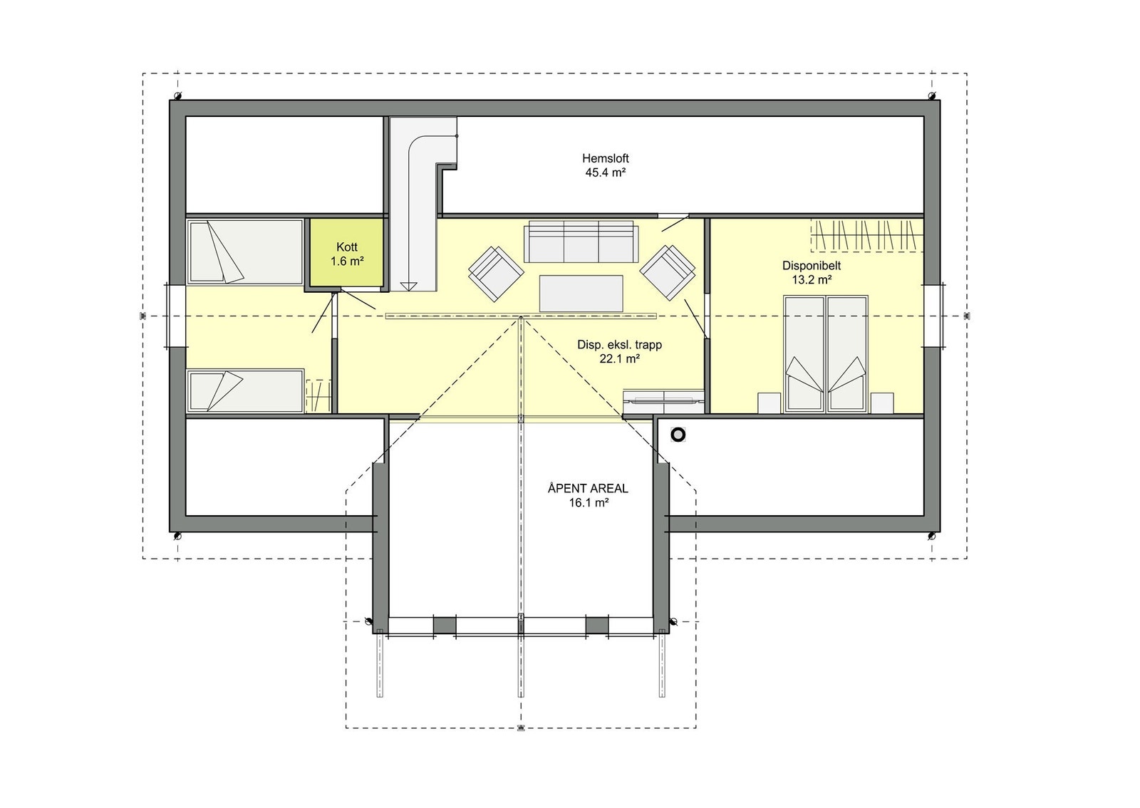
Her bygger vi flotte Saltdalshytter på romslige tomter. Hytta som presenteres i denne annonsen er en prosjektert Saltdalshytte Vikerfjell K40, en noe tilpasset utgave av den populære Solheim C. En meget innholdsrik hytte som har en god planløsning med romslig loft og en lys og luftig stueløsning. Det kan nevnes 2 bad, 2 stuer, 4 soverom og en romslig sportsbod med direkte inngang til hytta. Dette er en fantastisk familiehytte som inneholder alt man trenger og litt til.
Hytta er meget romslig med sine ca 145kvm gulvflate. Ellers kan nevnes lun og harmonisk atmosfære, høy standard, bilvei frem og flotte ski- og turmuligheter.
Priseksempel på denne hytta med ledig tomt nr. 124:
Tomt nr. 124 er på hele 3504kvm og har nå en tidsbegrenset kampanjepris på kr 690.000,-. Dette er kr 50 000,- under ordinær prisliste. Vikerfjell K40 nøkkelferdig har en pris på kr. 3.990.000,- (ihht. leveransebeskrivelse). Dette gir en totalpris på kr. 4.680.000,-.
I tillegg kommer dokumentavgift/omkostninger på ca. kr. 25.000,-.
Med hytta følger det tilpasningsmuligheter, slik at hyttedrømmmen kan bli akkurat slik det passer for deg og din familie.
Ønsker du en visning i jule- og nyttårshelgen? Ta kontakt på tlf. 92 24 03 79 eller epost henning.strom@saltdalshytta.no
Beliggenhet:
Vikerfjell på Ringerike er et snøsikkert skieldorado med sine ca. 70 km oppkjørte skiløyper. Her er det hvite topper rett nord og sør. Værbitte furuer og snødekte myrvann. Her kan det fiskes, pilkes og jaktes.
Området er et flott hytteområde med en fantastisk utsikt mot Vikerfjell og Killingtjern, det har et godt etablert veinett, flotte turstier, bade- og fiskemuligheter og oppkjørte skiløyper om vinteren.
Her kan hele familien lage tradisjoner og kose seg med kortspill, kvikklunsj og hyggelige turer!
Alle kjenner Norefjell, mens Vikerfjell kanskje ikke er like godt kjent som turområde for folk fra Oslo, Asker, Drammen eller til og med Ringeriksregionen. Dette til tross for at Vikerfjell bare ligger 10 mil fra Oslo og du kan kjøre bil helt til fjells på en av de fem skogsbilveiene som tar av fra veien på vestsida av Sperillen.
Vikerfjellområdet er en del av Ådalsfjella vest for Sperillen med Urdevassfjell og Høgfjell i sør og toppene Treknatten og Gyranfisen i nord. Som en kuriositet kan nevnes at Høgfjell (1010 m.o.h.) er den 1000 meter-toppen som ligger nærmest Oslo, men det er Gyranfisen som rager høyest med sine 1127 m.
Ellers består Vikerfjell av store vide skogsområder. Tregrensa går høyt, og i det øverste skogsbeltet er det gammel fjellskog med forvridde graner og trollfuruer samt mye myrlendt terreng. Til tross for rundt 800 hytter, de fleste på østsida mot Sperillen, har mye av området et klart villmarkspreg, og er du heldig, kan du møte både skogsfugl, rovfugl, og de fleste dyrearter som hører skogen og fjellet til. Den legendariske hvite Trollelgen, som naturfotografen Nils Viker filmet, hørte hjemme på Vikerfjell, og den samme Nils Viker har tatt fantastiske bilder av kongeørn og annen storfugl på Vikerfjell.
Det finnes nesten et ubegrenset antall turstier i området, og naturen har mye å by på både for bærplukkeren, turgåeren og den som foretrekker en forfriskende sykkeltur i nydelig natur.
Se nettsider for informasjon om Vikerfjell og løypenett / forhold.
http://www.vikerfjellski.no/Loeypekart2
http://www.nsol.no/ski/ski.html
Ringerud skitrekk ligger en kort kjøretur unna med et lite skitrekk med rails, funbox, quarterpipe, og lite og stort big jump. Skitrekket er åpent lørdager og søndager fra kl. 11-15. Samt hver dag i vinter- og påskeferien.
Se Ringerud.no. Med forbehold om endringer.
Kjøretid til Oslo ca. 1,5 time.
Kjøretid til Hønefoss ca. 45 min.
Adkomst/Tomteforhold
Adkomst/tomteforhold
Følg E-16 nordover fra Hønefoss, retning Fagernes. Ta til venstre ved Ringmoen mot Vikerfjell. (ca. 26 km fra Hønefoss) Kjør over broen og deretter straks til høyre - Norhus Skilt. Følg veien nordover rett frem ca. 15 km til Elsrud (bygg med bussgarasjer). Ta av til høyre her (skilt mot Killingtjern Panorama - ca. 10 min igjen) og følg grusveien ca. 0,9 km - følg skilting til venstre ved veiskille og kjør 1,4 km oppover. Ta så til venstre ved stor oppslagstavle - følg skilting - og kjør 2,0 km oppover bakken. På toppen av bakken tar du til høyre over brua "Brøttet" - følg skilting - og kjør til veien ender i en parkeringsplass.
I enden av parkeringsplassen går Killingtjernveien inn til høyre - følg skilting - og du ankommer nå feltet.
Innhold
Hytta er innholdsrik med en gjennomtenkt og flott planløsning. Det er lagt opp til en god takhøyde og store vindusflater - noe som gir mye lys inn i hytta. Store vinduer gir også en flott følelse av kontakt med naturen utenfor. Alle hyttene på feltet blir oppført med gresstak, jordfarget panel, samt element av stein i fasaden. Vi ønsker et felt som er helhetlig og gjennomtenkt.
Hytta leveres nøkkelferdig med blant annet stålpipe og peisovn, fliser og varmekabler i gulv på bad og vindfang. Det vil bli brukt materialer av høy kvalitet.
Vi tilpasser gjerne hytta etter deres ønske slik at dere kan sette deres preg på rominndelingen. Kanskje det er behov for ekstra plass til besteforeldre eller en ekstra familie....
Standard
Man kan lese mer om dette flotte hyttefeltet - Killingtjern Panorama - ved å bestille nøkkelinformasjon, denne kan bestilles ved å sende en melding direkte fra denne annonsen.
Ta kontakt med megler for komplett informasjon
Nærområdet
Bokvalitet Hus & Hytter Saltdalshytta
Annonseinformasjon
| FINN-kode | 254160675 |
|---|---|
| Sist endret | 04. jan. 2023 12:31 |
| Referanse | Killingtjern Panorama |
Annonsene kan være mangelfulle i forhold til lovpålagt opplysningsplikt. Før bindende avtale inngås oppfordres interessenter til å innhente komplett informasjon fra meglerforetaket, selger eller utleier.




















































