Bildegalleri

Flott beliggende med med umiddelbar nærhet til skiheisen!
Inaktiv
Røldal skisenter
Innholdsrik hytte like ved skiheisen | 4 soverom | 2 stuer | 2 bad
Prisantydning3 990 000 kr
- Omkostninger
- 100 920 kr
- Totalpris
- 4 090 920 kr
- Kommunale avg.
- 9 904 kr per år
Nøkkelinfo
- Beliggenhet
- På fjellet
- Boligtype
- Hytte
- Eieform
- Eier (Selveier)
- Primærrom
- 103 m²
- Bruksareal
- 107 m²
- Tomteareal
- 473 m² (eiet)
- Byggeår
- 2016
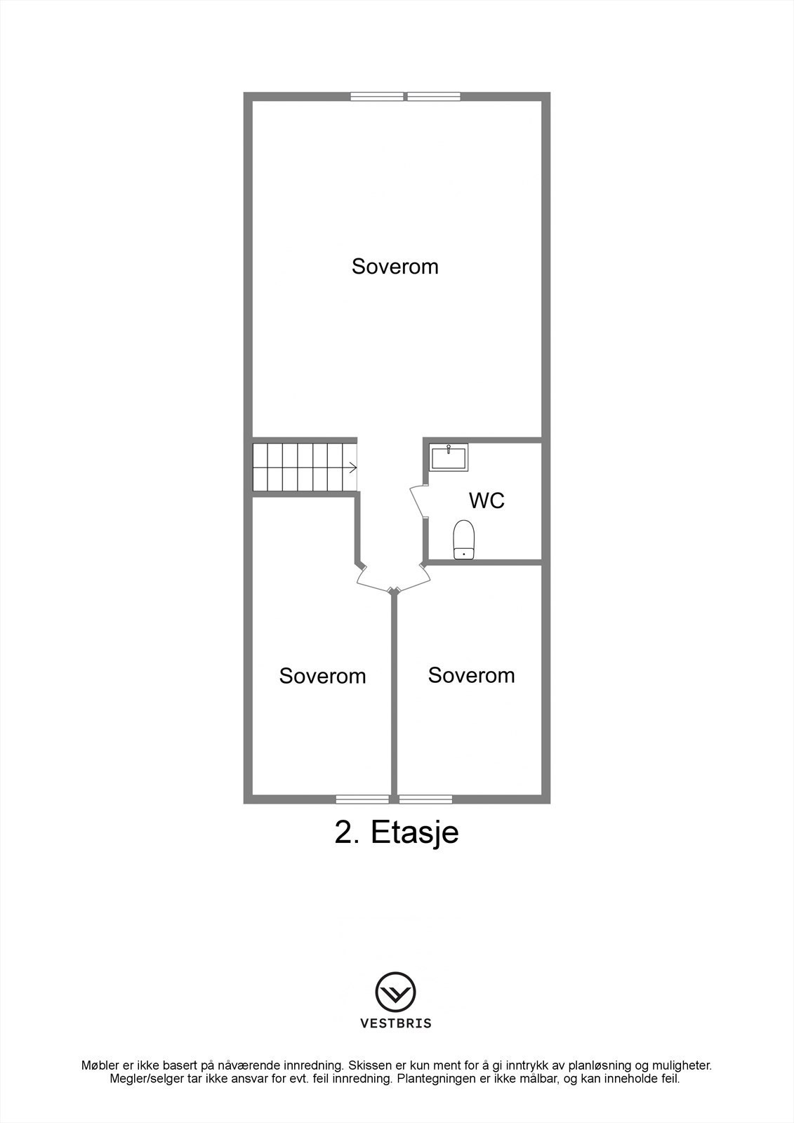
- Soverom
- 4
- Rom
- 6
- Overtakelse
- Etter nærmere avtale med selger. Vær vennlig å angi ønsket overtagelsesdato i vedlagte budskjema.
Fasiliteter
Alpinanlegg
Balkong/Terrasse
Peis/Ildsted
Utsikt
Innlagt strøm
Turterreng
Visning
Alle EiendomsMegler1 sine visninger har påmelding. Påmelding gjør du enkelt ved å benytte knappen under. Skulle oppsatt tidspunkt ikke passe, kontakt megler - så finner vi en passende tid. Skulle ingen være påmeldt til visningen, vil visningen ikke bli gjennomført.
Velkommen til en hyggelig visning.
Husk å lese komplett salgsoppgave før visning. Bestill komplett, utskriftsvennlig salgsoppgave.
VisningspåmeldingOm boligen
Velkommen til Sjurasvingen 13!
Attraktiv beliggenhet like ved skitrekket. Her er du virkelig rett i løypa med skiheisen ett "steinkast" i fra. Like nedenfor hytten starter den nye ekspressheisen som frakter hyttebeboere fra dette feltet, rett opp i høyfjellet og i skiløypene.
Hytten holder gjennomgående god, nyere standard og er svært innholdsrik med bl.a fire soverom, to stuer, to bad og romslig gang. Her er god plass til å ha med familie og gjester for skikjøring og hyggelig lag. Praktisk skibod like ved ytterdør. Terrasse/uteområde med plass til både sittegrupper og bålpanne. Parkering like utenfor. Sjelden mulighet!
Attraktiv beliggenhet like ved skitrekket. Her er du virkelig rett i løypa med skiheisen ett "steinkast" i fra. Like nedenfor hytten starter den nye ekspressheisen som frakter hyttebeboere fra dette feltet, rett opp i høyfjellet og i skiløypene.
Hytten holder gjennomgående god, nyere standard og er svært innholdsrik med bl.a fire soverom, to stuer, to bad og romslig gang. Her er god plass til å ha med familie og gjester for skikjøring og hyggelig lag. Praktisk skibod like ved ytterdør. Terrasse/uteområde med plass til både sittegrupper og bålpanne. Parkering like utenfor. Sjelden mulighet!
NB: Knappen for å vise hele beskrivelsen har kun en visuell effekt.
NB: Knappen for å vise hele beskrivelsen har kun en visuell effekt.
Salgsoppgaven beskriver vesentlig og lovpålagt informasjon om eiendommen
Se komplett salgsoppgaveNyttige lenker
Nærområdet
EiendomsMegler 1 Haugesund
En del av Sparebank 1 Sør-Norge
Annonseinformasjon
| FINN-kode | 253866638 |
|---|---|
| Sist endret | 20. sep. 2023 10:03 |
| Referanse | 2501220062 |
Annonsene kan være mangelfulle i forhold til lovpålagt opplysningsplikt. Før bindende avtale inngås oppfordres interessenter til å innhente komplett informasjon fra meglerforetaket, selger eller utleier.





























