Bildegalleri

Marielundvegen 14 A og B
Innflytningsklar halvpart av tomannsbolig
Kort om prosjektet
Innflytningsklar tomannsbolig ved Mjøsas bredd. Boligene er over to etasjer. Flotte utearealer. Svært gode solforhold. Gangavstand til Brumunddal sentrum.
Prosjektets status
Planlegging
Klar til innflytting
Salgsstart
Ta kontakt for visning!
Byggestart
Ferdig bygget
Overtakelse
Etter avtale med kjøper
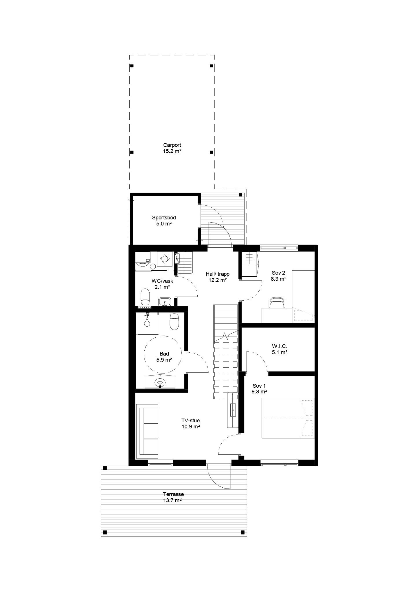
Nøkkelinfo
- Boligtype
- Tomannsbolig
- Soverom
- 3
- Rom
- 6
- Primærrom
- 112 m²
- Bruksareal
- 123 m²
- Energimerking
- B
Fasiliteter
Visning
Ta kontakt for å avtale visning.Beskrivelse
Denne boligen av de boligene som ligger nord/vest på tomteområdet.
Boligen har en stor takterrasse på hele 35 kvm.
I tillegg kommer de andre balkongene og terrassen på 37 kvm.
Totalt har denne boligtypen hele 72 kvm. med terrasse/balkong.
For deg og din familie som liker masse uteplass å boltre dere på, er dette den perfekt boligen.
Glem ikke hagen, som er en av de største til disse boligene - og hva er ikke bedre enn gress mellom tærne :-)
Utsikt til Mjøsa fra takterrassen og en passelig stor hage vil kunne gi dere litt ferie hver dag - så for deg som liker det, kan denne boligen nr. 9 være et godt kjøp!
Nyttige lenker
Nærområdet
NORDBOLIG
Tor Egil Moen
Annonseinformasjon
| FINN-kode | 253754620 |
|---|---|
| Sist endret | 08. mai 2025 09:14 |
| Referanse | Verven sør/ Marielundvegen 14B / Enebolig i rekke nr. 9 m/ takterrasse. |
Annonsene kan være mangelfulle i forhold til lovpålagt opplysningsplikt. Før bindende avtale inngås oppfordres interessenter til å innhente komplett informasjon fra meglerforetaket, selger eller utleier.




















