Bildegalleri

Dovrefjell | Hyttedrømmen på høyfjellet. Prosjektert nøkkelferdig hytte med kraftig preg. inkl.tomt og grunnarbeid
- Omkostninger
- 16 500 kr
- Totalpris
- 4 146 500 kr
Nøkkelinfo
- Beliggenhet
- På fjellet
- Boligtype
- Hytte
- Eieform
- Eier (Selveier)
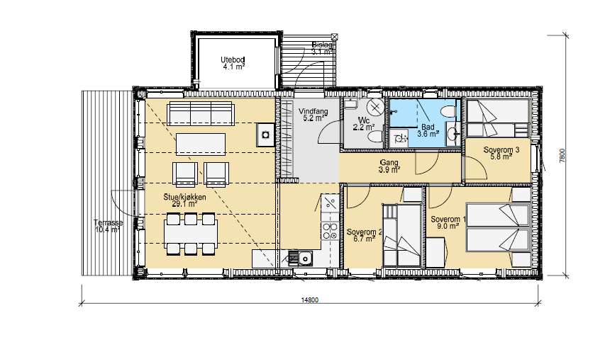
- Internt bruksareal
- 69 m² (BRA-i)
- Bruksareal
- 74 m²
- Eksternt bruksareal
- 4 m² (BRA-e)
- Balkong/Terrasse
- 13 m² (TBA)
- Tomt
- Eiet
- Soverom
- 3
- Rom
- 4
Fasiliteter
Visning
Om eiendommen
Beliggenhet
Hyttefelt grenser mot Rondane i sydøst og mot Dovrefjell i nord, med Snøhetta (2286 moh) som majestestisk nabo i vest. Tomtene er selveiende. Det er opprettet en sameieforening med formål å ta seg av en del felles gjøremål og interesser.
Adkomst/Tomteforhold
Ta av E6 ved Hjerkinn til Folldal, fylkesvei 29. Hjerkinnlia fjellgrend ligger nedenfor Hjerkinn Fjellstue, ned mot Hjerkinndammen.
Generelt
Rå 76 - Lun og snerten hytte med kraftig preg. Store vindusflater i stue/kjøkken slipper naturen inn i hytta. Fin planløsning.
Leveransebeskrivelse
Generell utførelse
• Stående låvepanel mix bredder med stavlaftutsmykning (ubehandlet), 20 cm isolasjon i yttervegg.
• Torv på tak
• Steinforblendet pipe over tak med steinplater
• Takstige og snøfangere der det er krav.
• Vinduer iht. tegning. 2-lag energiglass, standard farge hvit inne/ute hvit NC SS 0502Y. Vinduer med gjennomgående sprosser.
• Takrenner i sort stål.
• Tinde ytterdør m/vindu, malt hvit.
• Eventuell sportsbod / utebod har Tinde boddør u/vindu, malt hvit.
• Terrasse leveres der det er vist på tegninger uten rekkverk.
• Isolasjon 25 cm i tak, 20 cm yttervegg og 10 cm i innervegger.
• Flytende gulv med 13 mm eikeparkett 3-stavs, type Kährs.
• Innvendige furupanel fra Moelven: 13 mm Sprekkpanel på vegger og himling, ubehandlet.
• Glatt standard listverk, ubehandlet.
• Furu 3-speils innerdører, ubehandlet.
• For hytter som leveres med hems/ loft er det inkludert trapp i ubehandlet utførelse.
• For hytter med badstue leveres benk i gran ubehandlet.
• Kjøkken fra Aubo Kjøkken av typen Unik NCS S 3502-Y, med laminat benkeplate og Slimline kjøkkenventilator (hvitevarer følger ikke med).
Rørlegger/innvendig sanitær
Rørleggerarbeid med utstyr iht. standard rørleggeroppsett. I utstyrsoversikt kan nevnes:
• Bunnledninger (rør som ligger i betongplate innenfor ringmur fram til toalett, sluker osv.).
• Rette slagdører i dusjnisje evnt. Dusjnisjedør (iht. tegning) med dusjgarnityr.
• Vegghengt toalett med innebygd sisterne.
• Unidrainsluk på bad.
• Baderomsinnredning m/skuffer, porselensvask og speil.
• Innredning med vask og speilskap leveres det det er separat WC rom.
• Varmtvannsbereder 200 liter.
• 1-greps blandebatterier på kjøkken, bad og evnt. andre våtrom.
• Opplegg for tilkobling av kjøkkenbenk m/ 1-greps benkebatteri med høy tut, samt opplegg for tilkobling av oppvaskmaskin.
• Lekkasjesikring/vannstoppeventil.
Murer, Flis, pipe og ildsted
• Peisovn fra Nordpeis med sideglass og med glassplate på gulv montert på sort stålpipe.
• Flislagt gulv i vindfang med 30x60cm flis.
• Flislagt gulv på bad med 30 x 60 fliser. Ved eget WC-rom og badstue leveres det også 30x60 cm flis.
• Flislagte vegger på bad med 30x60 cm flis.
• Har hytta eget vaskerom, innvendig bod eller sportsbod leveres det med 30x30 cm flis.
Elektroinstallasjoner og utstyr
Elektrikerarbeid med utstyr iht. standard elektrikeroppsett. I utstyrsoversikt kan nevnes:
• Inntaksskap og kabel mellom inntak og sikringsskap.
• Sikringsskap m/overbelastningsvern, jordfeilautomater og overspenningsvern.
• EL-punkter (iht. NEK 400).
• Varmekabler med termostat og føler i vindfang og våtrom.
• Strømforsyning til seriekoblet røkvarslere m/backup batteri.
• Astrour-styrte utelamper.
• Downlights leveres i vindfang og bad. Om hytta har WC og gang i tillegg leveres det også downlights her.
• Taklamper leveres i soverom. For de hyttene som har vaskerom og bod, leveres det taklamper her.
• Panelovner, stikkontakter, komfyrvakt og badstuovn leveres i tråd med tegning.
Oppgradering av leveransen
• Taktyper som tilpasses ønsker og/evt reguleringsplan.
• Beiset sprekkpanel på vegger og himling, listverk, utforinger og innvendig trapp/stige i en av Tinde sine standard farger.
• Innerdører, vinduer, ytterdør og evnt. boddør malt i valgfri NCS farge.
• Hvitevarepakke og kjøkkenløsning
Ellers samme leveranse som standard.
Prisen er for ferdig oppsatt hytte inkl. tomt og grunnarbeid. Tomteverdi fra kr 620 000,- Verdi grunnarbeid estimert kr 482 000,-
Det tas forbehold om endelig godkjenning fra kommunen.
Prisene er beregnet med sist kjente indeks fra SSB, og vil bli justert til enhver tids gjeldende indeks.
For pris, diverse avgifter og kostnader - se https://www.tindehytter.no/hyttefelt/hjerkinnlia-fjellgrend
Salgsoppgaven beskriver vesentlig og lovpålagt informasjon om eiendommen
Se komplett salgsoppgaveNærområdet
Tindehytter AS
Annonsene kan være mangelfulle i forhold til lovpålagt opplysningsplikt. Før bindende avtale inngås oppfordres interessenter til å innhente komplett informasjon fra meglerforetaket, selger eller utleier.









