Bildegalleri

Hundyrju Hyttegrend på majestetiske Dovrefjell med utsikt mot Snøhetta | Prosjektert nøkkelferdig hytte med to soverom
- Omkostninger
- 13 500 kr
- Totalpris
- 2 943 500 kr
Nøkkelinfo
- Beliggenhet
- På fjellet
- Boligtype
- Hytte
- Eieform
- Eier (Selveier)
- Internt bruksareal
- 54 m² (BRA-i)
- Bruksareal
- 54 m²
- Balkong/Terrasse
- 2 m² (TBA)
- Tomt
- Eiet
- Soverom
- 2
- Rom
- 3
Fasiliteter
Om eiendommen
Beliggenhet
Hyttetomter på Dovrefjell i naturskjønne omgivelser. Hyttegrenda ligger på ca. 900 moh ca. 6,5 km fra Dombås sentrum. Turmulighetene er mange, om du vil velge ditt eget spor eller følge merkede og oppkjørte langrennsløyper som passerer rett forbi hyttegrenden. Det går også fine langrennsløyper og turstier ned til Dombås skiheiser, skisstadion med skiskytterareana og Dombås Sentrum.
Adkomst/Tomteforhold
Følg E6 fra Dombås mot Dovrefjell, og kjør ca. 6,5 km. Ta av ved skilt mot Hundyrju hyttegrend på høyre side og følg veien opp ca. 300 m. Ta så av til høyre og følg Hundyrjuveien. Du befinner deg nå på hyttefeltet.
Generelt
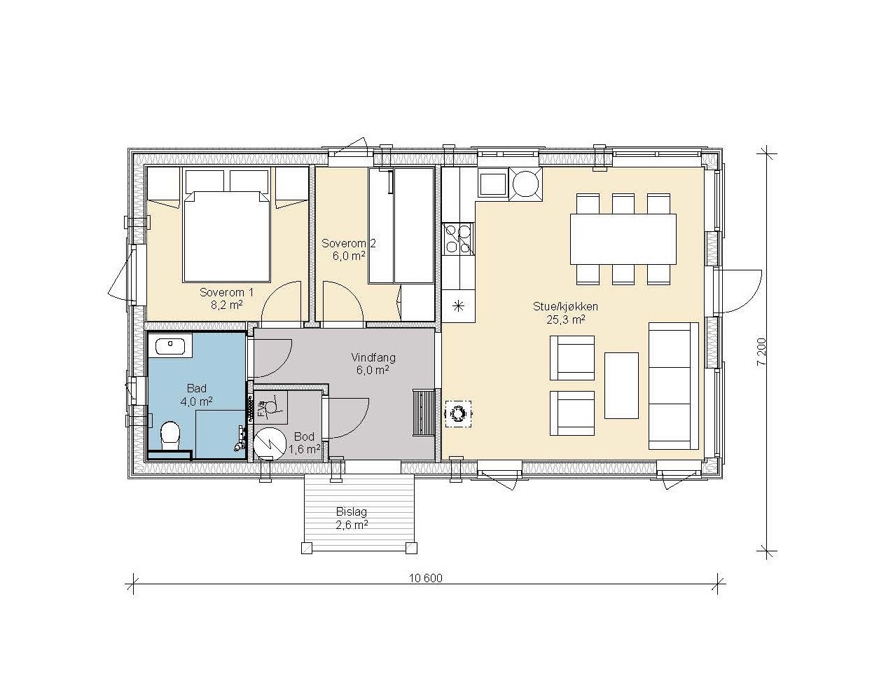
Rondane 56 er ei lita og praktisk hytte der vi har samlet alt du trenger på 56m2 i tillegg til to gode soverom og et romslig vindfang med god plass til garderobe.
Leveransebeskrivelse
Generell utførelse
• Stående låvepanel mix bredder (ubehandlet), 20 cm isolasjon i yttervegg.
• Torv på tak
• Takstige og snøfangere der det er krav.
• Vinduer iht. tegning. 2-lag energiglass, standard farge hvit inne/ute hvit NC SS 0502Y. Vinduer med gjennomgående sprosser.
• Takrenner i sort stål.
• Tinde ytterdør m/vindu, malt hvit.
• Eventuell sportsbod / utebod har Tinde boddør u/vindu, malt hvit.
• Terrasse leveres der det er vist på tegninger uten rekkverk.
• Isolasjon 25 cm i tak, 20 cm yttervegg og 10 cm i innervegger.
• Flytende gulv med 13 mm eikeparkett 3-stavs, type Kährs.
• Innvendige furupanel fra Moelven: 13 mm Sprekkpanel på vegger og himling, ubehandlet.
• Glatt standard listverk, ubehandlet.
• Furu 3-speils innerdører, ubehandlet.
• For hytter som leveres med hems/ loft er det inkludert trapp i ubehandlet utførelse.
• For hytter med badstue leveres benk i gran ubehandlet.
• Kjøkken fra Aubo Kjøkken av typen Unik NCS S 3502-Y, med laminat benkeplate og Slimline kjøkkenventilator (hvitevarer følger ikke med).
Rørlegger/innvendig sanitær
Rørleggerarbeid med utstyr iht. standard rørleggeroppsett. I utstyrsoversikt kan nevnes:
• Bunnledninger (rør som ligger i betongplate innenfor ringmur fram til toalett, sluker osv.).
• Rette slagdører i dusjnisje evnt. Dusjnisjedør (iht. tegning) med dusjgarnityr.
• Vegghengt toalett med innebygd sisterne.
• Unidrainsluk på bad.
• Baderomsinnredning m/skuffer, porselensvask og speil.
• Innredning med vask og speilskap leveres det det er separat WC rom.
• Varmtvannsbereder 200 liter.
• 1-greps blandebatterier på kjøkken, bad og evnt. andre våtrom.
• Opplegg for tilkobling av kjøkkenbenk m/ 1-greps benkebatteri med høy tut, samt opplegg for tilkobling av oppvaskmaskin.
• Lekkasjesikring/vannstoppeventil.
Murer, Flis, pipe og ildsted
• Peisovn Duo 5 DV m/glassplate montert på sort stålpipe.
• Flislagt gulv i vindfang med 30x60cm flis.
• Flislagt gulv på bad med 30 x 60 fliser. Ved eget WC-rom og badstue leveres det også 30x60 cm flis.
• Flislagte vegger på bad med 30x60 cm flis.
• Har hytta eget vaskerom, innvendig bod eller sportsbod leveres det med 30x30 cm flis.
Elektroinstallasjoner og utstyr
Elektrikerarbeid med utstyr iht. standard elektrikeroppsett. I utstyrsoversikt kan nevnes:
• Inntaksskap og kabel mellom inntak og sikringsskap.
• Sikringsskap m/overbelastningsvern, jordfeilautomater og overspenningsvern.
• EL-punkter (iht. NEK 400).
• Varmekabler med termostat og føler i vindfang og våtrom.
• Strømforsyning til seriekoblet røkvarslere m/backup batteri.
• Astrour-styrte utelamper.
• Downlights leveres i vindfang og bad. Om hytta har WC og gang i tillegg leveres det også downlights her.
• Taklamper leveres i soverom. For de hyttene som har vaskerom og bod, leveres det taklamper her.
• Panelovner, stikkontakter, komfyrvakt og badstuovn leveres i tråd med tegning.
Oppgradering av leveransen
• Taktyper som tilpasses ønsker og/evt reguleringsplan.
• Beiset sprekkpanel på vegger og himling, listverk, utforinger og innvendig trapp/stige i en av Tinde sine standard farger.
• Innerdører, vinduer, ytterdør og evnt. boddør malt i valgfri NCSfarge.
• Hvitevarepakke og kjøkkenløsning
Ellers samme leveranse som standard.
Prisen er for ferdig oppsatt hytte inkl. tomt og grunnarbeid. Tomteverdi (tomt 11-15 ) fra kr. 500 000 ,- Verdi grunnarbeid estimert kr. 330 000 ,-
Det tas forbehold om endelig godkjenning fra kommunen.
Prisene er beregnet med sist kjente indeks fra SSB, og vil bli justert til enhver tids gjeldende indeks.
For pris, diverse avgifter og kostnader - se https://www.tindehytter.no/hyttefelt/hundyrju-hyttegrend
Salgsoppgaven beskriver vesentlig og lovpålagt informasjon om eiendommen
Se komplett salgsoppgaveNærområdet
Tindehytter AS
Annonsene kan være mangelfulle i forhold til lovpålagt opplysningsplikt. Før bindende avtale inngås oppfordres interessenter til å innhente komplett informasjon fra meglerforetaket, selger eller utleier.
















